
Flat for sale 2+kk • 45 m² without real estateFamfulíkova, Prague - Kobylisy
Nabízím k prodeji světlý, nově zrekonstruovaný byt 2+kk (45,5 m²) ve 4. patře panelového domu s velkým výtahem. Byt prošel kompletní rekonstrukcí: nové podlahy, vymalované stěny, kuchyňská linka IKEA.
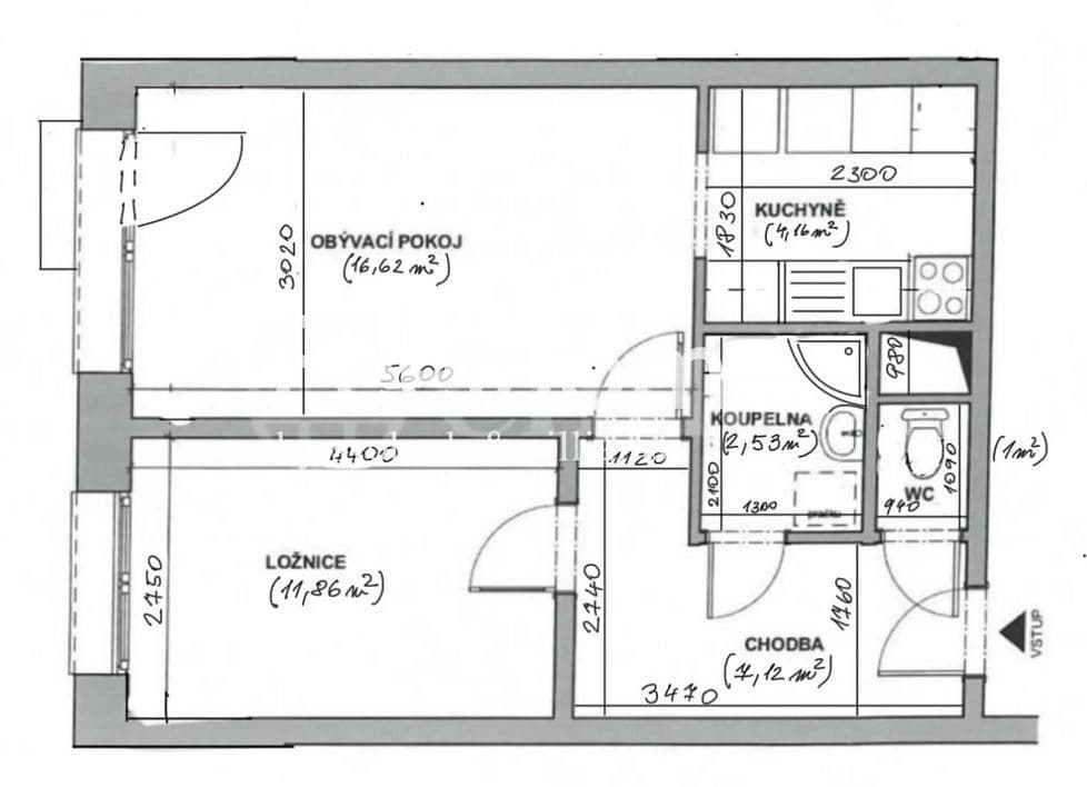
Dispozice: obývací pokoj s vybaveným kuchyňským koutem (elektrická trouba, varná deska, lednice, myčka), samostatná ložnice s kobercem, chodba, koupelna s malou vanou, oddělené WC. Součástí nabídky je i balkon na chodbě a komora o rozloze 2 m², která je v 9.patře.
Lokalita: klidná část Kobylis s výhledem do zeleně, okna na západ, skvělá dopravní dostupnost — 3 minuty k autobusové zastávce, 5 minut k metru C-Ládví.
Pro více informací a domluvení prohlídky odpovězte na inzerát.
I am offering for sale a bright, newly renovated 2+kk apartment (45.5 m²) on the 4th floor of a panel building with a large elevator. The apartment has undergone a complete renovation: new floors, freshly painted walls, and a new kitchen unit.
Layout: a living room with a fully equipped kitchenette (electric oven, stovetop, refrigerator, dishwasher); a separate bedroom with carpet; a hallway; a bathroom with a small bathtub; and a separate toilet. The offer also includes a balcony located in the hallway and a storage room of 2 m², which is on the 9th floor.
Location: a quiet part of Kobylisy with views of greenery, west-facing windows, and excellent transport links—3 minutes to the bus stop and 5 minutes to Metro C-Ládví.
For more information or to arrange a viewing, please respond to the advertisement.
Property characteristics
| Available from | 15/02/2026 |
|---|---|
| Building construction | Precast concrete |
| Fully furnished | Partly |
| Listing ID | 991468 |
| EPC | G - Extremely uneconomical |
| Usable area | 45 m² |
| Condition | Good |
|---|---|
| Layout | 2+kk |
| Floor | Ground floor |
| Ownership | Personal |
| Location | Residences |
| Price per unit | CZK 144,444 / m2 |
Are you choosing a apartment?
Make sure you have all the important information!
What does this listing have to offer?
| Wheelchair accessible | |
| Lift |
| Basement: 1 m² | |
| Parking |
What you will find nearby
Still looking for the right one?
Set up a watchdog. You will receive a summary of your customized offers 1 time a day by email. With the Premium profile, you have 5 watchdogs at your fingertips and when something comes up, they notify you immediately.












