
Flat for sale 4+kk • 118 m² without real estate, Baden-Württemberg
The multi-family house was constructed using a timber-hybrid building method. Notably, the building's high energy standard (EH40) is emphasized, combined with the selection of ecological building materials – a choice that not only results in noticeably low energy costs and a healthy, warm living climate, but also protects our environment. When purchasing this climate-friendly apartment, you have the opportunity to benefit from state funding provided by KfW Bank in the form of an attractive, low-interest loan of €100,000.
At the foot of the Lemberg, you will find the idyllic municipality of Affalterbach, with approximately 4,500 inhabitants. It is part of the Ludwigsburg district in Baden-Württemberg and, despite its location amidst picturesque nature, is very well connected in terms of transportation. With both public transportation and by car, surrounding cities such as Winnenden, Ludwigsburg, and Marbach am Neckar can be reached in no time. The proximity to the A81 and B14 highways also facilitates quick access to larger cities like Heilbronn or the state capital, Stuttgart.
Affalterbach combines the advantages of a rural setting with those of a city: shopping options, including regional organic farm shops, banks, a post office, medical practices, as well as a primary school and kindergartens, are located directly in the town. The industrial park, with some internationally operating companies, offers attractive job opportunities.
The municipality provides a diverse range of leisure activities through its various clubs. For sports, there are playing fields for ball games, athletic facilities, and playgrounds. The nature surrounding Affalterbach is also ideal for local recreation: the Lemberg invites you for walks and cycling through forests and vineyards, and within minutes you can reach the idyllic Buchenbachtal. To end the day, a visit to one of the various local taverns is recommended.
This climate-friendly multi-family house is situated in a very central, established, and traffic-calmed location. Everyday shops, bus stops, kindergartens, the school, and the recreational area can all be reached on foot.
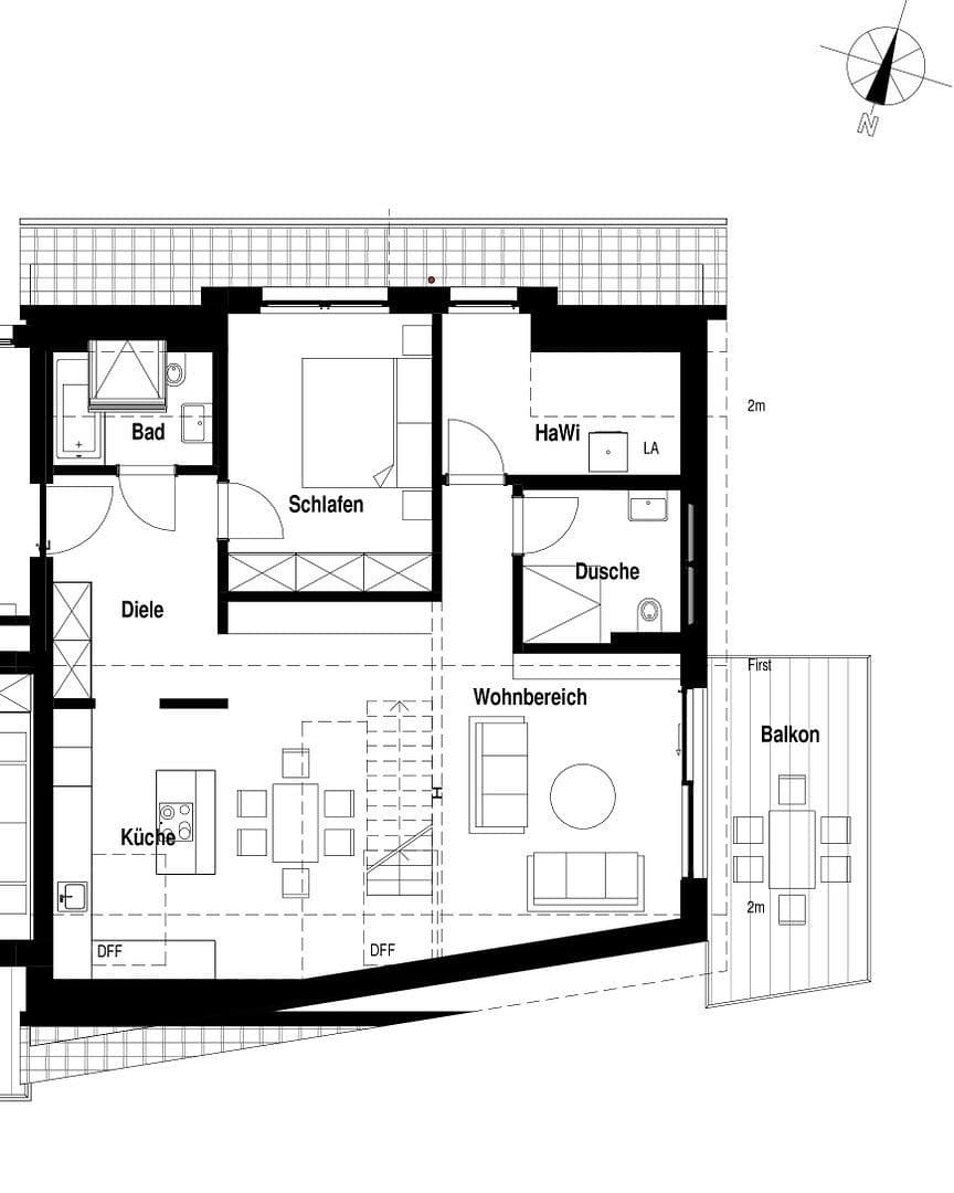
This modern multi-family house impresses with its architecture as well as its high-quality amenities and functionality. An elevator takes you from the underground garage to your apartment. A spacious private storage room in the basement ensures ample storage space. Washing machine and dryer connections can be found both directly in the storage room and in your apartment.
The equipment includes high-quality wooden parquet floors in the living areas and designer tiles in the bathrooms. High exposed solid wood ceilings and white interior doors create the foundation for your personal haven. Large window elements in wood-aluminum with triple glazing and electric shutters or blinds flood the rooms with plenty of light, ensuring a friendly and warm living atmosphere.
Modern sanitary fittings with towel radiators and curbless showers complete the daylight bathrooms of each apartment. Cold feet are a thing of the past thanks to the underfloor heating.
You can enjoy the sun on your private balcony, surrounded by attractively designed outdoor areas.
Viewing appointments are possible at any time!
Property characteristics
| Age | Over 5050 years |
|---|---|
| Condition | New-build |
| Floor | 2. floor out of 3 |
| EPC | A - Extremely economical |
| Price per unit | €5,917 / m2 |
| Available from | 06/02/2026 |
|---|---|
| Layout | 4+kk |
| Listing ID | 988334 |
| Usable area | 118 m² |
What does this listing have to offer?
| Balcony | |
| Basement | |
| Lift |
| Wheelchair accessible | |
| Garage | |
| MHD 1 minute on foot |
What you will find nearby
Still looking for the right one?
Set up a watchdog. You will receive a summary of your customized offers 1 time a day by email. With the Premium profile, you have 5 watchdogs at your fingertips and when something comes up, they notify you immediately.














