
House for sale 6+1 • 137 m² without real estateHugo-Lang-Bogen 13 München Neuperlach Bayern 81735
This modern newly built terraced house impresses with approximately 137 m² of living space thanks to a well-thought-out layout, light-filled living areas, and high-quality finishes. The house spans two floors and offers an ideal combination of comfort, functionality, and stylish living.
On the ground floor, you are greeted by a spacious, open-plan living and dining area with an open kitchen. Large floor-to-ceiling windows provide plenty of daylight and a direct view of the terrace and garden, creating a harmonious connection between the indoor and outdoor spaces. A separate toilet and a guest room provide additional flexibility. The integrated garage, as well as the separate utility and technical room, complete this level and ensure practical everyday comfort.
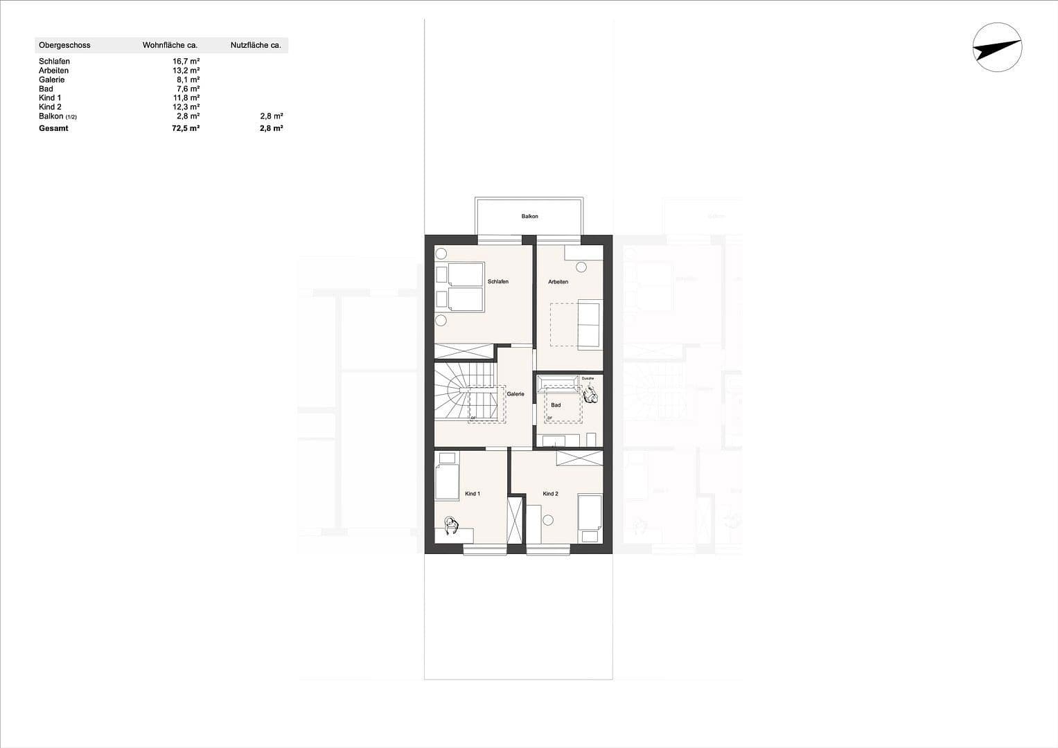
On the upper floor, you will find two children's rooms, a large master bedroom, a bathroom, and a study that can be used flexibly as a home office or hobby room. Again, large windows contribute to a bright and pleasant atmosphere.
The house features its own garden, a spacious terrace, and a balcony with a seating area where you can enjoy the evening sun from the west—perfect for relaxing outdoor moments.
This terraced house combines modern living with thoughtful architecture, light-infused rooms, and a private outdoor area. The combination of open-plan design, large windows, and high-quality features makes it a perfect home for families and couples who appreciate urban living with a high quality of life.
The property is located in an urban, well-connected residential area in Neuperlach, which impresses with its proximity to local amenities, schools, and public transport. The surrounding area features a balanced mix of modern residential complexes, green spaces, and a well-developed local supply structure. The neighborhood offers a pleasant urban quality of life combined with excellent everyday practicality.
Within walking distance, there are numerous shopping opportunities, supermarkets, bakeries, pharmacies, and various service providers. Several day-care centers and schools are located in the immediate vicinity, making the location particularly attractive for families. Parks and green spaces provide relaxing retreats and invite outdoor leisure activities.
The connection to public transport is excellent: a bus stop is just a few minutes’ walk away. From there, fast connections lead to the Neuperlach Zentrum and Neuperlach Süd subway stations, which offer direct links to Munich’s city center. Via Karl-Marx-Ring and Zehntfeldstraße, the location is also excellently integrated into the urban road network. The A8 motorway and the Mittlere Ring can be reached in a short drive, offering flexibility for commuters and businesses.
Neuperlach is one of the largest and best-developed residential areas in eastern Munich. The district is characterized by a wide range of shopping centers, sports facilities, medical care, and dining options. At the same time, there is good connectivity to the surrounding neighborhoods and the greater Munich area.
This location offers a well-connected and conveniently situated residential area with excellent infrastructure. The combination of green spaces, modern urban development, and quick accessibility makes this address particularly attractive for families as well as professionals and service providers.
High-quality features:
• Massive monolithic brick construction for optimal thermal insulation and durability
• KfW 55 standard for low energy costs
• Underfloor heating in all rooms
• High-quality solid wood parquet flooring
• Large-format tiles in bathrooms and toilet
• Natural stone (granite) window sills
• Electric roller shutters for comfort and security
• Branded sanitary fixtures from renowned manufacturers
This project represents the exclusive implementation of a construction-law-secured residential concept—developed in close collaboration with experienced architects, certified real estate appraisers and land evaluators, marketing experts, as well as the construction consultant and supervisor from the executing construction company.
The site-related ancillary construction costs, such as connection fees, earthworks, demolition of the existing structure, or landscaping of the outdoor areas, are already included in the house price. This means “turnkey” truly is turnkey, without the need for you to worry about additional costs or coordination.
Our advisory team provides you with an independent financing expert who will develop an individually tailored financing concept to meet your needs. In doing so, you benefit from the best possible market conditions and the optimal use of all current funding opportunities. This exclusive service is included in our service package and is free of charge.
All information provided is based on data from the seller. No guarantee can be given as to the accuracy and completeness of this information. Prior sale and errors are reserved. The visualizations include special equipment that is subject to additional charges.
Property characteristics
| Layout | 6+1 |
|---|---|
| Usable area | 137 m² |
| Price per unit | €9,635 / m2 |
| Listing ID | 987614 |
|---|---|
| Land space | 323 m² |
What does this listing have to offer?
| Balcony | |
| MHD 1 minute on foot |
| Garage | |
| Terrace |
What you will find nearby
Still looking for the right one?
Set up a watchdog. You will receive a summary of your customized offers 1 time a day by email. With the Premium profile, you have 5 watchdogs at your fingertips and when something comes up, they notify you immediately.

















