
House for sale 4+1 • 120 m² without real estateHintergasse 21, , Hesse
Hintergasse 21, , HessePublic transport 3 minutes of walking • ParkingThis charming single-family home is located in a quiet yet central area of Riedstadt-Goddelau. Originally built in 1922, the house combines historic character with modern living standards, having been comprehensively renovated and insulated in 2018. No major refurbishment measures are required at present – move in and feel at home.
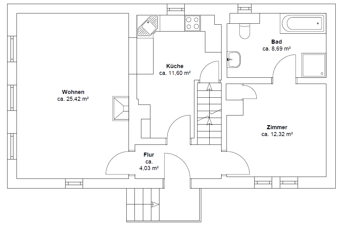
The property offers approximately 120 m² of living space, distributed over 4 well-proportioned rooms. The thoughtful layout provides a modern and bright living environment for both couples and families.
A particular highlight is the cozy living room with a fireplace that not only creates a warm atmosphere on cooler days but also imparts a special feeling of comfort to the home. This offering is complemented by a large basement with plenty of storage space as well as the finished attic space containing two additional rooms that can be used flexibly.
This house unites old-world charm, modern comfort, and family-friendly spatial solutions in a sought-after residential location – a home where you can settle in and feel comfortable.
The property is situated in a quiet residential area of Riedstadt-Goddelau. Daily shopping facilities, schools, kindergartens, and doctors are all reachable within minutes. Good access to public transport, the proximity of the train station (about a 10-minute walk), and nearby motorways ensure quick access to surrounding cities such as Darmstadt, Mainz, and Frankfurt. The nearby natural surroundings also invite you to enjoy walks and leisure activities.
The single-family home impresses with its well thought-out features and generous usable space. Particularly noteworthy is the large basement, which provides ample storage space for household items, supplies, or hobby equipment. In addition, the house features a finished attic space with two additional rooms that can be used flexibly as bedrooms, offices, or hobby rooms. The home's modern overall condition, along with the fireplace in the living room, rounds off the attractive equipment concept.
See for yourself during a personal viewing – we look forward to your inquiry!
Property characteristics
| Age | Over 5050 years |
|---|---|
| Layout | 4+1 |
| EPC | G - Extremely uneconomical |
| Land space | 161 m² |
| Price per unit | €2,908 / m2 |
| Condition | After reconstruction |
|---|---|
| Listing ID | 986035 |
| Usable area | 120 m² |
| Total floors | 2 |
What does this listing have to offer?
| Basement | |
| MHD 3 minutes on foot |
| Parking |
What you will find nearby
Still looking for the right one?
Set up a watchdog. You will receive a summary of your customized offers 1 time a day by email. With the Premium profile, you have 5 watchdogs at your fingertips and when something comes up, they notify you immediately.











