
Flat for sale 3+1 • 82 m² without real estate, North Rhine-Westphalia
After purchasing the apartment, the owner had it completely renovated before moving in (01/2018). The apartment, which measures 82 m², is located on the 2nd floor (no elevator). You will find a well-maintained building with 12 residential units, three per floor. The detached building, featuring brick-clad facades, was built in 1983 (plot size 1,124 m²) and is situated in the northwest of Marl. According to the energy certificate (2018), the building’s insulation standard is at least equivalent to the 1995 Thermal Insulation Regulation (WSVO).
The owner has been living in the apartment himself since its purchase (one person). In the building, half of the owners occupy their apartments. Schools, a wide range of shopping facilities, doctors, pharmacies, banks, and bus stops can be reached quickly on foot. Nearby, you will also find the access roads to the A 43 and A 52 highways. In front of the house is a 30 km/h zone, and at the back on both sides there are gardens.
District heating is used as the energy source (energy certificate 2018, final energy consumption of 81.10 kWh/(m²·a) including hot water). According to the insurer, the building is not located in a flood-prone area (hazard class GK 1 = very low risk).
Currently, DSL is available (100 Mbit/s, optionally 250 MBit/s for downloads). A fiber-optic distribution box has been installed directly in front of the house (Telekom, currently not available inside the building). A roof antenna supplies all apartments (DVB-S, TV HD, and radio).
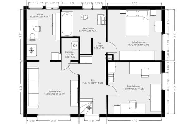
The well-proportioned apartment with an entrance hall features 3 rooms (a living/bedroom and an additional bedroom or study). In addition, there is a balcony, kitchen, bathroom with window/shower/bathtub, as well as a guest WC and storage room. All three rooms, along with the kitchen and the bathroom, branch off from the spacious hallway. The apartment includes a closed cellar storage unit with opaque sandstone walls. The basement laundry room with drying area offers one washing machine and one tumble dryer connection (stack) per apartment.
You will appreciate the completely modernized apartment: uniformly white wooden cassette doors, a glass door leading to the kitchen, and flooring laid throughout with light, polished granite tiles (easy to maintain). The bathroom and guest WC are finished in high-quality white up to the ceiling, accented with a black decorative band, and their floors are laid with black granite. Likewise, the interiors of the bathroom and guest WC have been entirely modernized. The apartment’s walls and ceilings are finished with white plaster or covered with white wallpaper.
Windows on three sides (corner apartment) create a bright, friendly atmosphere. The window sills are also made of granite. All rooms have roller shutters, which—except in the kitchen and bathroom—are electrically operated. The entrance hall, hallway, and kitchen feature suspended wooden ceilings with built-in lights. Numerous electrical outlets ensure a reliable power supply.
The uniformly designed fitted kitchen remains in the apartment – it is equipped with an extractor hood, stove, new dishwasher, new refrigerator, and plenty of cabinets (all by reputable manufacturers). The countertops and wall cladding are made of high-quality granite or white washable wallpaper.
On the fenced, fully landscaped property, there is a garage courtyard with 10 garages. One garage is owned with the apartment and is included in the purchase price. The parking space in front of it can be used for a car but is not a permanent parking spot.
Contact: Please provide your full address along with your telephone number and email address.
For data protection reasons, no information regarding the condominium owners’ association will be disclosed before the first viewing.
Note: The owner purchased the apartment without an agent, and the process was fair and swift. Even without an agent, everything is carried out in accordance with the law: a notary ensures the legal certainty of the purchase process or contract. He serves as an impartial and neutral advisor to the parties involved. The apartment is free of encumbrances.
Welcome: Individual viewings by appointment, also on weekends.
If you decide to purchase now due to the currently favorable interest rate, but wish to move in later (for example, in a year), the owner has an interesting proposal for you.
Property characteristics
| Age | Over 5050 years |
|---|---|
| Layout | 3+1 |
| Listing ID | 981029 |
| Usable area | 82 m² |
| Condition | After reconstruction |
|---|---|
| Floor | 2. floor |
| EPC | C - Economical |
| Price per unit | €2,439 / m2 |
What does this listing have to offer?
| Balcony | |
| Garage | |
| MHD 3 minutes on foot |
| Basement | |
| Parking |
What you will find nearby
Still looking for the right one?
Set up a watchdog. You will receive a summary of your customized offers 1 time a day by email. With the Premium profile, you have 5 watchdogs at your fingertips and when something comes up, they notify you immediately.













