
House for sale • 360 m² without real estate, Bavaria
, BavariaPublic transport 2 minutes of walking • ParkingThis well-maintained, detached multi-family house was built in 1976 and consists of three spacious residential units, totaling approximately 360 m² of living space.
Situated on a 671 m² plot, the house impresses with its quiet location in a cul-de-sac and its excellent overall condition.
With three separate residential floors, the property is ideally suited as an investment or for long-term, secure rental – all units are fully and reliably rented.
Overview of Residential Units
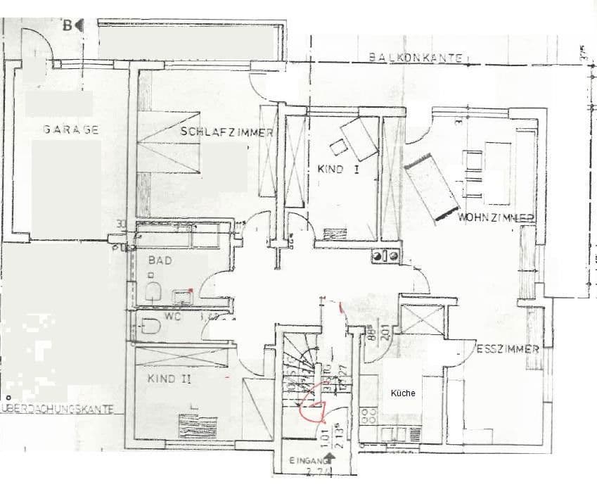
• 4-room ground floor apartment with approximately 125 m²
The ground floor apartment offers a generous layout with direct access to the very large garden. An covered terrace provides additional living comfort and invites relaxation.
• 4-room first floor apartment with approximately 130 m²
Bright, spacious rooms and a large balcony create a pleasant living atmosphere. This unit offers plenty of space for families and couples.
• 3-room top floor apartment with approximately 100 m²
The converted attic features its own balcony and impresses with a cozy layout filled with natural light.
The property stands out due to its solid construction, attractive location, and stable rental situation. With full occupancy, the house is an excellent long-term investment offering reliable income.
The property is located in the popular Alzenau district of Wasserlos, a quiet and family-friendly residential area known for its high quality of life. The surroundings are characterized by well-kept homes, lots of greenery, and a pleasantly relaxed atmosphere – ideal for tenants who value peace and privacy.
Wasserlos offers excellent infrastructure: shops, bakeries, schools, kindergartens, doctors, and various service providers can all be reached within a few minutes. Public transport connections are also very convenient, allowing quick access to both the center of Alzenau and neighboring towns.
For commuters, the location is particularly attractive: quick connections are available via the A45 and the B8 federal highway, leading to Aschaffenburg, Hanau, Frankfurt am Main, and the entire Rhine-Main area.
Nature lovers will benefit from the green surroundings: forests, fields, and walking paths are almost at the doorstep, offering ideal opportunities for recreational activities such as hiking, cycling, or simply relaxing in nature.
Overall, the location impresses with the perfect combination of peaceful living, good infrastructure, and optimal regional connectivity – an attractive site for long-term rental and high quality of living.
The house is in very well-maintained condition and has been continuously serviced.
It features a gas central heating system (energy certificate is currently being prepared).
Windows: double-glazed windows – a replacement is due or recommended.
Modernizations: Apart from the windows, no renovations are necessary.
Exterior:
• Very large garden for the ground floor apartment
• Carport available
• Sufficient public parking in the quiet cul-de-sac
The provided documents (e.g., floor plans, energy certificate, property information) are provided by third parties. We assume no liability for the accuracy, completeness, or timeliness of this information.
The energy certificate is currently being prepared.
All information is for preliminary purposes only and does not replace a personal viewing of the property or independent verification by the prospective buyer.
Property characteristics
| Age | Over 5050 years |
|---|---|
| Condition | Good |
| Usable area | 360 m² |
| Total floors | 3 |
| Available from | 15/12/2025 |
|---|---|
| Listing ID | 972555 |
| Land space | 671 m² |
| Price per unit | €2,108 / m2 |
What does this listing have to offer?
| Parking |
| MHD 2 minutes on foot |
What you will find nearby
Still looking for the right one?
Set up a watchdog. You will receive a summary of your customized offers 1 time a day by email. With the Premium profile, you have 5 watchdogs at your fingertips and when something comes up, they notify you immediately.






