
Flat for sale 3+1 • 70 m² without real estateSchöppingstr. 4a München Obermenzing Bayern 81247
The modern 3-room attic apartment is located in a charming and well-maintained multi-family house that was completed in 2017. The building is situated in the desirable Munich district of Obermenzing. The well-thought-out layout and high-quality fittings make this property the ideal home for small families, couples, or singles.
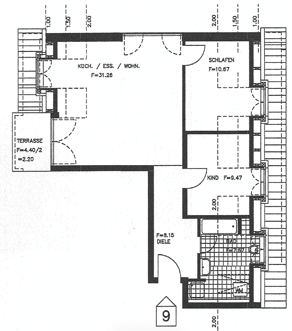
Upon entering the apartment, the high ceilings create a wonderful sense of space, which is further enhanced by the HARO parquet flooring. The central focal point of the apartment is the spacious open-plan living and dining area, which is complemented by a timeless fitted kitchen equipped with Miele appliances and a countertop made of high-quality quartz. From here, you can access the roof terrace, which, with its westward orientation, allows for wonderful evening sunshine. The terrace is equipped with a 600W balcony power plant that pleasantly reduces electricity costs.
The master bedroom features a custom fitted wardrobe, perfectly integrated into the room. The second bedroom can be used flexibly as a children’s room, guest room, or home office. Both bedrooms face east and are filled with pleasant daylight in the morning.
The two floor-to-ceiling windows in the living room are fitted with electric shutters, while the remaining windows have pleated blinds.
The bathroom impresses with its modern amenities, featuring both a bathtub and a shower with a glass door. An aesthetic highlight in the bathroom is the natural stone washbasin set on an antique dresser.
The apartment also includes a practical basement storage unit, which can be conveniently accessed on the lower level via the elevator.
This attractive offering is rounded off with an underground single parking space equipped with a wallbox, providing great comfort for owners of electric vehicles.
The property is located in Munich-Obermenzing, one of the greenest and most popular residential areas in western Munich. The street itself is a quiet residential road without through traffic – perfect for those who appreciate a relaxed and secure living environment. The surroundings are characterized by well-maintained detached houses and small apartment buildings, giving the area a homely, almost village-like atmosphere. At the same time, shopping facilities, doctors, daycares, and schools are accessible within minutes – whether by bike or on foot. For relaxation and leisure in nature, everything is provided: along the nearby Würm, idyllic walking and cycling paths invite you to linger. The Nymphenburg Palace Park and the picturesque Blutenburg with its extensive grounds are also easily accessible, offering wonderful spots for unwinding. For sociable hours, the traditional taverns "Inselmühle," "Alter Wirt," and "Weichandhof," with their atmospheric beer gardens, invite you to enjoy a meal or a drink and are only about a 5-minute walk away.
The transport connections are excellent. From the S-Bahn stations Obermenzing or Untermenzung (S2), you can reach Munich Central Station in about 15 minutes. Several bus lines complement the good access to public transport. By car, you benefit from quick access to the A8 and the inner ring road, making the entire city and surrounding area easily reachable.
Thus, the location uniquely combines tranquility, nature, and urban proximity – a combination that makes living in Obermenzing so attractive.
• Small and charming residential complex
• Photovoltaic system (installation in 2025) for powering the heat pump
• 600W balcony power plant
• High-quality HARO oak parquet flooring throughout the apartment
• Timeless fitted kitchen with Miele appliances, side-by-side refrigerator, and quartz countertop
• Underfloor heating
• Triple-glazed windows
• Spacious basement storage unit
• Bathroom with shower and bathtub, as well as high-quality porcelain stoneware tiles
• Electric shutters on the floor-to-ceiling windows / pleated blinds on all other windows
• Custom fitted wardrobe in the bedroom
• Underground single parking spot with wallbox
Property characteristics
| Age | Over 5050 years |
|---|---|
| Condition | Very good |
| Floor | 2. floor out of 2 |
| EPC | A - Extremely economical |
| Price per unit | €9,500 / m2 |
| Available from | 31/05/2026 |
|---|---|
| Layout | 3+1 |
| Listing ID | 969150 |
| Usable area | 70 m² |
What does this listing have to offer?
| Basement | |
| Lift |
| Garage | |
| MHD 2 minutes on foot |
What you will find nearby
Still looking for the right one?
Set up a watchdog. You will receive a summary of your customized offers 1 time a day by email. With the Premium profile, you have 5 watchdogs at your fingertips and when something comes up, they notify you immediately.


























