
House for sale 4+1 • 128 m² without real estateWeidenweg 25b, , Brandenburg
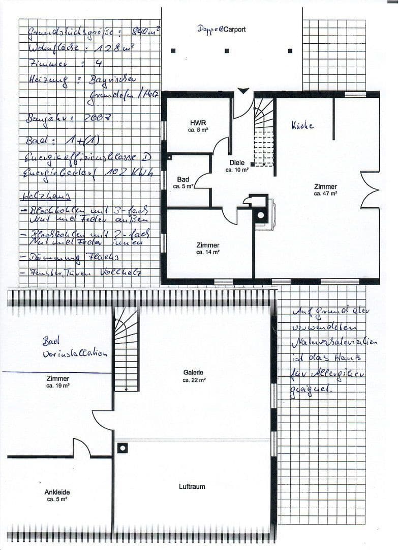
Weidenweg 25b, , BrandenburgPublic transport 10 minutes by car • ParkingThe Block log wooden house, built in 2007, is located at the end of the street on a side branch of the Havel River in the beautiful municipality of Birkenwerder. The unobstructed view of the water, and behind it a large meadow, gives the homeowner the feeling of a holiday in nature. The idyllic private bathing and fishing dock further reinforces this impression of living in harmony with nature. The 840 m² property, along with an additional small bungalow, offers the buyer opportunities for self-realization. The raised beds, paths, and parking areas are constructed from natural stone. There is also an in-house garden fountain. The log house was built primarily according to the guidelines of allergy-friendly living and has been fitted on the inside with non-toxic natural materials.
Public transport connections from the property include 2.3 km to the S-Bahn lines S1, S8, Regional trains, and 730 m to the bus stop. It is 1.4 km by car to the A10 motorway, and the federal highways B96 and B96a run through the town into the capital, ensuring excellent connectivity. Furthermore, local amenities such as shopping facilities, schools and kindergartens, doctors and pharmacies, leisure activities, and gastronomy are fully available within a 2-3 km radius.
After 18 years, the house is in good condition and ready for immediate occupancy. However, there is a need for repairs and renovations in some areas. The corresponding cost estimates are available as a basis for calculation. The second bathroom on the upper floor would need to be extended, with connections even available for a sauna. The exterior facade would need to be oiled.
Property characteristics
| Age | Over 5050 years |
|---|---|
| Listing ID | 968101 |
| Usable area | 128 m² |
| Total floors | 2 |
| Layout | 4+1 |
|---|---|
| EPC | C - Economical |
| Land space | 840 m² |
| Price per unit | €5,625 / m2 |
What does this listing have to offer?
| Parking |
| MHD 10 minutes by car |
What you will find nearby
Still looking for the right one?
Set up a watchdog. You will receive a summary of your customized offers 1 time a day by email. With the Premium profile, you have 5 watchdogs at your fingertips and when something comes up, they notify you immediately.































