
House for sale • 220 m² without real estate, Rhineland-Palatinate
, Rhineland-PalatinatePublic transport 7 minutes of walkingAttractive residential and commercial building with a total area of approximately 398 m² – divided into approximately 220 m² of living space and approximately 178 m² of commercial space (currently rented shop on the ground floor).
The elaborately and lovingly renovated residential and commercial building is located in the old town of Oppenheim, within the listed area of the “Historical City of Oppenheim” monument zone.
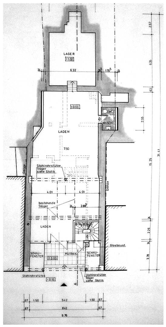
Ground Floor
On the ground floor, there is a high-quality retail and exhibition area that is currently leased. A 7.00-meter wide shop window front can be used for product display. The space is divided into a main room of 146 m² and a charming vaulted room of 32 m² used as a storage area, which benefits from natural daylight. It also features a small kitchenette with a sink/cabinet and a WC. The electrical system has been completely renewed, and an alarm system as well as air conditioning are in place. The area is fitted with high-quality solid wood parquet flooring.
1st Floor
On the 1st floor, you will find a large entrance area, as well as the kitchen, the dining room, and a study with a fireplace. On the same level, there is a large roof terrace (approximately 80 m²), accessible via the kitchen and dining room. The terrace is two-thirds greened and partly covered, providing a pleasant opportunity to spend time outdoors even on rainy summer days.
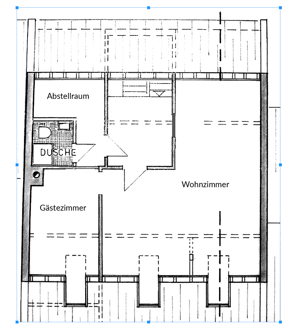
2nd Floor
On the 2nd floor, there is a spacious and modern bathroom that has been extensively renovated. The features include a curbless shower, a bathtub, two washbasins, one toilet, as well as connections for a washing machine and dryer. A distinctive feature is a pointed arch window dating back to the 13th century. Also on the 2nd floor, you will find three other spacious rooms, which can be used, for example, as children’s rooms or bedrooms.
Attic
In the attic, you will find a large studio with exposed wooden beams, and the roof window offers a beautiful view of the Saint Catherine’s Church. Also in the attic there is a guest room, a storage room, and an additional small bathroom with a shower and WC.
Basement
The vaulted basement offers additional storage space. In a separate room, there is a Buderus oil central heating system from 2024, which can be expanded into a heat pump hybrid system. This heating system is not subject to the new GEG and can be continuously operated with conventional heating oil.
The elaborately and lovingly renovated residential and commercial building is located in the old town of Oppenheim, within the listed area of the monument zone “Historical City of Oppenheim,” in immediate proximity to public transport (train station). The marketplace/town center can be reached on foot in two minutes. The town of Oppenheim is the center and administrative seat of the VG Rhein-Selz, which, with over 40,000 inhabitants, is the largest collective municipality in Rhineland-Palatinate.
Oppenheim is known for numerous tourist attractions (Saint Catherine’s Church, Landskron castle ruins, cellar labyrinth, festivals, wine festivals, and similar events) and is visited by approximately 100,000 tourists each year.
The building is situated in a monument zone, and parts of the basement are under historic protection. The photos of the shop were taken before the current tenants moved in. The property is located right in the middle of the old town, and free public parking spaces are available. Parking with a resident parking permit is possible. Parking spaces can also be rented in the neighborhood if necessary.
Attractive residential and commercial building with a total area of approximately 398 m² – divided into approximately 220 m² of living space and approximately 178 m² of commercial space (currently rented shop on the ground floor).
• Elaborate renovation from 2010 to 2014 (according to EnEV 2009)
• Solid wood parquet (oak) on the 1st and 2nd floors
• Wood strip floors in the attic
• Massive wood parquet in the shop and storage room
• Oil central heating system from 2024
• Cellulose insulation in the attic and roof slopes
• Solid wood sash windows modeled on historical examples
• Modern, spacious bathroom
• Ceiling heights ranging from 2.90 m to 3.10 m on the 1st and 2nd floors, approximately 2.45 m in the attic, creating a spacious feeling
• Roof re-covered in 2014
• Flat roof insulated and completely renewed in 2011
• All thermal insulation measures according to EnEV 2009
• Air conditioning in the bedroom and attic
• Average annual consumption over the last 3 years: 2984 liters of heating oil, corresponding to approximately 86 kWh/(m²·a), energy efficiency class C.
• Last year (after the heating system renewal): approximately 80 kWh/(m²·a),
Energy certificate not required (historic protection)
The photos of the shop were taken before the current tenants moved in, and the photos of the roof terrace were taken last summer.
Property characteristics
| Age | Over 5050 years |
|---|---|
| Listing ID | 967032 |
| Land space | 196 m² |
| Price per unit | €3,132 / m2 |
| Condition | After reconstruction |
|---|---|
| Usable area | 220 m² |
| Total floors | 4 |
What does this listing have to offer?
| Basement | |
| Terrace |
| MHD 7 minutes on foot |
What you will find nearby
Still looking for the right one?
Set up a watchdog. You will receive a summary of your customized offers 1 time a day by email. With the Premium profile, you have 5 watchdogs at your fingertips and when something comes up, they notify you immediately.












































