
House for sale • 170 m² without real estate, Lower Saxony
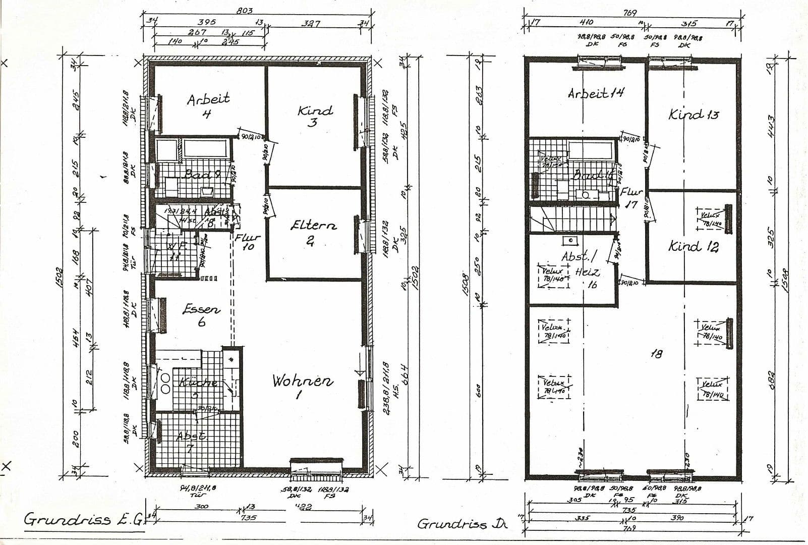
, Lower SaxonyPublic transport 1 minute of walking • Parking • GarageWelcome to picturesque Over, a charming district of Seevetal. Here you will find a spacious house in a quiet location, ideal for families and two generations. With a total area of 170 square meters and 8 bright rooms, this home offers plenty of space for your loved ones. It features 2 bathrooms, 2 well-equipped kitchens, as well as 3 terraces inviting you to relax outdoors. The garden also offers room for play and leisure activities, and it has been newly landscaped with low maintenance in mind.
An energy certificate is available. The house is heated with natural gas. According to the energy certificate, the energy consumption is 95.9 kWh per square meter, which places the house in energy class C.
The location couldn’t be better. Nearby, you will find the bus stops for lines 149 and 548, ensuring excellent connectivity to the surrounding area. A supermarket and restaurants are also reachable in less than 350 meters, and the DRK Kindergarten Bullenhausen is only 450 meters away from your new home. Schools are also in the vicinity.
This family home, with plenty of space and a welcoming environment, is the perfect place to create new memories. The house is designed as a multigenerational home and has been used in this way up until now. Don’t miss this opportunity—schedule a viewing appointment today!
The house has been continuously renovated.
In April 2020, new windows with triple glazing and RC2N security locking were installed, along with exterior doors featuring RC2N security locking.
In May 2021, a split air conditioning unit was added to the living and kitchen area in the attic.
In May 2023, the ground floor was renovated with an inspection and partial renewal of the electrical system.
In June 2024, the garden, along with the terraces and pergolas, was renewed.
Property characteristics
| Age | Over 5050 years |
|---|---|
| Listing ID | 966955 |
| Land space | 634 m² |
| Price per unit | €2,935 / m2 |
| Condition | Good |
|---|---|
| Usable area | 170 m² |
| Total floors | 2 |
What does this listing have to offer?
| Garage | |
| MHD 1 minute on foot |
| Parking | |
| Terrace |
What you will find nearby
Still looking for the right one?
Set up a watchdog. You will receive a summary of your customized offers 1 time a day by email. With the Premium profile, you have 5 watchdogs at your fingertips and when something comes up, they notify you immediately.






















