
House for sale • 221 m² without real estate, Baden-Württemberg
1-2 family house, built in 1988, completely renovated, with further renovations carried out over the years. Additional refurbishment work is needed. An extension and conversion may possibly be feasible. Large garden with many possibilities for design. A gas connection is available for converting the heating system in the house.
Good central location, just a few minutes' walk to the train station, kindergarten, shopping, schools, doctors, etc.
It also offers quick access to nature for hiking or cycling.
An older fitted kitchen is available.
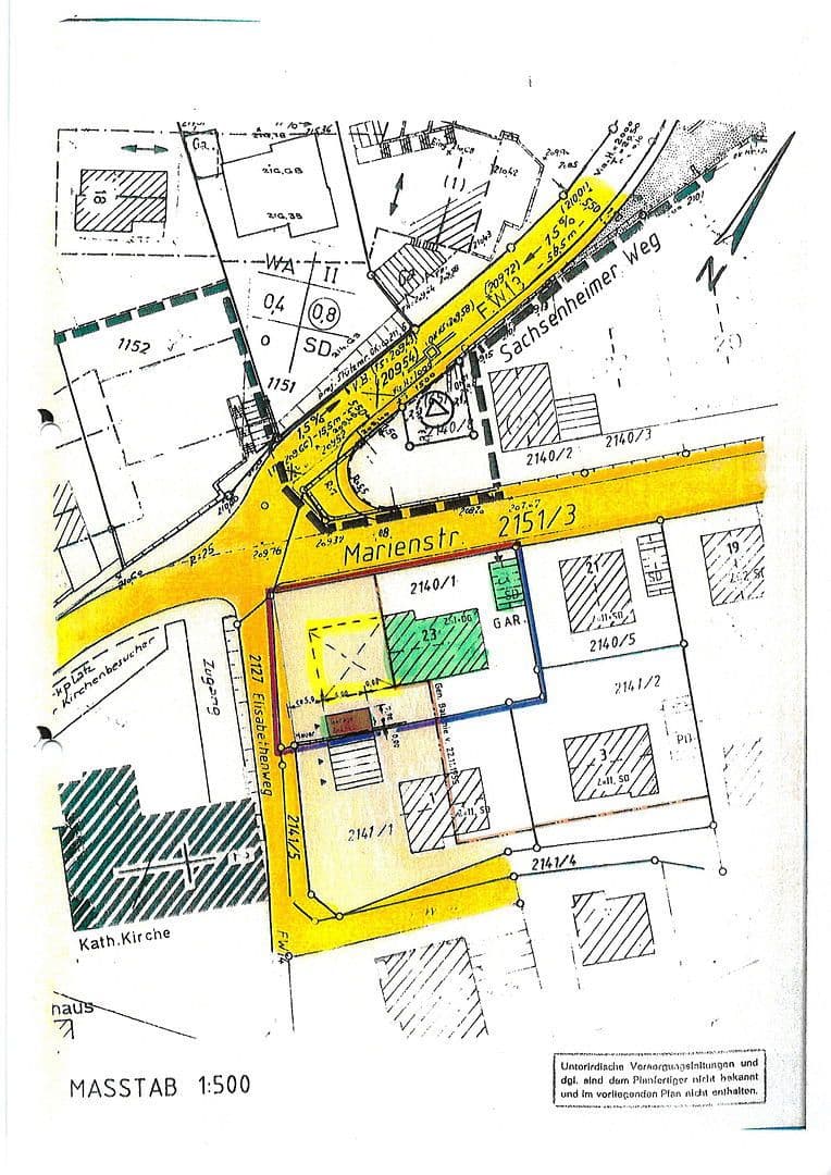
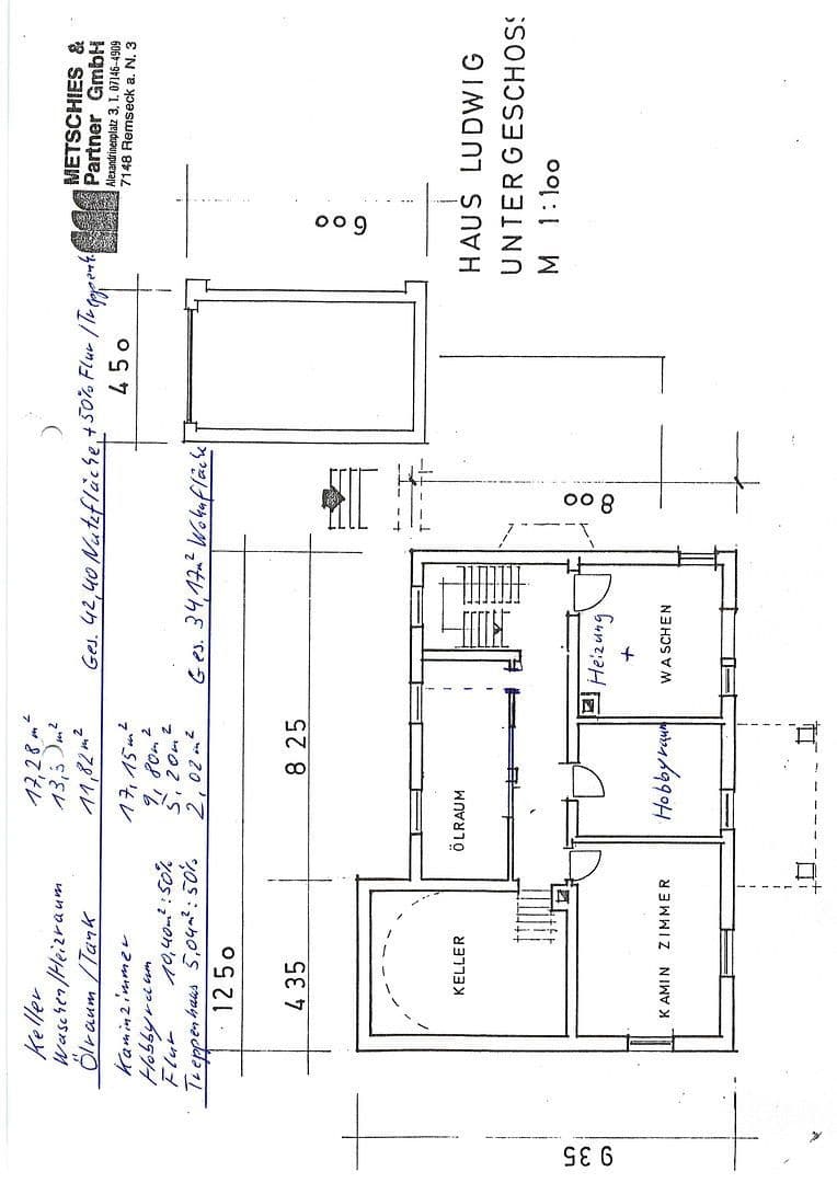
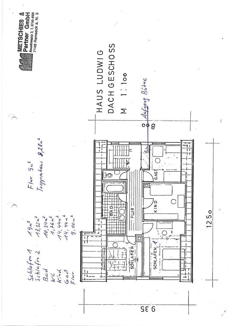
Property characteristics
| Age | Over 5050 years |
|---|---|
| EPC | G - Extremely uneconomical |
| Land space | 701 m² |
| Price per unit | €2,941 / m2 |
| Listing ID | 960972 |
|---|---|
| Usable area | 221 m² |
| Total floors | 1 |
What does this listing have to offer?
| Balcony | |
| Garage |
| Basement | |
| MHD 3 minutes on foot |
What you will find nearby
Still looking for the right one?
Set up a watchdog. You will receive a summary of your customized offers 1 time a day by email. With the Premium profile, you have 5 watchdogs at your fingertips and when something comes up, they notify you immediately.










