
House for sale 6+1 • 179 m² without real estate, Lower Saxony
, Lower SaxonyPublic transport 4 minutes of walking • Parking • GarageProperty Description
In a family-friendly location in Syke-Barrien, this charming detached house, situated on a quiet residential street, presents itself as an ideal home for families who wish to combine spacious living with an attractive location.
Constructed in 1977, the house impresses with its well-maintained overall condition and the recent renovation completed in 2024, allowing for immediate move-in.
With a living area of approximately 179 m² spread over two floors, the house offers six intelligently designed rooms that can be used flexibly – whether as a bedroom, children’s room, or office. Two modern bathrooms, equipped with a shower and a bathtub, provide comfort and functionality for everyday family life.
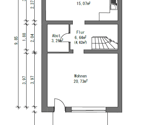
On the ground floor, you enter the house and find a spacious hallway from which both the staircase to the upper floor and the cellar branch off.
On this level, there is a kitchen, a bathroom, a bedroom, a living room, and a dining room – each featuring large windows with views of the garden. In front of these rooms lies a terrace that spans the width of the house.
A particular highlight is the bright, light-filled attic: generous window surfaces and Velux roof windows create a bright, friendly atmosphere – ideally suited as a rental apartment, studio, guest room, or retreat for creative hobbies.
The spacious property, with approximately 1,000 m², invites you to linger, play, and create. The well-maintained lawn offers many possibilities for individual garden design. A sunny terrace invites you to relax outdoors and enjoy social moments with family and friends.
The attractive overall package is completed by a full basement that provides additional storage space, as well as a garage, a workshop with heating and high-voltage supply, and an outdoor parking space for comfortable parking.
________________________________________
Features – Your Benefits at a Glance
• Attractive location in the popular district of Syke-Barrien – ideal for owner-occupiers and investors
• Spacious property with approximately 1,000 m² of garden area and several sunny terraces and a balcony
• Well-maintained condition – last renovation in 2024
• Flexible usage possibilities: guest apartment, studio, guest or hobby area
• Full basement with additional storage space
• Garage and outdoor parking space for comfortable parking
• Central heating (gas) – heat generator renewed in 2024
Location Description
The property is located in the sought-after and family-friendly Nelkenstraße in the Barrien district of Syke. The residential area is characterized by a quiet, well-kept neighborhood predominantly featuring detached houses and plenty of greenery.
Infrastructure and Education:
Barrien boasts excellent infrastructure. In the immediate vicinity, there are three kindergartens as well as the Barrien elementary school, which is within walking distance. Secondary schools, including Syke’s secondary and grammar schools, are just a few minutes by car away and are also easily accessible by bicycle or school/bus.
Leisure and Sports:
The leisure offerings in Barrien and the city of Syke are diverse. Numerous sports clubs offer activities such as soccer, tennis, gymnastics, horseback riding, and athletics. Particularly popular is TSV Barrien, which impresses with a wide range of activities for all ages. The surrounding nature, with meadows, fields, and small forests, invites you to enjoy walks, jogging, and bike rides.
Transport Links and Shopping Opportunities:
Barrien has its own train station with connections to the Bremen–Osnabrück regional train, making Bremen reachable in about 20 minutes. Additionally, there is good access to federal highway B6, which connects Syke with Bremen’s city center as well as Nienburg. Shopping options for daily needs, doctors, pharmacies, and restaurants are in the immediate vicinity and are mostly conveniently reachable on foot or by bicycle.
Conclusion:
Nelkenstraße in Syke-Barrien offers an ideal combination of attractive living amid greenery and excellent infrastructure – perfect for families, commuters, and nature lovers alike.
Features – Your Benefits at a Glance
• Attractive location in the popular district of Syke-Barrien – ideal for owner-occupiers and investors
• Spacious property with approximately 1,000 m² of garden area and several sunny terraces and a balcony
• Well-maintained condition – last renovation in 2024
• Flexible usage possibilities: guest apartment, studio, guest or hobby area
• Full basement with additional storage space
• Garage and outdoor parking space for comfortable parking
• Central heating (gas) – heat generator renewed in 2024
Property characteristics
| Age | Over 5050 years | 
|---|---|
| Layout | 6+1 | 
| EPC | D - Less economical | 
| Land space | 1,000 m² | 
| Price per unit | €2,291 / m2 | 
| Condition | After reconstruction | 
|---|---|
| Listing ID | 959411 | 
| Usable area | 179 m² | 
| Total floors | 2 | 
What does this listing have to offer?
| Balcony | |
| Garage | |
| MHD 4 minutes on foot | 
| Basement | |
| Parking | |
| Terrace | 
What you will find nearby
Still looking for the right one?
Set up a watchdog. You will receive a summary of your customized offers 1 time a day by email. With the Premium profile, you have 5 watchdogs at your fingertips and when something comes up, they notify you immediately.






























