
Flat for sale 2+kk • 52 m² without real estateOderská, Brno - Starý Lískovec, Jihomoravský Region
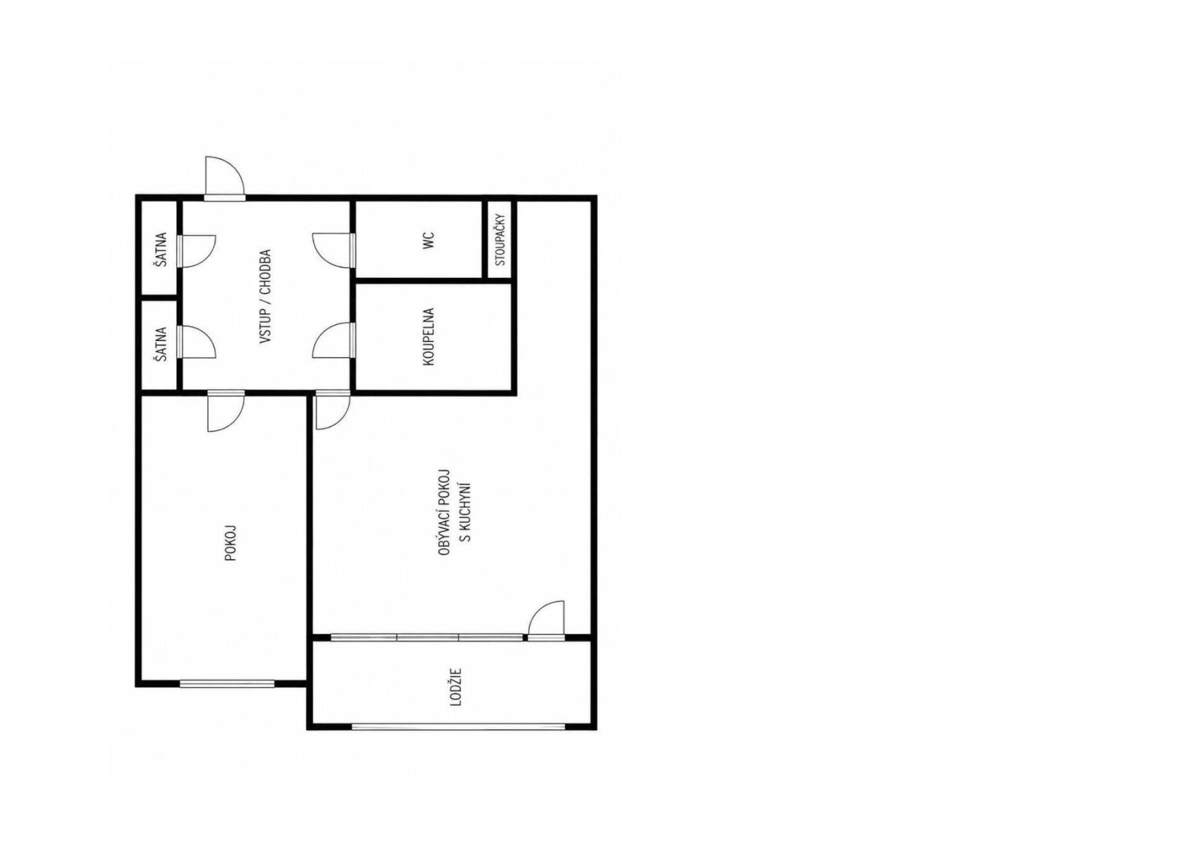
Nabízím k prodeji byt 2+kk ve velmi dobrém stavu nacházející se v panelovém domě. Byt o celkové ploše 52 m² se nachází na 6. podlaží sedmipodlažního domu s výtahem.
Orientace oken je na východ. Nemovitost je v osobním vlastnictví. Byt je k prodeji s vybavením nábytkem viz, foto dále klimatizací, lednicí, pračkou se sušičkou, mikrovlnou troubou, indukčním vařičem. Součástí bytu je také lodžie o rozloze 5 m², k bytu náleží malý sklep o rozloze 2,4 m².
Dispozice, vybavenost a energetická náročnost budovy se štítkem C společně přispívají k ekonomickému a komfortnímu bydlení. Při veškerých výhodách nabídky je nutno počítat s tím, že parkovací místo ani garáž nejsou součástí této nemovitosti. Pro bližší informace a sjednání prohlídky mne kontaktujte skrz zprávy prostřednictvím komunikační platformy.
Property characteristics
| Available from | 17/05/2026 |
|---|---|
| Building construction | Precast concrete |
| Fully furnished | Fully furnished |
| Listing ID | 1017646 |
| EPC | C - Economical |
| Usable area | 52 m² |
| Condition | Very good |
|---|---|
| Layout | 2+kk |
| Floor | 6. floor out of 7 |
| Ownership | Personal |
| Location | Residences |
| Price per unit | CZK 117,307.69 / m2 |
What does this listing have to offer?
| Wheelchair accessible | |
| Lift |
| Basement: 2.4 m² | |
| Loggia balcony: 5 m² |
What you will find nearby


Flat for saleČervený kopec, Brno - Štýřice, Jihomoravský Region- 2+kk
- 47 m²
CZK 6,750,000CZK 6,900,000
Save CZK 150,000


Still looking for the right one?
Set up a watchdog. You will receive a summary of your customized offers 1 time a day by email. With the Premium profile, you have 5 watchdogs at your fingertips and when something comes up, they notify you immediately.













