
House for sale • 196 m² without real estateFritz-Henkel-Str. 18, , Rhineland-Palatinate
Fritz-Henkel-Str. 18, , Rhineland-PalatinatePublic transport 2 minutes of walking • Parking • GarageDiscover your new home!
This charming single-family house, built in 1939, was comprehensively modernized and renovated with great care in 2016. Today, it combines classic character with contemporary living comfort.
With approximately 200 m² of living space and eight rooms, you’ll find plenty of room for a pleasant family life.
The three floors offer bright and inviting living areas.
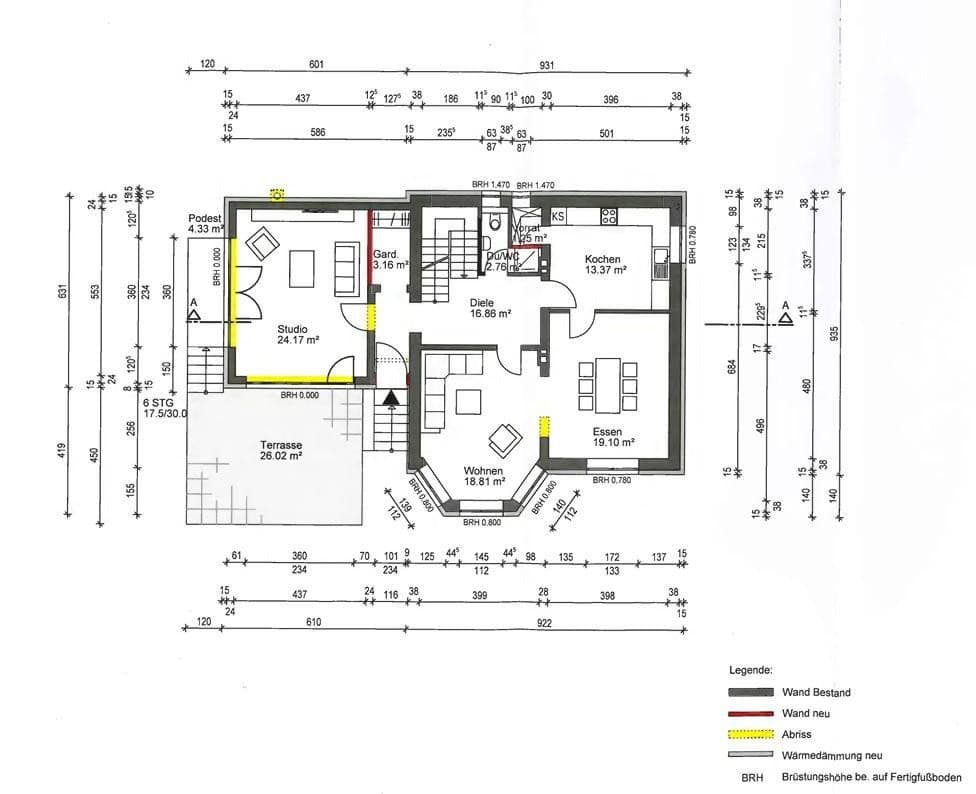
On the ground floor, there is a hallway with a cloakroom, a spacious kitchen with a practical storage room, the dining room and living room, as well as a guest toilet with shower. In the 1959 extension, you’ll find a separate, light-filled office/garden room. This area is ideal for self-employed professionals or as a quiet home office.
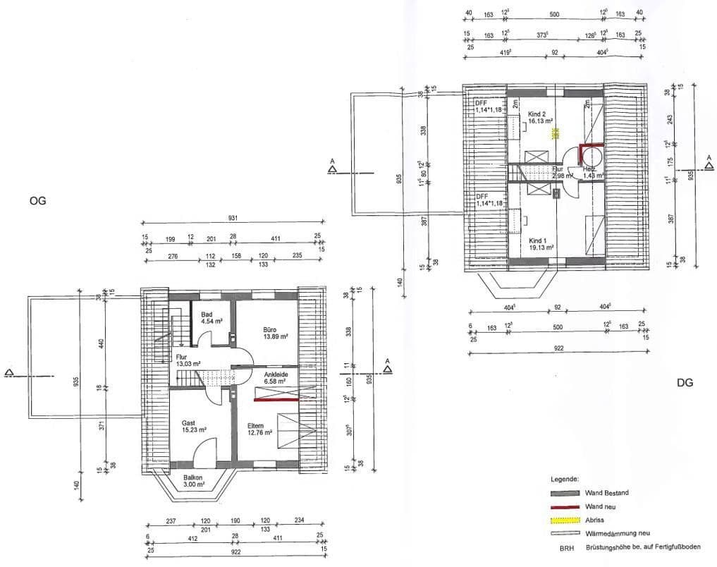
On the upper floor, you will discover a cozy master bedroom, two additional versatile rooms, and a daylight bathroom with shower.
The attic, finished in 2016, provides two additional rooms and a technical room. A modern hybrid air-water heat pump from 2016 ensures pleasant warmth.
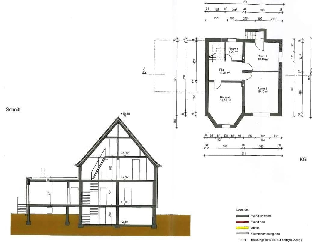
The lovingly maintained garden invites you to relax, play, and linger outdoors. A garage and a parking space for a car, a spacious basement with about 67 m² of usable space, as well as the approximately 747 m² large plot, complete this attractive offering.
The quiet location in the immediate vicinity of the Rhine makes this house a special place – ideal for families looking for a beautiful and relaxed home.
This detached single-family house is situated in one of the most desirable residential areas of the idyllic Rhine village of Unkel – just a few steps from the Rhine. The surroundings are characterized by well-kept single-family houses, abundant greenery, and a friendly neighborhood, making it a delightful home for families with children. The nearby Rhine promenade invites you to enjoy leisurely strolls, bike tours, and relaxing hours outdoors.
Unkel impresses with excellent infrastructure: shopping facilities for daily needs – including supermarkets, bakeries, pharmacies, and doctors – are easily accessible. Families also benefit from a strong educational offering, with kindergartens, a primary school, and secondary schools in the area. The town also has much to offer culturally – a music school, a library, and various events in the town center.
The historic town center delights with a selection of cozy restaurants, cafés, and wine taverns, providing culinary variety from regional to Mediterranean specialties. Numerous leisure and sports opportunities are available, such as sports clubs, a football field, or the Ilse Bagel Park just 100 meters away with its playground, fitness trail, and boule court.
Transportation is equally excellent: the train station is conveniently reachable on foot in 5 minutes and offers direct connections to Bonn, Cologne, and Koblenz. By car, you can reach Bonn in about 25 minutes and Cologne and Neuwied in roughly 40 minutes. The nearby B42 further ensures quick connections.
The property offers the following room layout:
Ground Floor:
• Large entrance hall
• Cloakroom
• Living room
• Dining room
• Kitchen with pantry
• Guest WC with shower
• Office/Garden room (extension)
First Floor:
• Bedroom
• Child’s room
• Child’s room
• Bathroom with shower, toilet, sink, and window
Attic:
• 2 Bedrooms
• Heating room
Basement:
• Hallway
• 3.5 basement rooms
All living areas are equipped with wooden plank flooring.
The bathrooms and the garden room are tiled.
Property characteristics
| Age | Over 5050 years |
|---|---|
| Listing ID | 1014392 |
| Usable area | 196 m² |
| Total floors | 3 |
| Condition | After reconstruction |
|---|---|
| EPC | A - Extremely economical |
| Land space | 747 m² |
| Price per unit | €3,545.92 / m2 |
What does this listing have to offer?
| Balcony | |
| Garage | |
| MHD 2 minutes on foot |
| Basement | |
| Parking | |
| Terrace |
What you will find nearby
Still looking for the right one?
Set up a watchdog. You will receive a summary of your customized offers 1 time a day by email. With the Premium profile, you have 5 watchdogs at your fingertips and when something comes up, they notify you immediately.




























