
Flat for sale 2 bedroom • 57 m² without real estateBerlin Schöneberg Berlin 10827
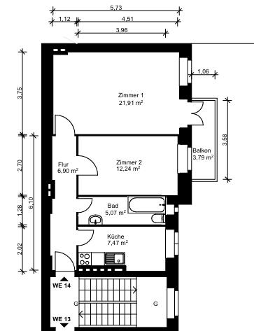
Berlin Schöneberg Berlin 10827Public transport 1 minute of walkingThe 2-room apartment of approximately 57 m² is located in a Berlin Altbau dating from 1905. The floor plan provides a good basis for a beautiful city apartment: a living room, bedroom, separate kitchen, and a daylighted bathroom with a bathtub and window. Original stucco elements, cassette doors, and wooden double-hung windows underscore the building’s original charm.
The apartment, which is in need of renovation, is currently vacant and offers owner-occupiers the opportunity to shape it to their own ideas and create a true home.
It is presently heated by an oil-fired central heating system. A new heating system and further modernizations of the building are already planned, with the costs for these improvements to be covered by the seller.
The apartment is located in the sought-after Berlin district of Schöneberg (Tempelhof-Schöneberg borough) – characterized by Gründerzeit architecture, lively neighborhood streets, and well-established local amenities. Cafés and restaurants are practically at your doorstep, as are supermarkets and other everyday retail outlets.
Green spaces for a quick escape are within walking distance, and the Volkspark Schöneberg-Wilmersdorf is easily accessible. The presence of nearby kindergartens and schools further emphasizes the convenience of the location.
The transportation connections are excellent: a bus stop is approximately 100 m away, the S-Bahn station about 300 m, and the U-Bahn station around 700 m, providing swift links to both City West and City East. A regional/intercity train station is about 1.2 km away, and the city motorway A100 can be reached after roughly 750 m.
Property characteristics
| Age | Over 5050 years |
|---|---|
| Condition | Before reconstruction |
| Floor | 1. floor |
| Usable area | 57 m² |
| Available from | 19/04/2026 |
|---|---|
| Layout | 2 bedroom |
| Listing ID | 1013117 |
| Price per unit | €4,649.12 / m2 |
What does this listing have to offer?
| Balcony | |
| MHD 1 minute on foot |
| Basement |
What you will find nearby
Still looking for the right one?
Set up a watchdog. You will receive a summary of your customized offers 1 time a day by email. With the Premium profile, you have 5 watchdogs at your fingertips and when something comes up, they notify you immediately.























