
House for sale 6+1 • 200 m² without real estate, Brandenburg
Embedded in a quiet and meticulously maintained residential area on the edge of a designated landscape conservation area, this exceptional house combines modern architecture with nature-inspired living at the highest level.
The harmonious combination of wood, glass, and steel, along with the clean architectural lines, creates a stylish yet warm living atmosphere. Expansive glass surfaces open up the view from the living spaces and garden, extending far over the water and blurring the boundaries between interior and exterior. The spaciousness, natural light, close proximity to the lake, and the unique tranquility of this location bestow the house with a singular atmosphere.
The house impresses with its distinctive structural design as a solid timber construction – one of the highest quality forms of wooden construction that clearly distinguishes itself from classic stud framing. In combination with a modern heat pump and ecological materials, the property meets the highest energy standards as a sustainable low-energy house.
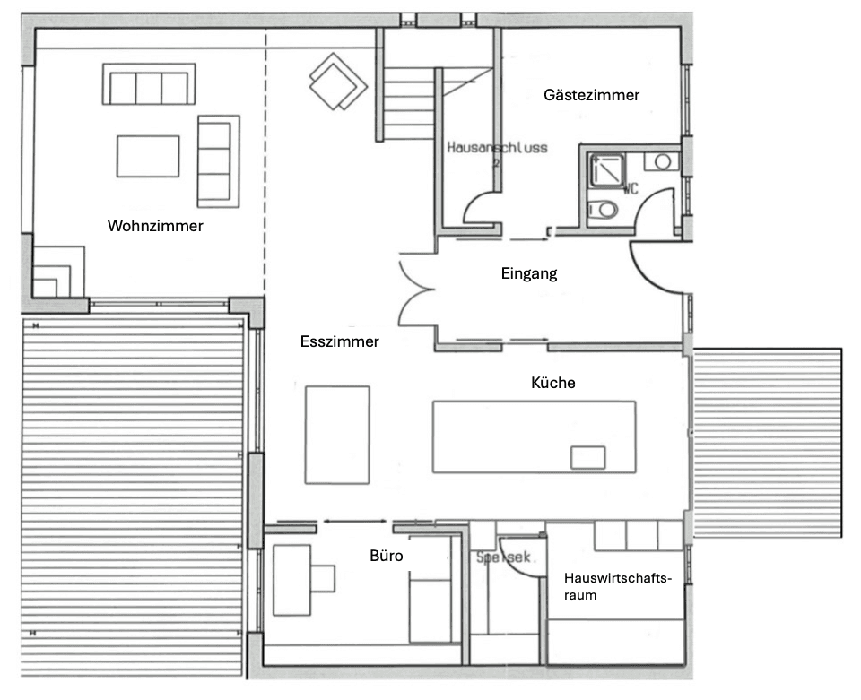
On the ground floor, you will find the generous living and dining area with ceilings approximately 2.80 m high, which forms the heart of the home. Floor-to-ceiling glazing ensures ample daylight and opens the space onto a spacious terrace with an unobstructed view of the lake. Above the living area, an open gallery stretches to the underside of the sloping roof, creating an impressive internal height of over 5 meters. The clear sightlines and the broad view of the greenery emphasize the open spatial feel and the strong connection with nature.
The open designer kitchen featuring a stylish stainless-steel worktop blends harmoniously into this area and serves as the central meeting point of the house. Floor-to-ceiling windows open the room onto a sheltered breakfast terrace in the courtyard. Behind the kitchen, discreetly separated by a swinging door, are the utility room with a functional work kitchen and an additional pantry that provides practical storage and short, convenient access in daily life.
An office with a built-in bench offers a pleasant place for work or reading. The ground floor also accommodates a guest room, a storage and utility room, and a modern guest WC with a shower.
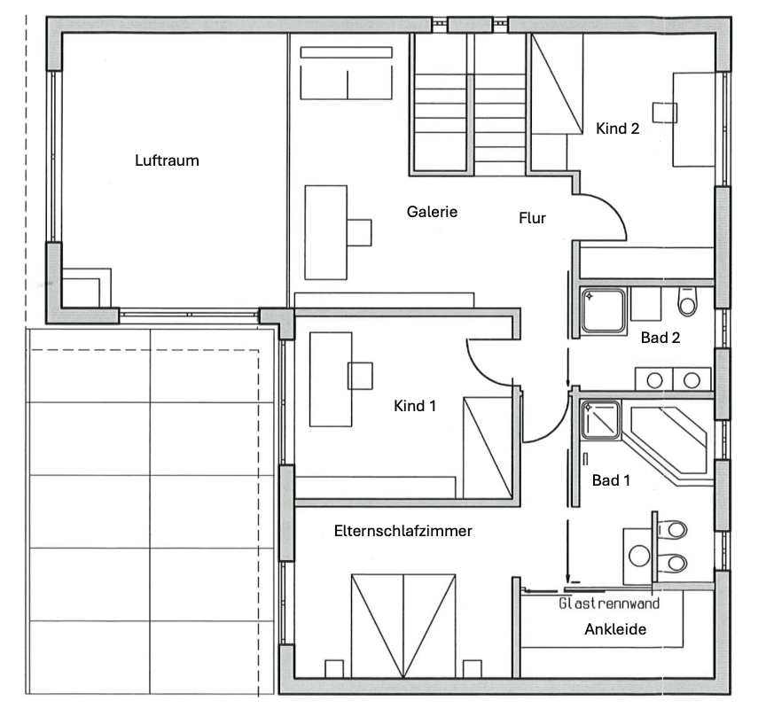
On the upper floor, you will find an open gallery, three spacious rooms with charming views of the lake, as well as two high-quality, fully equipped bathrooms. The master bedroom is designed as a private unit, combining the sleeping area, en-suite bathroom, and a walk-in closet (with a roof window) into an exclusive retreat.
The outdoor area is equally impressive with its thoughtful design. The south-west facing plot offers optimal sun conditions and breathtaking views. Mature trees, a variable sun sail, and aluminum shutters provide pleasant shading. An automatic irrigation system using well water simplifies garden maintenance.
The covered entrance area, featuring an elegant glass-steel construction, completes the overall architectural concept and offers a comfortable, sheltered access directly from the carport and garages into the house.
A particular highlight is the stylish garden sauna with an expansive glass front, which creates a seamless connection between interior and exterior and underscores the estate’s value as a place for relaxation.
Another highlight of this property is the direct access to the Falkenhagener Lake, which lies immediately in front of the property. Here, a variety of leisure activities such as swimming, boating, or lakeside walks await.
A home for those who appreciate architecture, nature, and quality in perfect balance.
Falkensee, with around 45,000 inhabitants, is among the highly sought-after residential locations right on the border of Berlin. Nestled in the charming nature of the Havelland, surrounded by forests and meadows, the town offers fully developed infrastructure. This includes a wide range of educational and childcare facilities, numerous shopping opportunities, service providers, and excellent medical care – everything you need for daily life can be found here.
For families, various daycare centers such as “Kita am See” and other facilities in the vicinity are available. There is also a broad selection of schools for children, including institutions with the Montessori concept, the Europaschule, or the Leonardo-da-Vinci-Campus in Nauen.
In addition, Falkensee offers an attractive culinary scene with Italian restaurants, steakhouses, Greek cuisine, and many other gastronomic options. The lifestyle of “living in Falkensee and working in Berlin” is particularly popular – both among employees of large companies and among scientists and politicians.
Thanks to well-developed transportation routes, you can reach downtown Berlin by car in about 30 minutes, for example via the B5/Heerstraße, Brunsbütteler Damm, or Falkenseer Chaussee/Nonnendammallee. The B5 also provides fast access to the highway network, making long-distance destinations such as Hamburg or Hanover quickly accessible.
Public transport is well organized as well: Bus lines 652, 653, and 655 connect Falkensee with the stations in Falkensee, Seegefeld, Finkenkrug, and Dallgow-Döberitz, as well as with Havelpark. Leisure options such as the B5 Outlet Center, the Strawberry Farm, or the Döberitzer Heide are quickly reachable and invite active relaxation.
Whether it’s watersports on the lake, jogging in the nearby forest, or activities such as horseback riding, golfing, and tennis – the surroundings offer numerous possibilities for a varied and active lifestyle.
The three regional train stations are approximately a 5 to 8 minute drive or bike ride away. From there, you can reach Berlin’s central station in around 20 minutes – ideal for commuters. In less than 10 minutes, you can also reach Berlin-Spandau station, which is served by the U-Bahn line U7 as well as long-distance and regional services (ICE, IC/EC, as well as S-Bahn and regional trains).
Features & Highlights:
• Architectural house with solid timber construction by the lake
• Plot of approximately 1,134 m² in a quiet location with an unobstructed view of the lake
• Living area of approximately 200 m² with generous spatial design
• Spacious living and dining area with floor-to-ceiling glazing and lake views
• Open gallery above the living area
• South-west facing garden plot
• Fully galvanized shed roof – exceptionally durable and high-quality construction
• Low-energy house (energy class A) with a new heat pump and ecological building materials
• Underfloor heating
• Exclusively fitted carpentry kitchen with a stainless steel worktop
• Living room with a fireplace
• Master bedroom with an open-plan en-suite bathroom
• Breakfast and lake terraces with variable sun sail
• Doors on the ground floor are about 2.50 m high
• High-quality, electrically operated external blinds with adjustable slats in all rooms
• Separate work kitchen in the utility room
• Covered entrance area in an elegant glass-steel construction
• 2 individual garages and 1 carport with a spacious courtyard
• Fashionable gate system with an electric sliding gate and courtyard door
• Separate sauna house with a glass front and external shutters
• Automatic irrigation system (5 control circuits) using water from its own well
• 2 garden sheds for tools and a workbench
• Built-in closets in the hallway
Property characteristics
| Age | Over 5050 years |
|---|---|
| Layout | 6+1 |
| EPC | A - Extremely economical |
| Land space | 1,134 m² |
| Price per unit | €8,125 / m2 |
| Condition | After reconstruction |
|---|---|
| Listing ID | 1010799 |
| Usable area | 200 m² |
| Total floors | 2 |
What does this listing have to offer?
| Wheelchair accessible | |
| Parking | |
| Terrace |
| Garage | |
| MHD 1 minute on foot |
What you will find nearby
Still looking for the right one?
Set up a watchdog. You will receive a summary of your customized offers 1 time a day by email. With the Premium profile, you have 5 watchdogs at your fingertips and when something comes up, they notify you immediately.
































