
Flat for sale 3+kk • 76 m² without real estateŠluknovská, Prague - Střížkov
NABÍZÍM KOMPLETNĚ ZREKONSTRUOVANÝ KRÁSNÝ BYT 3+KK S GARÁŽÍ.
Jedná se o revitalizovaný dům s krásným výhledem, s kuchyní na míru a krásnou prostornou koupelnou, na Střížkově a dobrou dostupností do centra.
Nejedná se o vizualizaci, byt je po náročné a vydařené rekonstrukci.
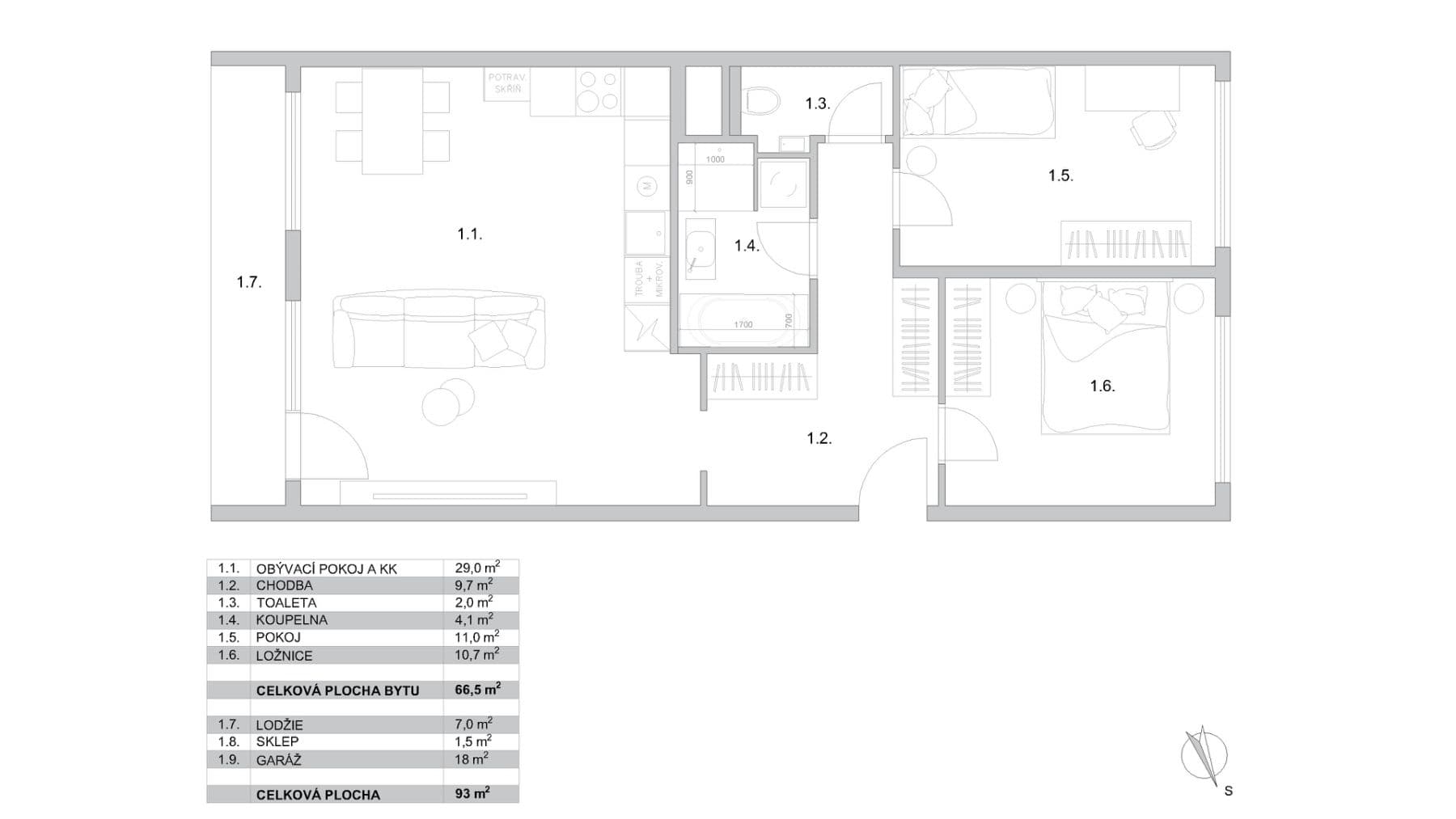
Byt je dispozičně velmi dobře řešený s kuchyní a obývacím pokojem, kde je 29 m2 prostoru. Dále se dvěma prostornými ložnicemi, nádhernou koupelnou s podlahovým topením a samostatnou toaletou. Byt má lodžii a sklep a prostornou kolárnu. Jedná se o velmi klidnou lokalitu v blízkosti zeleně a mnoha nákupních možností. Parkování je před domem a k tomu naproti přes ulici parkovací dům se samostatnou garáží, která je součátí bytu, klidová zóna s hřištěm pro děti se nachází na druhé straně domu.
Dispozice bytu 3+kk:
- 2x plnohodnotná ložnice (10,7 m2 + 11m2)
- Obývací pokoj s prostornou kuchyní na míru (29 m2)
- Vstupní chodba s úložnými prostory ( 9,7 m2)
- Koupelna s vanou a sprchovým koutem a místem na pračku se sušičkou (4,1m2)
- WC ( 2 m2)
- Lodžie ( 7 m2)
- Sklep (1,5 m2)
- Garáž ( 18 m2) - samostatně uzamykatelná
V kompletní rekonstrukci ve standardu novostavby je zahrnuto:
- nová kuchyňská linka vyrobena na míru se spotřebiči (značková elektrická trouba, myčka, indukční deska, digestoř, osvětlení, dřez)
- celková výměna elektroinstalačních rozvodů v mědi
- nové osvětlení bytu
- kompletní úprava povrchů stěn
- nové zárubně a dveře
- nivelace podlah a nová vinylová podlaha
- nová sanita (vana, sprchový kout, umyvadlo, skříňka, toaleta)
- podlahové topení v koupelně s digitálním termostatem
- sádrové omítky a SDK podhled v celém bytě
- příprava na pračku v koupelně
Co charakterizuje bytový dům:
- Dům je velmi dobře spravován SVJ s velkým zaměřením na čisté, klidné a bezpečné bydlení.
- Dům je po celkové revitalizaci. Je zateplený a samozřejmostí jsou plastová okna
- Zrekonstruované jsou i společné prostory
Velkou výhodou je kompletní občanská vybavenost, blízkost nákupního centra a dostupnost MHD , zeleň je všude v okolí domu. Zároveň jste autem za pár minut na městském okruhu nebo v centru města.
Budu se těšit na osobní schůzku při prohlídce. Pro sjednání termínu prohlídky, prosím, vyplňte formulář níže.
Prosím o kontaktování jenom přímé zájemce, a ne realitní kanceláře. Děkuji za respektování.
Property characteristics
| Available from | 07/04/2026 |
|---|---|
| Building construction | Precast concrete |
| Fully furnished | Partly |
| Listing ID | 1009719 |
| EPC | C - Economical |
| Usable area | 76 m² |
| Condition | New-build |
|---|---|
| Layout | 3+kk |
| Floor | 7. floor out of 7 |
| Ownership | Personal |
| Location | Quiet area |
| Price per unit | CZK 144,605.26 / m2 |
Are you choosing a apartment?
Make sure you have all the important information!
What does this listing have to offer?
| Garage | |
| Loggia balcony: 7 m² |
| Lift |
What you will find nearby
Still looking for the right one?
Set up a watchdog. You will receive a summary of your customized offers 1 time a day by email. With the Premium profile, you have 5 watchdogs at your fingertips and when something comes up, they notify you immediately.
























