
Flat for sale 3+1 • 87 m² without real estateGervinusstraße 1b Berlin Charlottenburg Berlin 10629
Gervinusstraße 1b Berlin Charlottenburg Berlin 10629Public transport 2 minutes of walking • Lift**Fully Designed. Ready to Live In.**
This apartment wasn’t just built—it was thoughtfully planned. Every detail, from the FENIX designer kitchen to the natural stone in the bathroom, is the result of a professional design concept from 2016. Here, there’s nothing left to plan, no renovations to worry about, no furnishing required. You simply open the door and live.
Layout:
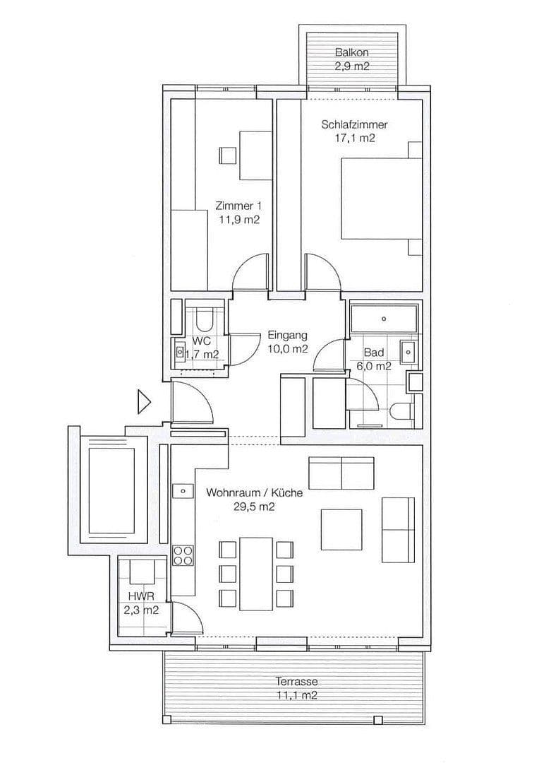
• Open-plan Kitchen (29.5 m²): Spacious design with floor-to-ceiling south-facing windows, FENIX designer kitchen in matte champagne, integrated Siemens and Bosch appliances, oak parquet with underfloor heating
• Bedroom (17.1 m²): Custom-built wardrobes, blackout curtains, private balcony
• Study (11.9 m²): Suitable as a home office, library, or guest room—flexibly usable
• Main Bathroom: Freestanding bathtub, walk-in shower, natural stone
• Separate Guest WC with its own washbasin
• South Terrace (11.1 m²): All-day sunshine above the rooftops of Charlottenburg
Features:
• Continuous oak parquet and underfloor heating throughout
• Energy Class A (55 kWh/m²a), district heating
• Ethernet cabling in every room
• Elevator, barrier-free, basement storage
• New building (2016) maintained in like-new condition
Location — Charlottenburg, 10629:
Just a stone’s throw from Kantstraße and Savignyplatz, and only a five-minute walk from the Ku'damm. U7 at Wilmersdorfer Straße is 2 minutes on foot, and the Charlottenburg S-Bahn station is 3 minutes away.
Commission-free — Direct sale without an agent.
For more information: gervinusstrasse.rubyre.de
Berlin-Charlottenburg, also known as City West, has been one of the most sought-after residential areas in Berlin for over a century. It offers a blend of culture, gastronomy, architecture, and a calm that is hard to find elsewhere.
Gervinusstraße is located near Savignyplatz and Kantstraße, just a five-minute walk from Kurfürstendamm—in the heart of the 10629 district.
Transport Connections:
• U-Bahn Wilmersdorfer Straße (U7): 2 minutes on foot
• S-Bahn Charlottenburg: 3 minutes
• S-Bahn Westkreuz (Ringbahn): 5 minutes
• Messe Berlin: 8 minutes
• Main Train Station: 15 minutes
• BER Airport: 40 minutes
In the Neighborhood: Deutsche Oper, Charlottenburg Palace, KaDeWe, Lietzensee-Park, Technical University of Berlin, Sophie-Charlotte-Gymnasium.
Complete designer furnishings (2016), professionally designed and maintained in excellent condition. FENIX designer kitchen in matte champagne with integrated Siemens and Bosch appliances. Continuous oak parquet and underfloor heating throughout. Main bathroom with freestanding bathtub, walk-in shower, and natural stone. Custom-built wardrobes in the bedroom. Utility room with washing machine and dryer. Ethernet (LAN) wiring in every room. South Terrace 11.1 m² + Balcony 2.9 m². Elevator, basement, barrier-free.
Property characteristics
| Age | Over 5050 years |
|---|---|
| Condition | Very good |
| Floor | 3. floor out of 5 |
| EPC | A - Extremely economical |
| Price per unit | €9,137.93 / m2 |
| Available from | 09/04/2026 |
|---|---|
| Layout | 3+1 |
| Listing ID | 1009529 |
| Usable area | 87 m² |
What does this listing have to offer?
| Balcony | |
| Basement | |
| MHD 2 minutes on foot |
| Wheelchair accessible | |
| Lift | |
| Terrace |
What you will find nearby
Still looking for the right one?
Set up a watchdog. You will receive a summary of your customized offers 1 time a day by email. With the Premium profile, you have 5 watchdogs at your fingertips and when something comes up, they notify you immediately.




























