
Flat for sale 3+kk • 69 m² without real estateHrudičkova, Prague - Chodov
Nabízím kompletně zrekonstruovaný krásný byt 3+kk revitalizovaného domu s krásným výhledem, s kuchyní na míru a krásnou prostornou koupelnou, v blízkosti metra Roztyly u Kunratického lesa.
Nejedná se o vizualizaci, byt je po náročné a vydařené rekonstrukci.
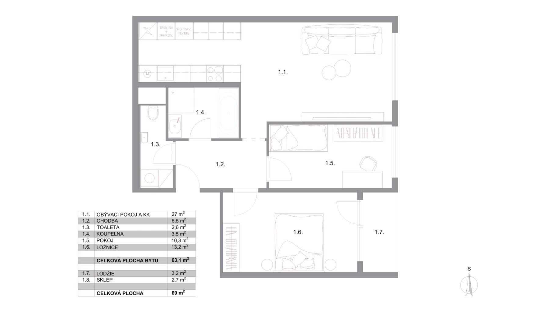
Byt je dispozičně velmi dobře řešený s kuchyní a obývacím pokojem, kde je 27 m2 prostoru. Dále se dvěma prostornými ložnicemi, nádhernou koupelnou s podlahovým topením a samostatnou toaletou. Byt má lodžii a sklep. Jedná se o velmi klidnou lokalitu v blízkosti metra C Roztyly. Parkování je před domem, klidová zóna s menším hřištěm pro děti se nachází na druhé straně domu.
Dispozice bytu 3+kk:
- 2x plnohodnotná ložnice (10 m2 + 13m2)
- Obývací pokoj s prostornou kuchyní na míru (27 m2)
- Vstupní chodba (6,5 m2)
- Koupelna s vanou a sprchovým koutem(3,5m2)
- WC (2,6 m2)
- Lodžie (3,2 m2)
- Sklep (2,7 m2)
V kompletní rekonstrukci ve standardu novostavby je zahrnuto:
- nová kuchyňská linka vyrobena na míru se spotřebiči (značková elektrická trouba, myčka, indukční deska, digestoř, osvětlení, dřez)
- celková výměna elektroinstalačních rozvodů v mědi
- nové osvětlení bytu
- kompletní úprava povrchů stěn
- nové zárubně a dveře
- nivelace podlah a nová vinylová podlaha
- nová sanita (vana, sprchový kout, umyvadlo, skříňka, toaleta)
- podlahové topení v koupelně s digitálním termostatem
- sádrové omítky a SDK podhled v celém bytě
- příprava na pračku v koupelně
Co charakterizuje bytový dům:
- Dům je velmi dobře spravován SVJ s velkým zaměřením na čisté, klidné a bezpečné bydlení.
- Dům je po celkové revitalizaci. Je zateplený a samozřejmostí jsou plastová okna
- Zrekonstruované jsou i společné prostory
Velkou výhodou je kompletní občanská vybavenost, blízkosti Westfield Chodov, metro C Roztyly, dále blízkost rozsáhlého Kunratického lesa a další zeleně a veškeré občanské vybavenosti. Zároveň jste autem za pár minut na městském okruhu nebo v centru města.
Budu se těšit na osobní schůzku při prohlídce. Pro sjednání termínu prohlídky, prosím, vyplňte formulář níže.
Prosím o kontaktování jenom přímé zájemce, a ne realitní kanceláře. Děkuji za respektování.
Property characteristics
| Available from | 01/04/2026 |
|---|---|
| Building construction | Precast concrete |
| Fully furnished | Partly |
| Listing ID | 1007935 |
| EPC | B - Very economical |
| Usable area | 69 m² |
| Condition | New-build |
|---|---|
| Layout | 3+kk |
| Floor | 3. floor out of 7 |
| Ownership | Personal |
| Location | Quiet area |
| Price per unit | CZK 144,783 / m2 |
Are you choosing a apartment?
Make sure you have all the important information!
What does this listing have to offer?
| Basement: 2 m² | |
| Loggia balcony: 3 m² |
| Lift | |
| Parking |
What you will find nearby
Still looking for the right one?
Set up a watchdog. You will receive a summary of your customized offers 1 time a day by email. With the Premium profile, you have 5 watchdogs at your fingertips and when something comes up, they notify you immediately.






















