
House for sale 5+1 • 150 m² without real estateGilching Gilching Bayern 82205
Gilching Gilching Bayern 82205Public transport 4 minutes of walking • Parking • GarageThe indicated price of €1 is merely a placeholder, as the portal requires a numerical field. The actual sale is conducted by bidding/price on request as part of our structured selection process. Details on the value and the key economic data can be found in the complete exposé.
This semi-detached house, built in 1983 with solid construction, was designed energetically far beyond the standards of its time and already today features a highly efficient PV system with an annual yield of approximately €2,760, as well as approved KfW funding of €16,500 for a future heat pump replacement.
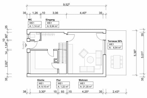
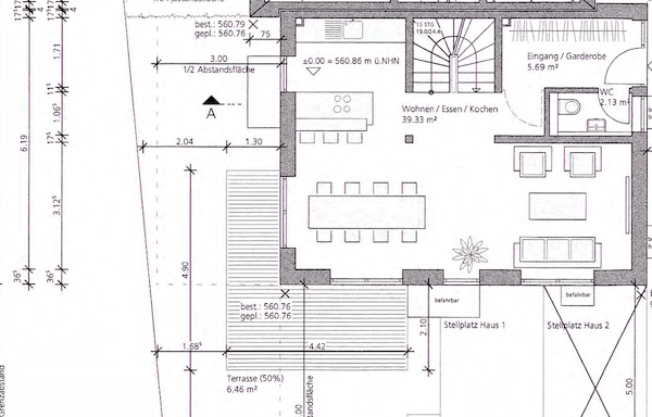
In one of Gilching’s most desirable and peaceful locations, we offer you a home that combines quality of life and economic sensibility on approximately 198 m² of living and usable space, situated on a 382 m² plot.
Highlights at a glance:
• Private resort: approximately 19 m² outdoor pool in a secluded south-facing garden.
• Generosity: about 150 m² of pure living space, including a bright top-floor studio with a glazed gable.
• Features: genuine oak country-style hardwood floors, an open fireplace, and a fully basements area with a heated hobby room.
• Future-proof: Prepared for complete energy autonomy (with possibilities for a 10 kWp PV upgrade plus a 15 kWh storage system, HEMS, and a heat pump).
How to receive the complete exposé:
To protect privacy, we are initially only publishing impressions and floor plans here. We will gladly send you the detailed exposé with all the economic data and the energy performance certificate personally. Please send us a message with your complete address and contact details via this platform.
Outlook on the sales process:
Qualified interested parties will be offered the opportunity for a viewing in a subsequent step. For this, we kindly ask you to provide an indicative offer in advance, along with a Schufa report and a buyer’s self-disclosure, which we will confirm with an appointment.
Spontaneous viewings without an invitation are not possible.
Property characteristics
| Age | Over 5050 years |
|---|---|
| Layout | 5+1 |
| EPC | D - Less economical |
| Land space | 382 m² |
| Price per unit | €0 / m2 |
| Condition | Before reconstruction |
|---|---|
| Listing ID | 1005405 |
| Usable area | 150 m² |
| Total floors | 3 |
What does this listing have to offer?
| Balcony | |
| Garage | |
| MHD 4 minutes on foot |
| Basement | |
| Parking | |
| Terrace |
What you will find nearby
Still looking for the right one?
Set up a watchdog. You will receive a summary of your customized offers 1 time a day by email. With the Premium profile, you have 5 watchdogs at your fingertips and when something comes up, they notify you immediately.

























