
Flat to rent 2 bedroom • 55 m² without real estateulice Čoupkových, Brno - Komín, Jihomoravský Region
Interested?
Communicate all private owners and save CZK 24,500 on commissions.
Pronájem krásného bytu 2+1, 55 m², Brno – Komín, balkon
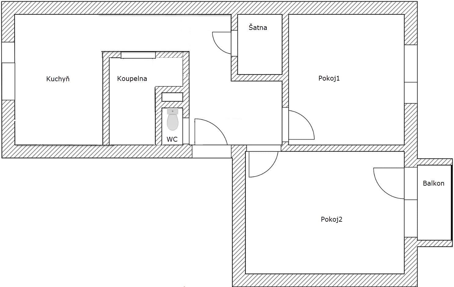
Nabízím k pronájmu světlý a prostorný byt o dispozici 2+1 (55 m²), situovaný ve 2. patře (3. nadzemní podlaží) v žádané lokalitě Brno – Komín. Výhodou jsou neprůchozí pokoje, které zajišťují dostatek soukromí.
Byt prošel kompletní rekonstrukcí – vše je zcela nové. K dispozici je moderní koupelna se sprchovým koutem, samostatné WC a kuchyňská linka vyrobená na míru včetně spotřebičů (elektrická trouba, myčka, sklokeramická varná deska). Samozřejmostí jsou nové interiérové i vstupní protipožární dveře. Interiér příjemně doplňuje kvalitní vinylová podlaha.
Z obývacího pokoje je vstup na balkon orientovaný na jih s výhledem do zeleně, ideální pro relaxaci. K bytu náleží také prostorná sklepní kóje vhodná pro uskladnění sezónních věcí.
Byt se nachází v panelovém domě bez výtahu. Pro stěhování je možné po domluvě využít plošinu.
Lokalita nabízí klidné bydlení s výbornou dostupností a kompletní občanskou vybaveností v okolí.
Byt je vhodný pro jednotlivce nebo pár. Preferujeme nekuřáky bez domácích mazlíčků. Pronajímá se nezařízený, případně je možné po dohodě byt dovybavit.
K dispozici ihned, preferujeme rychlou domluvu a počátek nájmu od 1.4.2026. Nájemní smlouva připravovaná právní kanceláří.
Nájemné 24.500,- + zálohy dle domluvy (vyúčtovávány 1x ročně vůči skutečnosti). Kauce ve výši 35.000,- Kč.
Property characteristics
| Available from | 19/03/2026 |
|---|---|
| Building construction | Precast concrete |
| Fully furnished | Unfurnished |
| Listing ID | 1002848 |
| Usable area | 55 m² |
| Condition | Very good |
|---|---|
| Layout | 2 bedroom |
| Floor | 3. floor out of 4 |
| Location | Quiet area |
| Price per unit | CZK 445 / m2 |
What does this listing have to offer?
| Loggia balcony: 3.12 m² |
What you will find nearby
Interested?
Communicate all private owners and save CZK 24,500 on commissions.
Still looking for the right one?
Set up a watchdog. You will receive a summary of your customized offers 1 time a day by email. With the Premium profile, you have 5 watchdogs at your fingertips and when something comes up, they notify you immediately.













