
Flat for sale 4+1 • 82 m² without real estateEggstätt Eggstätt Bayern 83125
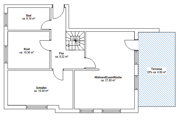
Eggstätt Eggstätt Bayern 83125Public transport 2 minutes of walking • ParkingFor sale is a well-maintained, high-quality, fully equipped 4-room ground floor apartment in Eggstätt. One of the rooms is a bright hobby room located in the basement, accessible from the ground floor via a staircase within the apartment. The apartment impresses with its open and well-thought-out layout, bright rooms, and high-quality equipment – ideal for couples, small families, or discerning owner-occupiers. The apartment includes a terrace of approximately 18 m² and a garden storage area of about 30 m².
The living area measures approximately 82 m², with the basement hobby room counted at 50% and the terrace at 25% (calculation of living area according to the Living Space Ordinance). However, the total usable area is around 109 m².
The building features an oil central heating system.
INVESTMENT OPPORTUNITY
The apartment has been rented since June 2024. Base rent: €1,190 per month plus an advance payment of €300 for additional costs.
Annual base rent: €14,280. Attractive investment in a sought-after residential area.
The apartment is located in the centrally situated, quiet residential area of Eggstätt, on the edge of the Eggstätt-Hemhofer lake district nature reserve. A supermarket, pharmacy, doctors, kindergartens, primary school, and restaurants are within walking distance. Exceptional leisure and recreational value thanks to nearby lakes, nature, and active community life.
Layout and features:
- Spacious living/dining area with direct access to the terrace
- Open kitchen area with a high-quality Nolte kitchen (2018), Bora system, and Miele appliances – included in the purchase price
- Two well-proportioned bedrooms plus an additional room in the basement (with light well and radiator)
- Modernized bathroom (partial renovation in 2024)
- Underfloor heating on the ground floor
- Flooring: tiles and laminate
- Basement (direct access from the apartment via a staircase and external access over a communal stairwell)
- Carport and parking space
Additional features:
- Washing machine connection in the bathroom
- Private basement storage area (approx. 10 m²)
- Communal bicycle storage room
- Drying room
Photos are from before the current tenants moved in.
To protect privacy, no current interior photos have been published.
Property characteristics
| Age | Over 5050 years |
|---|---|
| Layout | 4+1 |
| Usable area | 82 m² |
| Condition | Good |
|---|---|
| Listing ID | 999126 |
| Price per unit | €4,854 / m2 |
What does this listing have to offer?
| Basement | |
| MHD 2 minutes on foot |
| Parking | |
| Terrace |
What you will find nearby
Still looking for the right one?
Set up a watchdog. You will receive a summary of your customized offers 1 time a day by email. With the Premium profile, you have 5 watchdogs at your fingertips and when something comes up, they notify you immediately.










