
Flat for sale 4+1 • 106 m² without real estateBernau am Chiemsee Bernau a. Chiemsee Bayern 83233
Bernau am Chiemsee Bernau a. Chiemsee Bayern 83233Public transport 2 minutes of walkingThis spacious 4-room apartment in a highly attractive residential area in Bernau am Chiemsee is ideal for investors who are also considering owner occupancy in the medium term (e.g., for family use or as a retirement home).
The apartment generates a market-typical rental yield and is suitable as a stable investment with the additional prospect of owner use. It is a rare opportunity for buyers who value flexibility between renting and owner occupancy.
The location in Bernau am Chiemsee is hard to beat:
The multi-family house is situated in a quiet, established residential part of Bernau am Chiemsee. The surroundings are predominantly characterized by multi-family and single-family homes, giving the area a pleasant, family-friendly living atmosphere.
Bernau (Chiemsee) train station is within walking distance and offers excellent connections towards Munich as well as towards Salzburg. The center of Bernau, with its shopping opportunities, doctors, restaurants, and other facilities for daily needs, is also easily accessible.
The close proximity to the Chiemsee, nearby recreation areas, and the Alpine region underlines the high quality of living and leisure offered by this location. At the same time, the excellent transport connections (A8 motorway, train) make for an attractive combination of peaceful living and commuter convenience.
Key Facts:
• Modern, very well-maintained multi-family house with only 9 units
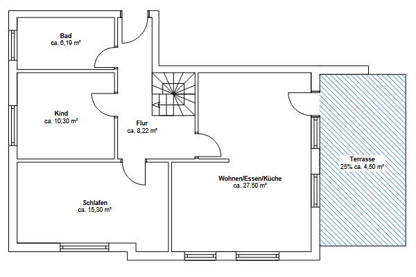
• Living area: approx. 106 m² (97 m² apartment + approx. 18 m² balcony at 50% ownership)
• Rooms: 4
• Floor: 1st upper floor
• Balcony facing south towards Kampenwand
• Bathroom with window, featuring a bathtub and shower cabin + separate guest WC
• Private kitchen with window and separate dining nook
• Underfloor heating
• Roller shutters on windows
• Private basement storage compartment
• Underground parking space available (not duplex)
• Year of construction: existing property (approx. 1990)
• Condition: Very well-maintained existing property, modernizable in the future
• New gas central heating (2024)
• Electrical system: 3-core wiring
• Wooden windows: double-glazed (existing, in good condition, exchangeable in the future)
• Energy efficiency class C
• Currently rented
• Owner-occupancy termination is legally possible – the property has already been divided according to the condominium act, with no lock-in period
• Kitchen owned by the tenant
Purchase price:
Apartment including basement storage compartment approx. €413,500 plus €25,000 for the underground parking space
Commission: none
Contact:
If you are interested, I would be happy to hear from you – I can gladly send you further information or arrange a viewing appointment.
Property characteristics
| Age | Over 5050 years |
|---|---|
| Layout | 4+1 |
| Listing ID | 995692 |
| Usable area | 106 m² |
| Condition | Good |
|---|---|
| Floor | 1. floor out of 3 |
| EPC | D - Less economical |
| Price per unit | €3,901 / m2 |
What does this listing have to offer?
| Balcony | |
| MHD 2 minutes on foot |
| Basement |
What you will find nearby
Still looking for the right one?
Set up a watchdog. You will receive a summary of your customized offers 1 time a day by email. With the Premium profile, you have 5 watchdogs at your fingertips and when something comes up, they notify you immediately.






