
House for sale • 1208 m² without real estateDotzheimer Straße 61 Wiesbaden Wiesbaden Hessen 65197
Dotzheimer Straße 61 Wiesbaden Wiesbaden Hessen 65197Public transport less than a minute of walking • Lift • ParkingWIESBADEN – DOTZHEIME STRASSE 61
The residential and commercial building was constructed in 1964. The property offers approximately 1,208 sqm of leasable space as well as 8 outdoor parking spaces.
The property is fully rented.
However, the rents are well below the market level, so that with little effort higher rents will be justified.
There are two retail spaces on the ground floor: a kiosk/DHL and a fast food snack bar/döner shop. Both benefit from very high foot traffic due to the bus stop located directly in front of the property.
On floors 1 through 4, there are eight commercial units (medical practices, a tax consultancy office, a law firm, etc.). These tenants have been in the building for a long time and receive excellent visitation from their customers, clients, and patients.
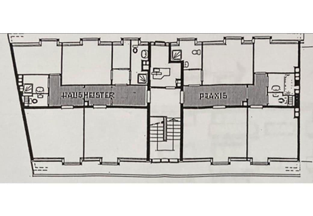
On the 5th floor there are 4 apartments. Two of these are used by the building manager (for living and office purposes).
In the basement, there are approximately 88 sqm of storage space for the kiosk as well as additional cellar rooms for the other tenants.
In the rear courtyard there are 8 parking spaces, which are also rented out. For the location of the property in this part of the Rheingauviertel, these 8 parking spaces are an important leasing criterion.
The leases on the ground floor (kiosk and snack bar) each have a 5-year extension option, with the kiosk lease running until May 2028 and the snack bar lease until July 2027.
All the other leases are open-ended and can be terminated in the usual manner.
Converting the office and practice areas into residential space is technically possible with manageable effort.
The property is located in the Rheingauviertel district, which is very popular for urban living.
This district borders Wiesbaden-Mitte directly to the east and is therefore very centrally located.
This area was developed between 1898 and about 1908; as a result, this Gründerzeit district is characterized by attractive turn-of-the-century buildings – on Dotzheimer Straße alone there are 13 listed cultural monuments.
The building is located right on Dotzheimer Straße and has its own car-accessible entrance to the inner courtyard, where there are eight parking spaces.
In the vicinity of the property, you will find the following amenities:
- Medical practices, a pharmacy, care services, lawyers
- Grocery stores, restaurants, a bakery, a snack bar, a drugstore, clothing stores
- Hairdressers, nail salons, beauty studios, taxi services
- Protestant and Catholic churches
- Schools, a high school
... and much more.
In particular, directly next door on the left is a very large dm drugstore, which also contributes to the excellent foot traffic.
In front of the building is a bus stop "Dreiweidenstraße" on the building’s side, and just a few meters away on the opposite side of the street is the "Eltviller Straße" stop. Bus lines 4, 17, 18, 23, 24, 27, and 45 stop here.
All commercial and residential units are in excellent condition.
The tenants maintain their rented spaces.
The common areas are also in immaculate condition and are regularly cleaned.
Over the past 10 years, the following renovation measures have been undertaken:
- All windows have been replaced.
- The elevator car was replaced in 2014.
- All electrical wiring (with the exception of one commercial unit) has been replaced.
- A new central gas heating system has been installed.
- The front exterior facade has been insulated and repainted (the rear section has not).
The elevator runs from the basement to the 4th floor.
Since the apartments are on the 5th floor, they are not barrier-free accessible.
D.R.E.A.M.
Deutsche Real Estate Asset Management GmbH
Siesmayerstraße 23
60323 Frankfurt am Main
Managing Director: Dipl.-Wi.-Ing. Franz Lucien Mörsdorf
- Registered Office: Frankfurt am Main
- Court of Registration: Frankfurt am Main HRB 77596
Property characteristics
| Age | Over 5050 years |
|---|---|
| Listing ID | 998803 |
| Land space | 467 m² |
| Price per unit | €3,458 / m2 |
| Condition | Good |
|---|---|
| Usable area | 1,208 m² |
| Total floors | 7 |
What does this listing have to offer?
| Basement | |
| Parking |
| Lift | |
| MHD 0 minutes on foot |
What you will find nearby
Still looking for the right one?
Set up a watchdog. You will receive a summary of your customized offers 1 time a day by email. With the Premium profile, you have 5 watchdogs at your fingertips and when something comes up, they notify you immediately.






























