
Flat for sale 2 bedroom • 57 m² without real estateMydlářka, Prague - Dejvice
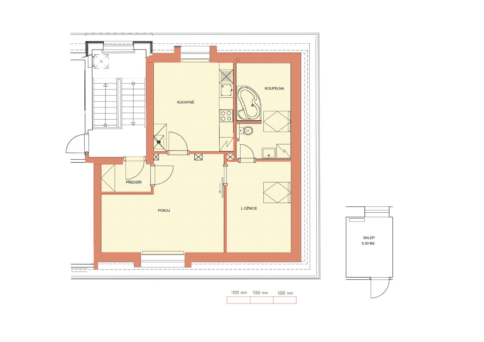
Mydlářka, Prague - DejviceCellar 5.3 m²PRODEJ: Světlý byt 2+1 , podlahová plocha (58,6m²) v srdci Dejvic – ulice Mydlářka.
Hledáte bydlení na jedné z nejprestižnějších adres v Praze? Nabízíme vám byt s neopakovatelnou atmosférou v klidné části Dejvic, jen pár kroků od metra, s výhledem na Pražský hrad.
Základní informace:
• Dispozice: 2+1 (samostatná kuchyně, dva pokoje)+ sklep 5,3m2
• Podlahová plocha: 58,6 m²
• Lokalita: Praha 6 – Dejvice, ulice Mydlářka, klidná ulice bez provozu,
• Stav: Dobrý, udržovaný (ideální k okamžitému nastěhování nebo modernizaci dle vlastních představ)
• Typ budovy: Kvalitní cihlový dům, půdní vestavba z roku 2008, vytápění vlastním plynovým kotlem,nízká spotřeba
energie.
Popis bytu:
Byt se nachází v 4.patře udržovaného cihlového domu. Díky lokalitě a orientaci je prostor velmi světlý a tichý.
• Doprava: Metro A (Dejvická) 5 minut chůze, zástavka tramvaje 150m.
• Příroda: Pár minut od parku Stromovka nebo do Šárky.
• Služby: Vyhlášené dejvické kavárny, restaurace, farmářské trhy na "Kulaťáku" a kompletní síť škol a úřadů.
Property characteristics
| Age | 10 to 30 years |
|---|---|
| Condition | Very good |
| Layout | 2 bedroom |
| Floor | 5. floor out of 5 |
| Heating | Gas boiler |
| Ownership | Personal |
| Reconstruction | Complete |
| Usable area | 57 m² |
| Available from | 07/03/2026 |
|---|---|
| Building construction | Brick |
| Fully furnished | Unfurnished |
| Design | Standard |
| Listing ID | 998663 |
| EPC | G - Extremely uneconomical |
| Location | Quiet area |
| Price per unit | CZK 166,666.67 / m2 |
Are you choosing a apartment?
Make sure you have all the important information!
What does this listing have to offer?
| Basement: 5.3 m² |
What you will find nearby
Still looking for the right one?
Set up a watchdog. You will receive a summary of your customized offers 1 time a day by email. With the Premium profile, you have 5 watchdogs at your fingertips and when something comes up, they notify you immediately.
















