
House for sale 6+1 • 150 m² without real estateTulpenstraße 5b, , Baden-Württemberg
Below is the English translation of the text:
For sale is a spacious semi-detached house in Linkenheim-Hochstetten near Karlsruhe. The property was built around 1978 using solid construction methods and offers a generous layout with approximately 150 m² of living space and about 325 m² of gross floor area. The land extends over roughly 343 m² and features a garden, a terrace, and paved outdoor areas.
The property includes a car garage with an electric door, a separate storage garage, as well as an additional parking space for a car.
The building spans several levels and provides a functional layout with versatile possibilities for use.
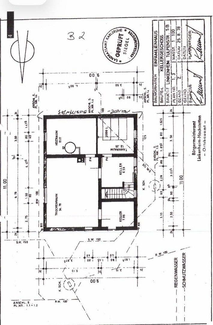
In the basement there is a boiler room, storage areas, a partially finished cellar room, and a shower with WC. Additionally, there is a separately accessible commercial space with its own entrance, which, for example, can be used as an office, practice, studio, or for self-employment.
The ground floor comprises a spacious living room with a fireplace, a dining room, a kitchen, a study with separate access, a guest WC, and direct access to the terrace and garden.
On the upper floor, there is a bedroom with a dressing area, a bathroom with a bathtub and shower, two additional rooms, and a separate WC. An unfinished attic provides extra storage space.
In 2015, various modernization measures were carried out in the interior, including work on the walls, ceilings, and floors. The amenities include an oil central heating system with underfloor heating, hot water produced via a heat pump, air conditioners in the living room and bedroom, predominantly tiled, parquet, and laminate floors, wood and plastic windows with shutters, as well as a satellite system. All living areas benefit from good natural light, and the kitchen and bathrooms also have daylight.
The property is in a condition typical of its construction period, partly modernized, with some maintenance needed, such as on the roof, windows, painting, and minor repairs. However, the solid construction and generous spatial layout offer good potential for individual design and long-term value increase.
The location in Linkenheim-Hochstetten in the Karlsruhe district is characterized by a quiet residential street lined mostly with single- and two-family houses. Shopping opportunities, schools, kindergartens, doctors, and leisure facilities are available in the village. A suburban train stop is within walking distance, providing good connections to Karlsruhe. The site is flat, green, and offers pleasant garden and terrace areas.
The property is suitable for both owner-occupiers and investors or capital providers looking to acquire a house with potential in a desirable location.
The property is situated at Tulpenstraße 5b, 76351 Linkenheim-Hochstetten, on a quiet residential street in the Linkenheim district in the Karlsruhe county. The immediate surroundings are predominantly comprised of well-maintained single- and two-family homes, offering a family-friendly, established residential structure with a pleasant neighborhood.
Linkenheim-Hochstetten is located about 10–12 km north of Karlsruhe’s city center and is part of the economically strong Karlsruhe region. The community offers an excellent combination of nature-oriented living with convenient urban access.
In the immediate vicinity of the property there are numerous amenities for daily needs. Supermarkets, bakeries, doctors, pharmacies, schools, kindergartens, as well as various leisure and sports facilities are available in the village and reachable within a few minutes. This makes the location particularly attractive for families and commuters.
The transportation connections are very good: The Stadtbahn lines S1 and S11 provide a direct connection to Karlsruhe as well as to the surrounding communities in the region. Stops are available in the area, allowing for quick access to Karlsruhe’s city center. The city and the regional federal roads and motorways are also easily accessible by car.
A special advantage of the location is the proximity to nature. In the immediate vicinity are extensive forest and natural landscapes, such as the Hardtwald – a vast forest area north of Karlsruhe that is considered an important recreational area offering numerous opportunities for walking, cycling, and leisure. The Hardtwald between Graben and Karlsruhe is among the largest continuous forest areas in the region and is part of a protected natural area.
Also nearby is the Rheinaue north of Karlsruhe, with its old river arms, floodplain landscapes, and cycle paths, just a few minutes away and offering various possibilities for leisure, nature experience, and recreation.
Overall, the location of the property on Tulpenstraße combines a peaceful residential setting with good infrastructure, quick access to Karlsruhe, and high quality of life due to proximity to nature. This combination makes the site particularly attractive for both owner-occupiers and investors.
If you wish, I can also prepare a more professional real estate agent version (an exposé text) that is perfectly suited for platforms like Immobilienscout, Immonet, or for an appraisal.
The property presents itself with a solid, period-typical finish and numerous details that notably enhance the living comfort and the range of uses. Particularly noteworthy is the covered terrace with a pergola or terrace roof, which creates a protected outdoor area and provides direct access from the living area to the garden. The garden itself is well maintained, partly fenced, and features decorative lighting and design elements that create pleasant privacy and an atmospheric ambiance outdoors.
In the living area, a massive fireplace with a brick cladding forms a central focal point, which, in addition to the existing heating system, provides extra living quality and a cozy room climate. The dining area is spacious and offers plenty of daylight through large windows. In some areas, suspended ceilings with integrated lighting as well as decorative wall treatments are present, giving the interior a distinctive character.
Particularly practical is the separately accessible unit in the basement, which has its own outdoor entrance. This space can be used flexibly, for instance as a guest suite, office, practice, studio, or for self-employment. This creates additional possibilities for use, such as for a home office or partial commercial use.
Additionally, the property includes two garages – a classic car garage with an electric door and a further garage or storage garage – which together with the paved outdoor areas provide sufficient parking and storage space for vehicles, bicycles, or hobby equipment.
The land is mostly flat and fenced, resulting in a well-utilizable garden area. The combination of a covered terrace, garden areas, and paved pathways creates a pleasant outdoor structure with versatile opportunities for leisure, recreation, or for garden enthusiasts.
Overall, the property offers a solid basic equipment with several practical bonus features that are interesting for families as well as for owner-occupiers needing extra space or for those self-employed. At the same time, there is potential for further modernizations and individual design.
The property will be auctioned publicly by the Amtsgericht Karlsruhe as part of a partition and foreclosure auction.
Auction Date:
Wednesday, March 11, 2026, at 10:00 AM
Amtsgericht Karlsruhe
Schlossplatz 23
76131 Karlsruhe
Courtroom 0.15
In the land register for Linkenheim-Hochstetten, the property is registered as:
District Linkenheim, parcel 7255/3, building and open space, Tulpenstraße 5b, property size 343 m²
For participation in the auction, according to §§ 67–70 ZVG, a security deposit amounting to 10% of the market value may be required. The security must be provided immediately; cash payment is not permitted. Bid authorizations must be notarized.
Further information, including the official announcement, the complete market value appraisal, and procedural instructions, is available online at immobilienpool.
Property characteristics
| Age | Over 5050 years |
|---|---|
| Listing ID | 998410 |
| Land space | 343 m² |
| Price per unit | €3,167 / m2 |
| Layout | 6+1 |
|---|---|
| Usable area | 150 m² |
| Total floors | 2 |
What does this listing have to offer?
| Basement | |
| Parking |
| Garage | |
| MHD 1 minute on foot |
What you will find nearby
Still looking for the right one?
Set up a watchdog. You will receive a summary of your customized offers 1 time a day by email. With the Premium profile, you have 5 watchdogs at your fingertips and when something comes up, they notify you immediately.

























