
Flat for sale 3+1 • 94 m² without real estateBayreuth Bayreuth Bayern 95447
Bayreuth Bayreuth Bayern 95447Public transport 2 minutes of walkingHere is the English translation of the text:
With this exposé, we present to you a developable raw attic in an attractive location in Bayreuth. The unit is located in a very well-maintained multi-family house that is heated by an oil central heating system built in 2024.
In the years 2025/2026, the current owner carried out a comprehensive upgrade of the staircase. In the process, walls, ceilings, the staircase, and the apartment entrance doors were refurbished and repainted. Additionally, the main entrance door to the building will soon be completely renewed, further emphasizing the high-quality overall impression of the property.
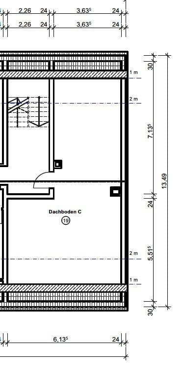
The attic impresses particularly with its generous gable height and offers excellent conditions for an individual development. In total, up to approximately 94 m² of rentable space can be realized through an expansion (including the attic area above).
Approval for the conversion from the owners' community is already in place and is bindingly regulated in the condominium declaration of the multi-family house. Any necessary building regulation approval for the conversion must be obtained independently by the buyer from the city.
In addition to the attic, one individual garage in the building's inner courtyard can be purchased if needed (at an additional cost of €12,000 per garage).
The attic also has its own basement compartment.
The property is located in a very well-maintained multi-family house in the beautiful and desirable Bayreuth.
The location combines the advantages of downtown with a high quality of living: shopping opportunities, restaurants, and leisure activities are within walking distance, ensuring a high level of living comfort.
Public transportation is easily accessible.
• Oil central heating built in 2024
• Attic ideal for development
• Staircase revitalized in 2025
• Main entrance door to be renewed in 2026
• Multi-family house built in 1969
• No heritage protection
• Centrally located (a few minutes from the old town)
• Excellent connection to public transportation
• Possibility for modern floor plan design
• Second floor
• Own basement compartment
Property characteristics
| Age | Over 5050 years |
|---|---|
| Layout | 3+1 |
| Listing ID | 998139 |
| Usable area | 94 m² |
| Available from | 14/03/2026 |
|---|---|
| Floor | 2. floor |
| EPC | E - Wasteful |
| Price per unit | €734 / m2 |
What does this listing have to offer?
| Balcony | |
| MHD 2 minutes on foot |
| Basement | |
| Terrace |
What you will find nearby
Still looking for the right one?
Set up a watchdog. You will receive a summary of your customized offers 1 time a day by email. With the Premium profile, you have 5 watchdogs at your fingertips and when something comes up, they notify you immediately.




