
House for sale 3+1 • 127 m² without real estate, Schleswig-Holstein
Walmdach Corner Bungalow
Built in solid construction with a wooden beam ceiling, fully basemented, garage, and separate entrance.
Year built: 1959
Living area of 127 m²
Plot of 928 m²
Quiet, well-kept side street characterized by residential buildings of similar style.
The bus stops and the subway stations Garstedt or Richtweg are within walking distance.
The subway runs behind the property in a trough along with a noise protection wall.
1995 – New windows and ground-floor house/terrace door
1997 – New roof tiles and insulation
1999 – Newly built terrace with pergola (partially covered)
2006 – New gas-powered condensing boiler
6 external roller shutters, the garage door, and the awning have been replaced or retrofitted with electric drives.
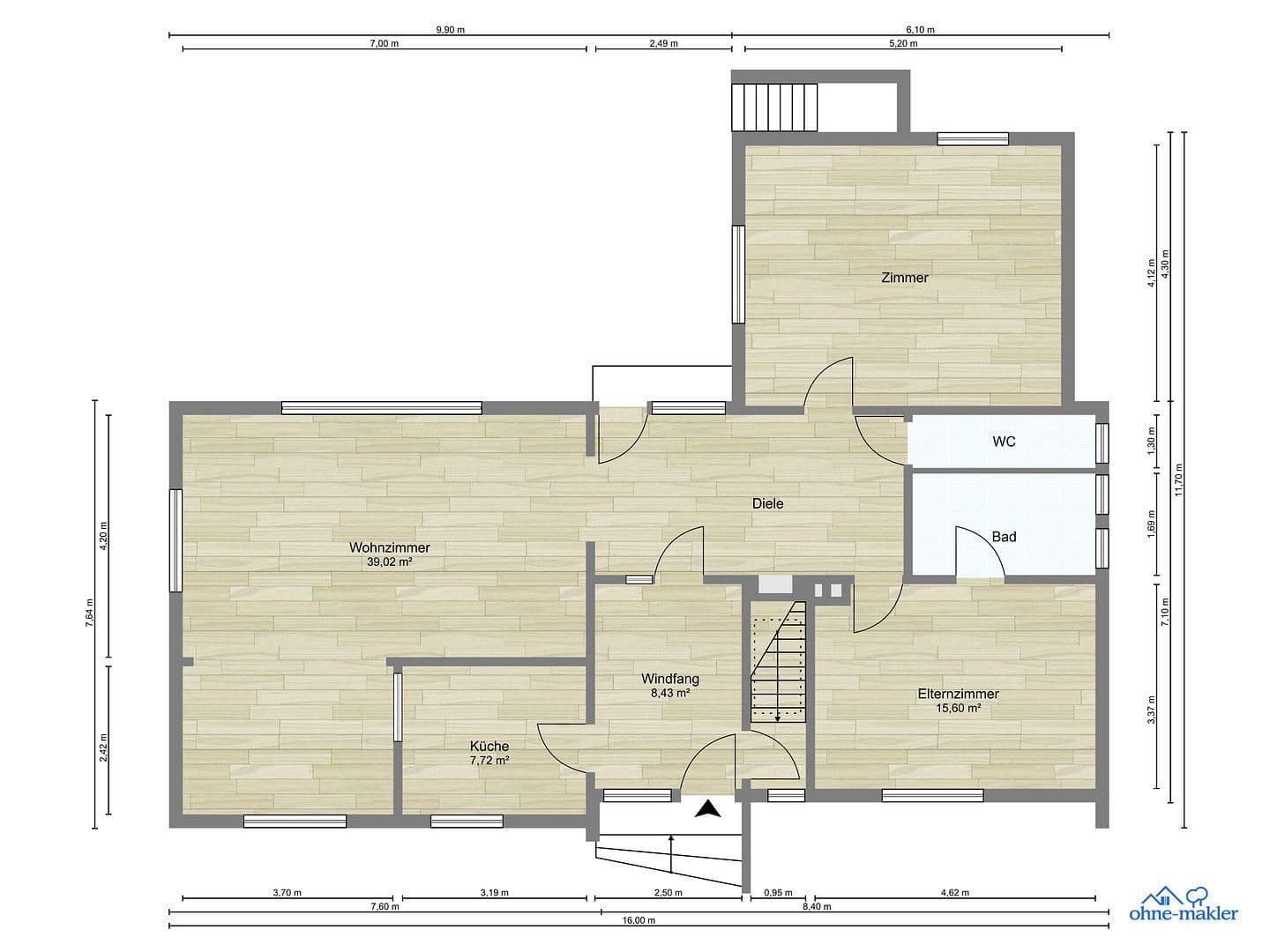
Through the front door you enter a large hallway. From here, you proceed to the kitchen with a fitted kitchen, to the basement access, and into the dining room with a large window front overlooking the spacious, well-kept garden and a sliding door that leads onto the large terrace, which is partially covered with glass.
The dining room is the central room. From here, you can access the light-filled and spacious living room with windows on three sides and a parquet floor, the bedroom with a separate bathroom, the children’s room with a parquet floor, and the second toilet with a shower.
A staircase in the hallway leads to the basement. The house is fully basemented and includes a garage that can be accessed both from the inside and outside, equipped with an electric door. In addition, the basement houses various rooms for the heating system, a utility room, a workshop, a storage room, etc. The basement also has another entrance to the garden.
A set of steps leads to the attic.
The large garden, with plenty of lawn areas, is easy to care for and offers ample space for playing, relaxing, and enjoying. In the separate garden shed, you can store your gardening tools.
A fiber optic connection provides you with high-speed internet for both downloads and uploads.
Viewing appointments are possible individually – by appointment!
Please ensure that you include your complete contact details including your address and telephone number in your inquiry.
The buyer is responsible for the property transfer tax, notary, and court fees.
We look forward to your email inquiry.
Please respect our privacy and do not enter the property without our consent.
The property is located in the Garstedt district of Norderstedt. Norderstedt is a city in Schleswig-Holstein with approximately 80,000 inhabitants and is part of the Hamburg metropolitan region. Despite being situated right next to the Hamburg city border, Norderstedt offers an idyllic haven full of atmosphere, calm, and nature. Its proximity to the Tangstedter and Ranzauer forests, as well as the Norderstedt city park with its park lake, invites you to take walks or enjoy relaxed picnics. Cyclists, equestrians, and golfers also have plenty of opportunities to pursue their leisure activities.
Thanks to the favorable location of the city, Hamburg can be reached in only a few minutes by car. In Norderstedt, you will find doctors, pharmacies, schools, kindergartens, an extensive range of leisure and shopping options, as well as several restaurants. The subway stations, bus stops, and the A7 motorway are quickly accessible.
The quiet and family-friendly setting offers a perfect combination of nature and urban living. The property is situated in a sought-after part of Norderstedt, noted for its exclusive residential houses, well-kept environment, and excellent infrastructure. With plenty of greenery and natural surroundings, this location is ideal for anyone seeking peace and nature, yet not wanting to miss the cultural and culinary amenities of a major city within reach.
Property characteristics
| Age | Over 5050 years |
|---|---|
| Layout | 3+1 |
| EPC | G - Extremely uneconomical |
| Land space | 928 m² |
| Price per unit | €4,717 / m2 |
| Condition | Good |
|---|---|
| Listing ID | 997303 |
| Usable area | 127 m² |
| Total floors | 1 |
What does this listing have to offer?
| Basement | |
| MHD 0 minutes on foot |
| Garage | |
| Terrace |
What you will find nearby
Still looking for the right one?
Set up a watchdog. You will receive a summary of your customized offers 1 time a day by email. With the Premium profile, you have 5 watchdogs at your fingertips and when something comes up, they notify you immediately.













