
House for sale 6+1 • 165 m² without real estate, Baden-Württemberg
, Baden-WürttembergPublic transport 1 minute of walking • ParkingIn the heart of Backnang. Surrounded by greenery. A detached family home with a heat pump.
For sale is a genuine family residence in a good residential area of Backnang. Built in 1930 – comprehensively renovated at its core, with remaining potential for individual alterations and living. The building’s technical systems include a geothermal heat pump and state-of-the-art external thermal insulation composite system (WDVS) (Energy Consumption A). For additional thermal comfort, a modern masonry heater can be fed with wood. The property is situated in a well-established residential neighborhood on a traffic-calmed play street.
Core renovation, roof, windows, and WDVS were updated in 2006 and 2007, the heating system in 2018, and the carport with bicycle shed and PV installation was built in 2016.
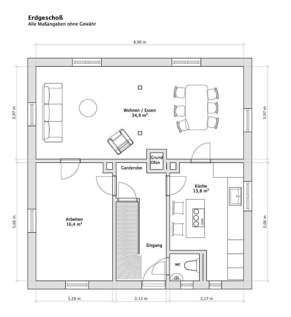
The spacious, open-concept dining and living area is the heart of the house. Floor-to-ceiling windows facing south let in plenty of daylight and offer a beautiful view of the garden. A high-quality fitted kitchen provides ideal conditions for family life and ambitious cooking, harmoniously integrating with the overall design. The private retreat spaces are located on the upper floor: two children’s rooms, a master bedroom, and a modern, bright daylight bathroom.
The designer bathroom is family-friendly and modern. Users can choose between a spacious round shower and a comfortably reclining bathtub. The room is equipped with modern exhaust technology.
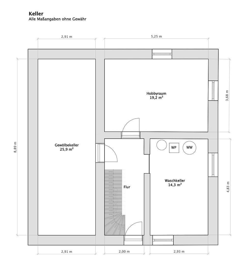
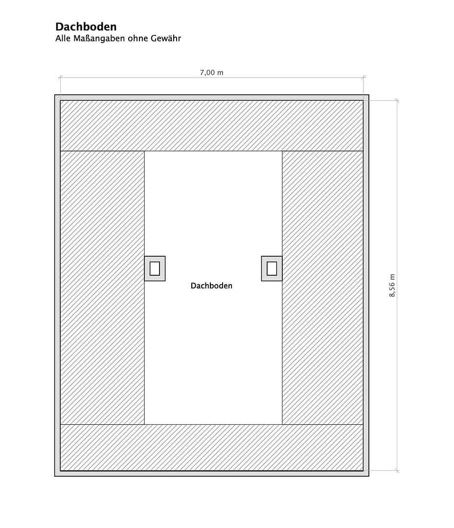
In the basement, there is a spacious hobby room, a functional utility room, and a vaulted cellar that can be used as storage or a wine cellar according to needs. The attic offers additional potential: it is sized so that converting it into further living space is well feasible (subject to official permits and technical review). This makes the house especially well-suited for buyers who appreciate both immediately usable living space and long-term development opportunities.
Heating is provided via a geothermal heat pump, which operates efficiently and environmentally friendly, reducing ongoing energy costs.
In addition, a handcrafted masonry heater offers cozy radiant heat, and the visible flames create a special residential atmosphere during the cooler months.
The inviting terrace at the front of the house is perfect for barbecuing, celebrations, and relaxation, and in the summer months it becomes the centerpiece of outdoor living. A natural stone staircase from the outdoor seating area with a sun sail leads to the wonderful natural garden.
Outside, a carport with a wall box, wood storage, and a separate bicycle shed offer comfortable and weather-protected parking for vehicles and bicycles.
On the roof of the carport, a PV balcony power plant was installed in 2020, which allows for self-generated electricity.
The property is located on the southwestern outskirts of Backnang, the fourth-largest city in the Rems-Murr district with around 38,000 inhabitants. Backnang is conveniently situated about 30 kilometers northeast of Stuttgart. At the same time, the Schwäbisch-Fränkischer Wald Nature Park is only a few kilometers away. As a regional center, Backnang offers all school types and shopping facilities.
Accessibility:
Stuttgart City Center: approx. 30-40 minutes (S-Bahn/regional train/car), Stuttgart Airport: approx. 60 minutes (S-Bahn), Heilbronn: approx. 45 minutes (car), Ludwigsburg: approx. 30 minutes (S-Bahn/car).
• Detached single-family house built in 1930, modernized
• Large, landscaped garden with multiple levels and unobstructed views
• Located on a traffic-calmed play street (cul-de-sac)
• Terrace for barbecues and celebrations
• Carport with wall box and bicycle shed
• Train station and city center reachable on foot in just a few minutes
• Energetically refurbished
• Additional heating source: handcrafted masonry heater
• Ready to move in immediately
Property characteristics
| Age | Over 5050 years |
|---|---|
| Condition | After reconstruction |
| Listing ID | 997253 |
| Usable area | 165 m² |
| Total floors | 2 |
| Available from | 09/03/2026 |
|---|---|
| Layout | 6+1 |
| EPC | A - Extremely economical |
| Land space | 675 m² |
| Price per unit | €4,661 / m2 |
What does this listing have to offer?
| Basement | |
| MHD 1 minute on foot |
| Parking | |
| Terrace |
What you will find nearby
Still looking for the right one?
Set up a watchdog. You will receive a summary of your customized offers 1 time a day by email. With the Premium profile, you have 5 watchdogs at your fingertips and when something comes up, they notify you immediately.
















































