Plot for sale • 170 m² without real estateDachau Dachau Bayern 85221
Dachau Dachau Bayern 85221Public transport 2 minutes of walkingRealize your dream of owning your own home.
Quietly located yet directly central, this 170 m² plot – currently developed with a demolition candidate house – is fully serviced.
A construction partner has already been secured for the northern half and the purchase has been notarized.
• Plot approx. 170 m² in size and located on a play street
• Demolition costs of the existing single-family home: half (approx. €15,000) to be borne by the buyer
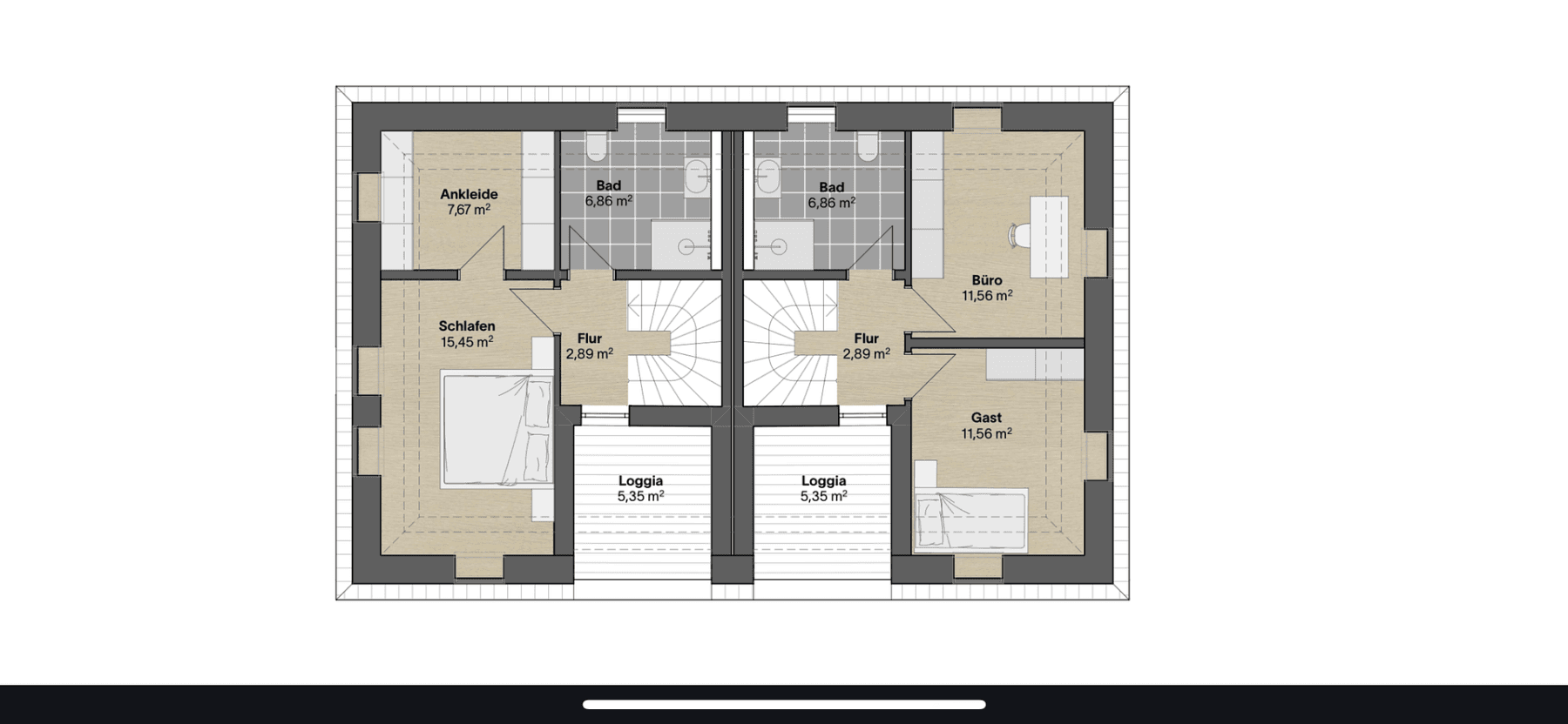
• Building dimensions according to the approved preliminary decision: 9.43 x 7.28 m
• Development: possibility for a 1-, 2-, or 3-family house
• Living space for a semi-detached house as per the approved preliminary building decision: approx. 145 m²
(basement, ground floor, upper floor, attic with hip roof)
• Free choice of developer
• Partitioning has been applied for and costs are included
• Purchase price: €340,000, commission-free
**TOP LOCATION** Central and Quiet
A dreamlike property in a central yet quiet location. The plot is currently built on with an existing structure. This fully serviced building plot is situated in a highly sought-after and upscale residential area in Dachau-Oberaugustenfeld. The existing building (a single-family house with a garage) is uninhabited and can be demolished.
Fulfill your dream of owning a home on approx. 170 m².
A binding preliminary building decision is in place; a building permit has yet to be applied for. However, our architects are happy to work with you to plan your individual living dream.
Numerous shops, doctors, kindergartens, elementary schools, bus stops, and much more are within a few minutes’ walk.
Additionally, you will quickly reach the train station, which connects you directly to Munich via S-Bahn Line 2. Federal roads 304 and 471, as well as motorways 8, 92, and 99, are comfortably accessible.
The large district town of Dachau, with its roughly 48,000 inhabitants, has a rich cultural history. At the same time, the city offers a wide range of leisure activities and ensures a high quality of life. The Dachau Castle with its unique castle park provides pedestrians with an unforgettable view of the Alpine panorama. Recreational areas are conveniently reachable, as is the state capital Munich (approximately 19 km to the center via B471 and S-Bahn S2), along with various motorways (A8, A9, A99, and A92) and the Munich Franz-Josef Strauß Airport. The vibrant city also offers a variety of shops and shopping opportunities, an extensive school system (elementary and secondary schools, a Realschule as well as two grammar schools, and a private business school), numerous kindergartens, and a large hospital. The Münchner Straße shopping mile is within walking distance, inviting you to linger and shop, with many excellent restaurants and street cafés catering to your needs. The industrial area and extensive sports facilities complete the perfect infrastructure.
Immobilien Braune GmbH
Karlsberg 8
85221 Dachau
HRB: 254257
VAT No.: DE424680028
Property characteristics
| Listing ID | 996358 |
|---|---|
| Price per unit | €2,000 / m2 |
| Land space | 170 m² |
|---|
What does this listing have to offer?
| MHD 2 minutes on foot |
What you will find nearby
Still looking for the right one?
Set up a watchdog. You will receive a summary of your customized offers 1 time a day by email. With the Premium profile, you have 5 watchdogs at your fingertips and when something comes up, they notify you immediately.






