
Flat for sale 2 bedroom • 52 m² without real estateOtto-Franke-Straße 2 Berlin Adlershof Berlin 12489
Otto-Franke-Straße 2 Berlin Adlershof Berlin 12489Public transport 2 minutes of walkingThe listed property was built in 1930 and is a protected historic monument. In 2003, a complete renovation took place, including the roof, beams, electrical system, heating, façade, etc. Supermarkets, hardware stores, bakeries, and public transportation are all nearby.
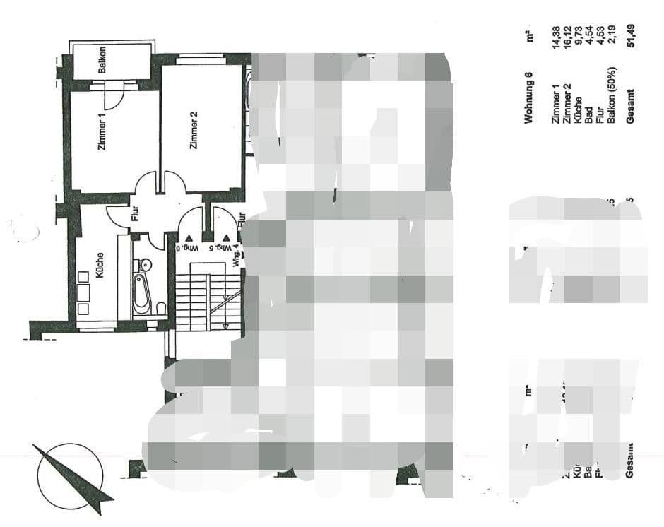
The apartment is vacant and could be occupied immediately by the new owner. The rooms are practically laid out and feature wooden flooring, as does the hallway. The bathroom, complete with a bathtub and window, is tiled. The kitchen, equipped with a fitted kitchen, has a linoleum floor. You can access the balcony from one of the rooms. Additionally, there is a spacious dry cellar room.
The maintenance reserve is very high and amounts to 160,257.83 euros for the condominium association as of December 31, 2025, which corresponds to 9,644.65 euros apportioned to this residential unit. Due to its historic status, an energy certificate is not mandatory.
Property characteristics
| Age | Over 5050 years |
|---|---|
| Condition | Good |
| Floor | 1. floor out of 2 |
| Usable area | 52 m² |
| Available from | 07/03/2026 |
|---|---|
| Layout | 2 bedroom |
| Listing ID | 995989 |
| Price per unit | €3,827 / m2 |
What does this listing have to offer?
| Balcony | |
| MHD 2 minutes on foot |
| Basement |
What you will find nearby
Still looking for the right one?
Set up a watchdog. You will receive a summary of your customized offers 1 time a day by email. With the Premium profile, you have 5 watchdogs at your fingertips and when something comes up, they notify you immediately.














