
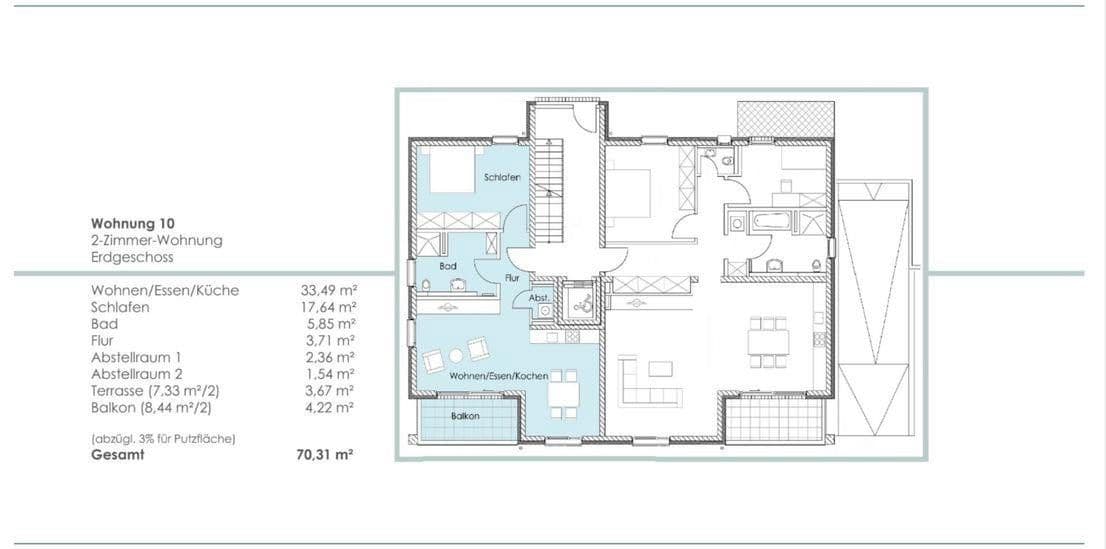
Flat for sale 2+kk • 71 m² without real estateBahnhofstraße 7, , Baden-Württemberg
Bahnhofstraße 7, , Baden-WürttembergPublic transport 3 minutes of walking • Lift • GarageModern, central 2.5-room ground-floor apartment with high-quality features.
HIGHLIGHTS:
New construction, 2016
4.2% return
No commission
Ground-floor apartment
Barrier-free
Balcony
Elevator
On-site underground garage
Underground parking space
Rented since December 2020
Haus&Grund rental contract
Currently 960 € cold rent
Step rent contract:
- Starting December 2028, cold rent 1,008 €
- Starting December 2030, cold rent 1,059 €
Property management
Caretaker service
Winter service
The apartment is located in a central inner-city area.
The city center—with Germany’s largest marketplace and a variety of cultural offerings—is only about 300 meters away. Numerous shopping opportunities can be reached on foot.
Schools and kindergartens are located in the immediate vicinity.
Doctor’s offices and pharmacies are available on site. The central residential location is ideal for renting out.
Solid wood floors
Underfloor heating
Beautiful, spacious daylight bathroom with a walk-in shower
Video intercom system
Single-key locking system
Floor-to-ceiling windows
Triple glazing
Electric blinds
Sliding balcony door
Schedule a viewing appointment. I look forward to hearing from you!
Contact:
Valentin Kosterin
0176 46058085
Property characteristics
| Age | Over 5050 years |
|---|---|
| Layout | 2+kk |
| EPC | B - Very economical |
| Price per unit | €3,507 / m2 |
| Condition | Very good |
|---|---|
| Listing ID | 995579 |
| Usable area | 71 m² |
What does this listing have to offer?
| Balcony | |
| Basement | |
| Lift |
| Wheelchair accessible | |
| Garage | |
| MHD 3 minutes on foot |
What you will find nearby
Still looking for the right one?
Set up a watchdog. You will receive a summary of your customized offers 1 time a day by email. With the Premium profile, you have 5 watchdogs at your fingertips and when something comes up, they notify you immediately.















