
Flat to rent • 62 m² without real estateMainaustraße 38 München Aubing Bayern 81243
Mainaustraße 38 München Aubing Bayern 81243Public transport 3 minutes of walking • Equipped • GarageThis fully furnished 5-room apartment offers modern living comfort in a well-maintained and inviting setting – ideal for students, commuters, or shared flats.
Living and Sleeping Areas
Each of the five rooms is comfortably furnished with a cosy bed, a practical desk with a chair, and a spacious wardrobe. Room 3 additionally features direct access to the balcony, inviting you to relax outdoors.
Kitchen
The equipped kitchen provides everything you need for cooking: high-quality appliances, tableware, and various kitchen utensils. A modern dining table with chairs creates a cosy spot for shared meals and leisure.
Bathrooms
The apartment includes two modern bathrooms:
• Walk-in shower
• Washing machine
• Washbasin & toilet
Living Comfort
• Bright and modern finishes in every room
• Practical layout for individual living
• Balcony accessible via Room 3
• First occupancy after renovation
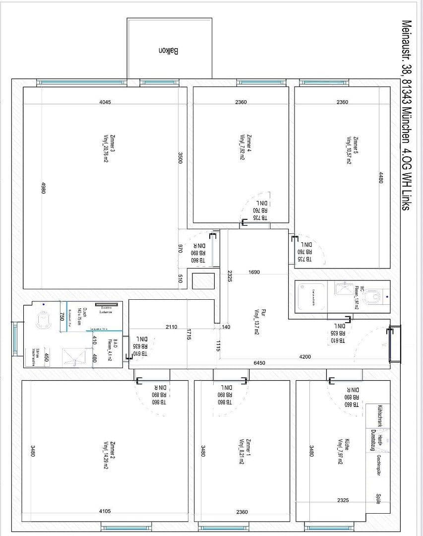
Room Layout & Rental Prices:
Room 1: 8 m² | 665 € warm rent
Room 2: 14 m² | 795 € warm rent
Room 3: 21 m² | 850 € warm rent
Room 4: 8 m² | 645 € warm rent
Room 5: 11 m² | 720 € warm rent
Surroundings and Infrastructure
The apartment is located at Mainaustraße 38 in the Munich district of Pasing-Obermenzing, in a quiet and established residential area with excellent infrastructure. Daily shopping options such as supermarkets, bakeries, drugstores, and pharmacies are within walking distance. The nearby Pasing Arcaden offer an extensive array of shops, restaurants, and services. Schools, kindergartens, and medical facilities are also in the vicinity, emphasizing the high quality of living at this location.
Public Transportation
Connectivity via public transport is excellent. Munich-Pasing station is easily accessible, offering connections to several S-Bahn lines (including S3, S4, S6, S8) as well as regional and long-distance trains. This ensures that downtown Munich is reachable in just a few minutes. Additionally, several bus and tram lines operate in the area. Drivers benefit from quick access to the A96 and an excellent connection to the Mittlerer Ring, providing convenient access to both the city centre and the surrounding areas.
Leisure and Recreation
The area offers diverse opportunities for relaxation and leisure. The nearby Pasing City Park along the Würm invites you for walks, jogging, and cycling. The recreational area around Blutenburg Castle, as well as other green spaces in Obermenzing, offers excellent quality of life. Sports facilities, fitness studios, and clubs in the area further expand leisure options.
Cultural Highlights
In addition to the varied leisure opportunities close by, downtown Munich—with its extensive cultural offerings including museums, theatres, concerts, and gastronomy—is quickly reachable thanks to the excellent transport links. At the same time, Pasing-Obermenzing, with its established structures, weekly markets, small cafés, and an urban centre around Pasing Marienplatz, provides an attractive combination of bustling city life and a peaceful living environment.
• Renovated
• Open-plan living-dining area
• Fully furnished
• Balcony
• Bright and modern finishes in every room
• Practical layout for individual living
• Balcony access via Room 3
• Public transportation in the immediate vicinity
• Pleasant parking situation in the immediate area
Property characteristics
| Fully furnished | Fully furnished |
|---|---|
| Listing ID | 994928 |
| Price per unit | €9 / m2 |
| Floor | 4. floor |
|---|---|
| Usable area | 62 m² |
What does this listing have to offer?
| Balcony | |
| Garage |
| Basement | |
| MHD 3 minutes on foot |
What you will find nearby
Still looking for the right one?
Set up a watchdog. You will receive a summary of your customized offers 1 time a day by email. With the Premium profile, you have 5 watchdogs at your fingertips and when something comes up, they notify you immediately.
























