
Flat for sale 3+1 • 80 m² without real estateNedašovská, Prague - Zličín
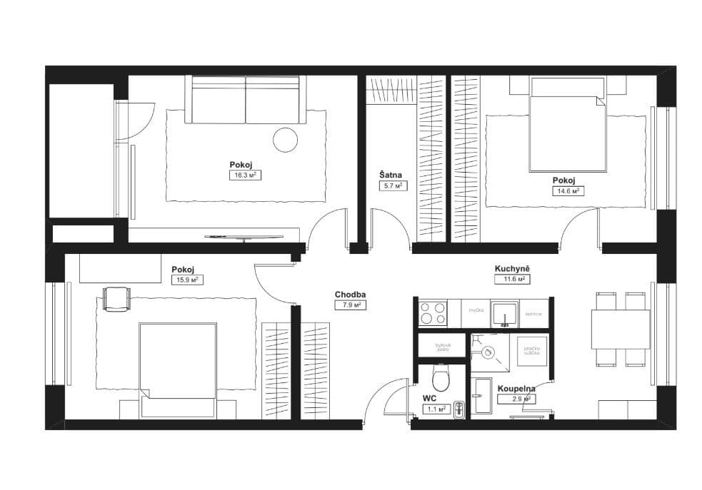
Nedašovská, Prague - ZličínPublic transport 3 minutes of walking • Partially equipped • Cellar 3 m² • Loggia 4 m²Nabízím ke koupi prostorný byt 3+1 o podlahové ploše 79,8 m², který se nachází v panelovém domě o čtyřech podlažích, a to v posledním, 4. patře.
Byt je v osobním vlastnictví a prošel kompletní a kvalitní rekonstrukcí, včetně nové elektroinstalace s revizí. Byt se prodává s novou kuchyní vybavenou kvalitními spotřebiči a indukční varnou deskou.
Součástí bytu je lodžie o ploše 4 m², která je ideální pro odpočinek a posezení. K bytu náleží také sklep. Budova má energetický štítek třídy C.
V domě není výtah, SVJ však do budoucna zvažuje jeho vybudování.
Byt se nachází v klidné a atraktivní lokalitě s krásným výhledem a kompletní občanskou vybaveností.
V okolí se nacházejí školy, školky, sportoviště i velké obchodní centrum. Stanice metra Zličín je vzdálena přibližně 10 minut chůze. Nemovitost je ideální pro rodinu s dětmi.
Pokud Vás tato nabídka zaujala, kontaktujte mě prosím prostřednictvím zprávy a domluvme si osobní prohlídku.
Nabídka je určena pouze přímým zájemcům (realitní kanceláře prosím nekontaktovat).
I offer for sale a spacious 3+1 apartment with a total area of 79.8 m², located in a five-storey panel building, on the top (5th) floor.
The apartment is privately owned and has undergone renovation, including new electrical wiring with inspection certification. The property is in very good condition and is sold unfurnished, allowing the new owner to realize their own ideas for furnishing and create a home exactly to their taste.
The apartment includes a 4 m² loggia, ideal for relaxation and seating. A basement storage unit also belongs to the apartment. The building has an energy performance rating of class C.
There is no elevator in the building (the homeowners’ association is considering its installation in the future).
The apartment is located in a quiet and attractive area with a beautiful view and full civic amenities.
In the vicinity there are schools, kindergartens, sports facilities, and a large shopping centre. The Zličín metro station is approximately a 10-minute walk away. The property is ideal for a family with children.
If you are interested in this offer, please contact me via message to arrange a personal viewing.
Property characteristics
| Available from | 02/04/2026 |
|---|---|
| Building construction | Precast concrete |
| Fully furnished | Partly |
| Design | Standard |
| Listing ID | 993698 |
| EPC | C - Economical |
| Location | Quiet area |
| Price per unit | CZK 119,875 / m2 |
| Condition | Very good |
|---|---|
| Layout | 3+1 |
| Floor | 4. floor out of 4 |
| Heating | Central |
| Ownership | Personal |
| Reconstruction | Complete |
| Usable area | 80 m² |
Are you choosing a apartment?
Make sure you have all the important information!
What does this listing have to offer?
| Basement: 3 m² | |
| MHD 3 minutes on foot |
| Loggia balcony: 4 m² |
What you will find nearby
Still looking for the right one?
Set up a watchdog. You will receive a summary of your customized offers 1 time a day by email. With the Premium profile, you have 5 watchdogs at your fingertips and when something comes up, they notify you immediately.























