
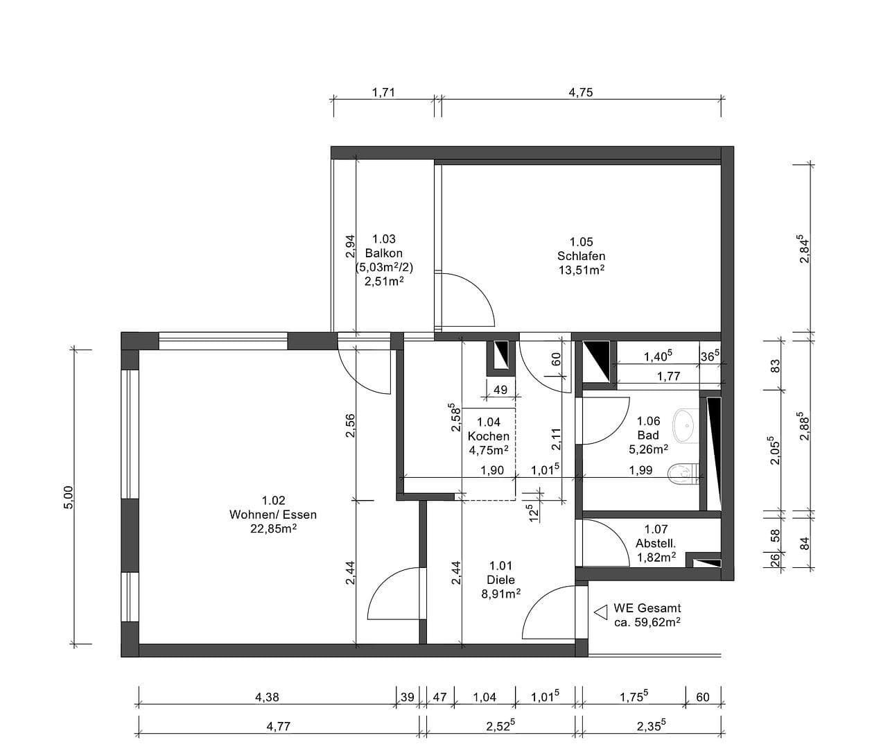
Flat for sale 2 bedroom • 60 m² without real estateBoschetsrieder Str. 63 München Obersendling Bayern 81379
Boschetsrieder Str. 63 München Obersendling Bayern 81379Lift • Parking • GarageWelcome to your stylishly modernized 2-room apartment in the sought-after Munich district of Thalkirchen!
This timeless property from the 1990s is located on the second floor of a very well-maintained residential complex and impresses with a harmonious blend of comfort, light, and urban quality of life.
From the moment you step inside, you can feel the pleasant living ambience: large floor-to-ceiling windows in the living room create an impressively bright atmosphere and give the apartment an open, friendly sense of space.
A particular highlight is the completely newly renovated bathroom, which not only delights visually with its high-quality fittings and modern equipment but also offers maximum comfort.
The surroundings also speak for themselves: The quiet yet centrally located complex scores high with excellent infrastructure. In just about a 5-minute walk, you can reach the subway, which offers quick and convenient access to downtown Munich.
An elevator takes you comfortably from the underground parking space that belongs to the apartment directly to your door. Additionally, a separate cellar compartment is available.
The apartment is currently reliably rented, generating a monthly cold rent of 1,760 €, which makes it extremely attractive for investors.
Location – Urban Connectivity, Nestled in Green
Boschetsriederstraße is one of the most sought-after residential addresses in southern Munich – uniquely combining urban dynamism with soothing tranquility.
A key quality feature of this location is the protected, green-designed courtyard, which offers residents a private retreat oasis. Here, a quality of life is created that has become rare in Munich: relaxed, quiet, yet right in the middle of the action.
Excellent Transport Connections
The subway and suburban train stations are within a few minutes’ walk, ensuring a fast, direct connection to downtown Munich as well as to the entire urban area. Car users also benefit from optimal access to the Mittlerer Ring and the surrounding motorways.
Best Infrastructure in the Immediate Vicinity
Everyday supplies are comfortable and varied:
Supermarkets, bakeries, pharmacies, and other shopping facilities are located in the immediate vicinity. This is complemented by an attractive selection of restaurants, cafés, and local markets that keep the neighborhood lively and authentic.
Quality of Life for All Generations
The combination of green retreats, an established neighborhood, and urban infrastructure makes Boschetsriederstraße a premium residential location for all age groups – whether for owner-occupiers or investors.
Generous Floor-to-Ceiling Glass Fronts in the Living Room
For an exceptionally bright living ambience with plenty of daylight and an open feel.
Sunny Balcony Accessible from the Living or Bedroom
Ideal for relaxing hours outdoors – flexibly usable and harmoniously integrated into the living concept.
Gas Central Heating with Classic Radiators
Efficient and proven heating technology with reliable warmth supply.
Laminate Flooring in High-Quality Parquet Look
Easy to maintain, durable, and visually appealing – combining aesthetics with everyday practicality.
Modern Shower Room with Toilet
Functionally and contemporarily designed – clearly structured and comfortably usable.
Open Integrated Fitted Kitchen
Seamlessly incorporated into the living area – ideal for social living and optimal use of space.
Elevator with Direct Access to the Underground Garage
Comfortable access to the apartment – barrier-free and making daily life easier.
Duplex Underground Parking Space
Protected parking within the building – a significant location and value advantage in Munich (plus 19,500 EUR).
Property characteristics
| Age | Over 5050 years |
|---|---|
| Condition | After reconstruction |
| Floor | 2. floor out of 5 |
| EPC | C - Economical |
| Price per unit | €8,983 / m2 |
| Available from | 20/02/2026 |
|---|---|
| Layout | 2 bedroom |
| Listing ID | 993059 |
| Usable area | 60 m² |
What does this listing have to offer?
| Balcony | |
| Garage | |
| Parking |
| Basement | |
| Lift |
What you will find nearby
Still looking for the right one?
Set up a watchdog. You will receive a summary of your customized offers 1 time a day by email. With the Premium profile, you have 5 watchdogs at your fingertips and when something comes up, they notify you immediately.


















