
House for sale • 231 m² without real estateNibelungenstr. 21, , Bavaria
Nibelungenstr. 21, , BavariaPublic transport 3 minutes of walking • GarageAttractive villa in a wonderful location.
The spacious house invites family living with additional rooms suitable for an office or commercial use.
The attractive glass extension can be ideally used as a winter garden with a splendid view of meadows and the nearby forest edge, as an artist’s studio, a gym, or an office.
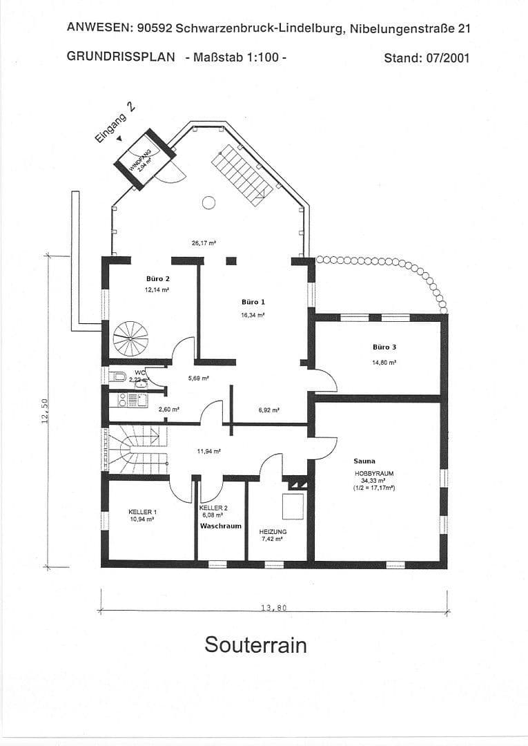
In addition to the generous living space, the basement contains several well-finished rooms that can be used as an office, exhibition or storage space, or for fitness.
The house is set in a large garden featuring a fish pond (with many goldfish) and an outdoor area overgrown with vines, inviting a romantic dinner on summer evenings.
The south-facing veranda is two-thirds covered. This guarantees beautiful morning sun, shade at midday, an orange-tinged forest edge at sunset, and protection from a rainy evening.
Being the second-to-last house on the street at the edge of meadows and forest ensures an idyllic calm that is hard to find elsewhere. The extensive, nearby forests invite long walks or fitness training.
With a car or S-Bahn, you can reach downtown Nuremberg in 30 minutes. Highways in all directions are only a few kilometers away.
The building was insulated on the outside in 2000. In 2010, a very efficient gas condensing boiler was installed, along with a 700-liter water storage and solar panels to support the heating. On sunny days, the gas consumption approaches zero.
In 2018, all windows in the living area were fitted with triple glazing.
Almost all of the lighting was switched to LED in 2022 and is an integrated part of the building. Also in 2022, most heating thermostats were replaced by electronic controllers AVM Fritz!Dect 302. This resulted in an energy reduction for heating of about 30% without any loss of comfort.
The 5 kWp photovoltaic system was installed on the roof in 2004 and is fully functional. On the best days, it produces up to 30 kWh of electricity and can significantly reduce the electricity bill. Charging the battery of an electric vehicle is also feasible.
A DSL connection with 260 Mbps (download) is available. The corresponding Fritz!Box 7590, a Cat7 network connection from Office 3 to the living room, and a potential Magenta TV connection are all part of the property.
The purchase price includes the fitted kitchen with a nearly new Miele dishwasher, and a Miele washing machine and dryer in the utility room. In the basement, an LG side-by-side refrigerator/freezer combination can also be taken over.
You, as the new owners, will love living in this house in the pleasant town of Lindelburg. We will miss it. We are selling it because the house is too big for two people in our later years. My wife and I intend to spend our later years together abroad in a few years.
Property characteristics
| Age | Over 5050 years |
|---|---|
| Listing ID | 993049 |
| Usable area | 231 m² |
| Total floors | 3 |
| Condition | After reconstruction |
|---|---|
| EPC | C - Economical |
| Land space | 1,007 m² |
| Price per unit | €3,762 / m2 |
What does this listing have to offer?
| Basement | |
| MHD 3 minutes on foot |
| Garage | |
| Terrace |
What you will find nearby
Still looking for the right one?
Set up a watchdog. You will receive a summary of your customized offers 1 time a day by email. With the Premium profile, you have 5 watchdogs at your fingertips and when something comes up, they notify you immediately.





































