
House for sale 6+kk • 180 m² without real estateFranz-Wüllner-Straße 3 München Obermenzing Bayern 80803
Franz-Wüllner-Straße 3 München Obermenzing Bayern 80803Public transport 1 minute of walking • GarageHere is the translated text:
One unit impresses with a spacious garden area that faces south and therefore benefits from sunlight all day long. Depending on the location, the gardens additionally enjoy the morning sun in the east or the evening sun in the west, creating especially pleasant lighting moods. The thoughtful arrangement of the houses ensures a high degree of privacy so that the gardens can be used individually. The solidly built garage separates the houses from each other while also providing a clear structure. The ample plots offer plenty of space for parking (cargo) bikes or prams. The paved terraces blend harmoniously into the gardens and invite you to linger, capturing the midday sun as well as the light of the morning or evening, depending on the house.
Ground Floor:
Houses 1 & 2 stand out in that they are directly accessible from Franz-Wüllner-Straße. The entrance area is complemented by a spacious cloakroom and a guest WC. The kitchen opens onto the living area and thus becomes the central meeting point of the ground floor. Large lifting sliding doors bring plenty of light into the ground floor and allow direct access to the sunny, south-facing terraces. The ceiling height of 2.60 m enhances the open feeling of the space and gives this floor a pleasant sense of spaciousness.
In houses 3 & 4, the entrance area offers, in addition to a cloakroom, sufficient space for a bench and is complemented by a spacious guest WC. The generously glazed living area fills the ground floor with plenty of light and makes the room feel friendly and spacious. The open floor plan combines the kitchen with the living and dining areas, from which you have direct access to the terraces. Large sliding doors open the living area to the outdoors and make it feel even more expansive. In houses 3 & 4 as well, the ceiling height of 2.60 m contributes to an airy and harmonious atmosphere, emphasizing the exceptional quality of living.
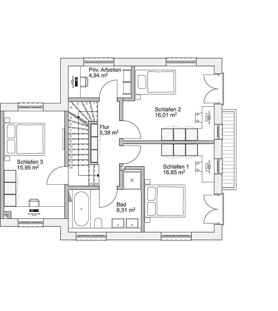
Upper Floor:
The upper floor of the houses offers flexible use of the rooms. On the one hand, there is the possibility of accommodating the children on one floor with its own children's bathroom, so that the parents’ sleeping area remains private in the attic. For young families, there is the option to sleep together with the children on one level, keeping the distances short while still allowing the rooms to be used independently. In houses 3 & 4, the stairwell area on all floors offers the possibility of creating additional storage space with a fitted wardrobe. In addition to a total of three spacious bedrooms, the upper floor is complemented by a home office.
Attic:
The attic features an en-suite full bathroom and can, according to your wishes, be planned either with one large sleeping area complete with a generous dressing room or with two separate rooms that can be used as children’s rooms, a home office, or guest rooms. This way, the space can be flexibly adapted to the particular family constellation. The ceiling height of up to 3.40 m, classic dormers, and generous roof windows create a bright, airy atmosphere.
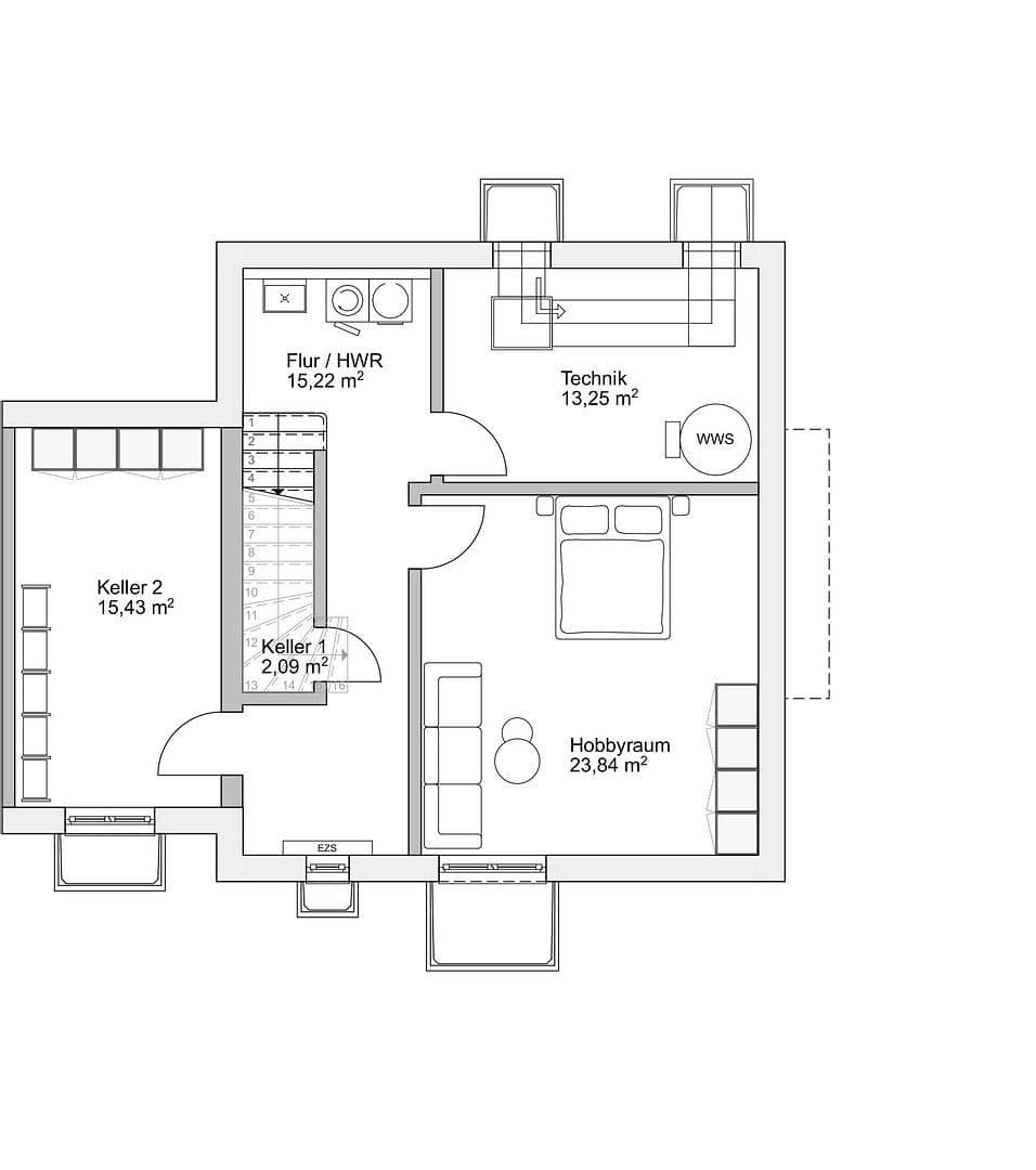
Basement:
In the basement there is, in addition to a technical room, a spacious storage room which can be perfectly used as a utility room. The centerpiece of the basement is the spacious hobby room. Thanks to a large skylight, underfloor heating, and a wooden plank floor, the hobby room achieves a high level of living quality and can be used as a wellness area, fitness room, or guest room.
The Street:
On Franz-Wüllner-Straße you live right by the Obermenzing view, which is particularly appreciated in this neighborhood. Schools of different levels as well as kindergartens are conveniently nearby and easily accessible for children. Public transportation connections are also comfortable, so commuting times are reduced and the city center can be reached quickly and effortlessly.
The Neighborhood:
Obermenzing is a green, upscale residential district in western Munich with a high proportion of single-family homes and quiet side streets. Families appreciate the proximity to schools, daycares, and sports clubs, as well as the short distances to Nymphenburg’s palace park and the Würm river. Shopping opportunities for daily needs, cafés, and local services are easily accessible. Thanks to the S-Bahn and bus connections, you can quickly reach the city center without sacrificing the relaxed residential quality of the neighborhood.
The house impresses with robust, solid construction using 36.5 cm thick brickwork for the exterior walls. Load-bearing interior walls are built with 17.5 cm brickwork. Non-load-bearing interior walls are constructed as either 11.5 cm brickwork or as drywall partitions. Large, triple-glazed plastic-aluminum windows ensure excellent energy efficiency and light-filled rooms, especially in the living and dining areas thanks to a high-quality lifting sliding door.
A modern air-to-water heat pump inside guarantees efficient heat supply. Electric shutters provide additional sun protection, while modern sanitary facilities in the bathroom ensure the highest comfort. The floor coverings consist of country-style wooden planks and contemporary tile formats, complemented by underfloor heating.
The property is officially subdivided and has its own parcel number. An individual garage will be built for each house. The construction is turnkey at a fixed price and will be completed on schedule by the general contractor.
All houses are operated independently with their own air-to-water heat pump. Contrary to the usual practice, this pump is not located outside, but is situated inside the technical room in the basement. All technical installations in the house, as well as the applications and work for wastewater and rainwater management outside, are included in the fixed price. Only the costs for water, electricity, and internet remain to be borne by the client. The construction company will support you with the relevant applications and implementations and will be available for consultation.
Real estate agent inquiries are not desired – we adhere to our principle of direct communication from the architect to the client. Please feel free to write or call me anytime at 0176 / 21 65 74 23.
Property characteristics
| Age | Over 5050 years |
|---|---|
| Layout | 6+kk |
| Usable area | 180 m² |
| Total floors | 4 |
| Condition | New-build |
|---|---|
| Listing ID | 992834 |
| Land space | 313 m² |
| Price per unit | €10,250 / m2 |
What does this listing have to offer?
| Basement | |
| MHD 1 minute on foot |
| Garage | |
| Terrace |
What you will find nearby
Still looking for the right one?
Set up a watchdog. You will receive a summary of your customized offers 1 time a day by email. With the Premium profile, you have 5 watchdogs at your fingertips and when something comes up, they notify you immediately.















