
House for sale 4+1 • 162 m² without real estateBerlin Biesdorf Berlin 12683
Berlin Biesdorf Berlin 12683Public transport 2 minutes of walking • Parking • GarageWelcome to your new home – a charming, completely gut-renovated single-family house with history, character, and plenty of space to live and feel good.
Originally built in 1939 and completely gutted and lovingly renovated between 1998 and 2000, this house combines stylish substance with modern living comfort over approximately 162 m² of living space. The property is set on a beautifully landscaped plot featuring mature trees, lush hydrangeas, and magnificent rhododendrons – a green oasis of peace and relaxation.
The spacious garden covers 798 m² and, with its large terrace, is a true highlight for those who love outdoor living. The existing pool – currently professionally deactivated – can be reactivated if desired, providing a vacation-feel right in your own garden during the summer.
The detached house spans two levels of living area and is fully basement-equipped. Additionally, the attic is available with the possibility of verifying an expansion reserve. In 2000, the entire upper floor was newly built and now impresses with a well-thought-out layout, a stylish balcony in front of the bedroom, and plenty of natural light. A total of four rooms—where the study has open access to the living room—offer flexible usage options, whether as a cozy family home or as a rentable investment property.
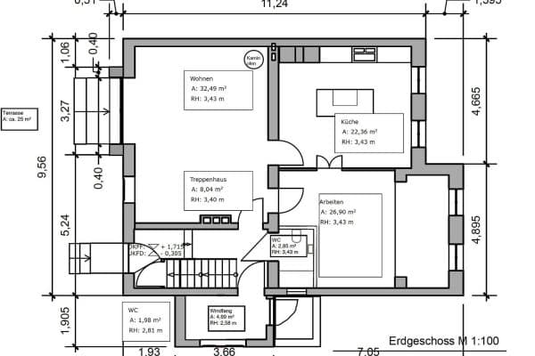
Another highlight is the spacious living-dining room on the ground floor: Here, a fireplace creates a warm atmosphere and invites you to relax with family or friends. The combination of warmth, light, and space creates a special living experience.
Comfort is a top priority in this house: In the master bathroom, a Finnish log sauna awaits your moments of well-being – your personal spa area right at home.
The generous garage (about 18.6 m²) as well as a fully basement area of approximately 80 m² offer plenty of storage, room for hobbies, or even a home office.
The house is regularly maintained. In addition to the usual small upkeep and renovations, in 2020 the entire insulated exterior facade (insulated in 2000) was completely repainted, so that the entire property is in excellent condition.
=> Replacement of the condensing boiler is scheduled for December 2025 – the new boiler is hybrid-capable and can, for example, be combined with solar thermal or a heat pump.
The house is available to move in by agreement, making it ideal for anyone looking for a truly special place to live – whether for owner-occupation or for renting out.
A house with history. With a future. Perhaps soon with you.
Welcome to Berlin Biesdorf-Süd – one of the greenest and simultaneously most charming districts in the Marzahn-Hellersdorf borough. Here, on the eastern fringe of the capital, serene living is combined with excellent infrastructure and surprisingly short distances to central Berlin.
The house is located in an established area of single- and two-family houses on a quiet residential street, surrounded by well-kept gardens, old trees, and friendly neighbors. It is a residential location where children can still play in the street and where you immediately feel at home – quiet, secure, and close to nature.
Despite the idyllic surroundings, you enjoy excellent connections to the metropolis: By bus or bicycle, you can reach the nearest U-Bahn station (U5) within a few minutes, from where you can reach Alexanderplatz in about 20 minutes and the main station in 25 minutes. The S-Bahn is also quickly accessible at around four kilometers away, as is the Berliner Ring (A10) – ideal for commuters or frequent drivers. BER Airport is reachable by car in about 30 minutes, or about an hour by public transport.
Local amenities in this area are outstanding: Whether it’s REWE, Netto, Lidl, Aldi, a drugstore, a health food store, or the medical center – everything is within two kilometers. Schools, kindergartens, and recreational facilities are also within reach, making the location particularly attractive for families. And if you are looking for cultural or sporting highlights, you will not be disappointed: The Park Stage Wuhlheide invites you to concerts and open-air events, Biesdorf Palace with its park and open-air stage captivates with its historic flair, and the 1. FC Union stadium sets football hearts racing – all just a few minutes away.
An extra plus: the renowned Unfallkrankenhaus Berlin – currently rated as one of the best in the world – is practically around the corner. A reassuring feeling, especially in emergencies.
Berlin-Biesdorf offers exactly the balance that modern living needs: the tranquility of green spaces combined with the benefits of urban infrastructure. Living here means a deceleration of life – without ever being cut off.
This house is more than just a home – it is a place to settle, relax, and enjoy life. The features combine thoughtful functionality with tasteful design and a touch of luxury.
During a comprehensive gut renovation between 1999 and 2000, the ground floor was completely gutted and rebuilt to a high standard. Not only was the house modernized – including the heating, electrical, gas, and water installations – but it was also planned with vision and ambition: the entire upper floor was demolished and completely rebuilt on the basis of a new building permit – including a stylish clipped hip roof covered with facing bricks and insulated for energy efficiency. This roof is not only an architectural eye-catcher but also energy-efficient and contributes to the excellent thermal insulation of the house – an important advantage in terms of modern energy standards and heating costs.
The gas condensing boiler, installed during the heating renovation in 2000, was replaced in December 2025 by a new, hybrid-capable condensing boiler from Viessmann. As part of the 2000 renovation, the old chimney was completely removed and replaced by a new Schiedel ceramic double flue chimney with two separate flues – a durable, modern system that provides optimal conditions for both the fireplace and the heating system.
The cozy underfloor heating extends throughout the entire ground and upper floors (except for the dressing room, kitchen, guest bathroom, and porch), ensuring pleasant warmth. Supplementary radiators in all rooms provide extra comfort during transitional weather. In the bedroom, dressing room, and staircase, fine parquet flooring was installed, the kitchen shines with high-quality vinyl, while tasteful, durable tiles dominate in the rest of the house.
As part of the renovation, triple-glazed insulated wooden windows with lockable handles were installed – high-quality, thermally insulated windows with a classic look. Electric, insulated aluminum roller shutters provide additional comfort and security.
A real highlight is the large master bathroom with a spa flair: Here you will find a custom-made Finnish log sauna, a whirlpool tub, and a spacious wellness shower. With elegant sanitary ceramics from Villeroy & Boch, no detail is spared – pure wellness in your own home.
The modern fitted kitchen from 2011 harmoniously integrates into the living concept – both functional and stylish. In 2025, some of the electrical appliances in the kitchen were renewed. In the spacious living-dining area on the ground floor, a fireplace creates a cozy atmosphere and becomes the natural focal point of family life.
The outdoor area is equally impressive: The spacious terrace with direct garden access invites you to enjoy social evenings or quiet moments in the greenery. The oval-shaped pool, with approximately 21 m² of water surface, which is currently professionally deactivated, offers real summer highlights with its potential for reactivation.
The entire facade is thermally insulated, and the house is heated by a modern hybrid gas condensing boiler. The energy certificate shows a value of approximately 119 kWh/m²a and an energy efficiency class of D.
This home combines high-quality features, thoughtful construction, and loving details – a genuine original with plenty of space to live, relax, and flourish.
Commission-free sale directly from the owner.
Property characteristics
| Age | Over 5050 years |
|---|---|
| Layout | 4+1 |
| EPC | D - Less economical |
| Land space | 798 m² |
| Price per unit | €4,870 / m2 |
| Condition | After reconstruction |
|---|---|
| Listing ID | 992613 |
| Usable area | 162 m² |
| Total floors | 2 |
What does this listing have to offer?
| Balcony | |
| Garage | |
| MHD 2 minutes on foot |
| Basement | |
| Parking | |
| Terrace |
What you will find nearby
Still looking for the right one?
Set up a watchdog. You will receive a summary of your customized offers 1 time a day by email. With the Premium profile, you have 5 watchdogs at your fingertips and when something comes up, they notify you immediately.






































