
Flat for sale 4+1 • 130 m² without real estate, Bavaria
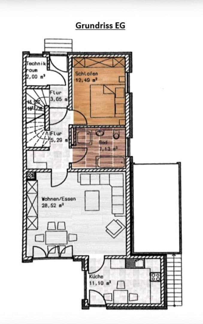
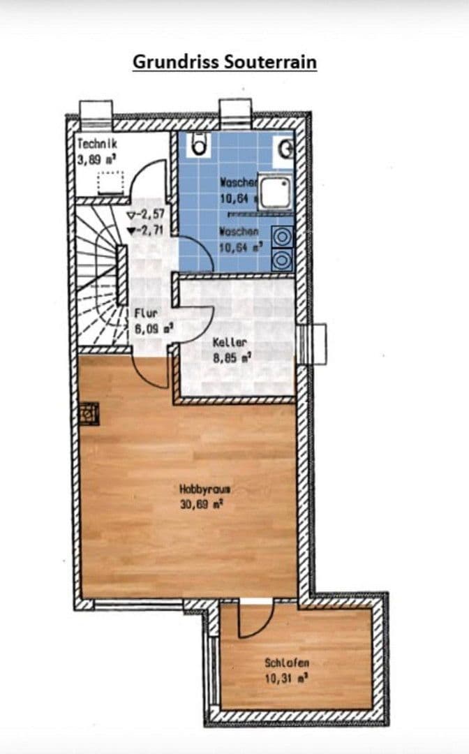
, BavariaPublic transport less than a minute of walking • GarageThese beautiful and energy-efficient garden apartments, built in 2009, combine spacious living with modern, sustainable technology. The apartment is spread over two full levels (ground floor and basement) and offers a total of approximately 130 m² of living space with a family-friendly layout.
The ground floor impresses with bright, open living areas and direct access to an approximately 40 m² private garden – ideal for relaxing, playing, or simply enjoying yourself. The basement, with its large windows, is fully usable as living space and offers versatile options, for example, as a children's room, home office, guest room, or hobby area.
The property is heated using an efficient geothermal heat pump. The new solar system installed in 2022 provides environmentally friendly electricity generation and helps reduce ongoing energy costs.
Located in a quiet residential area just a 10-minute walk from Mering train station, the property offers excellent connectivity by train to Munich (25 minutes) and Augsburg (17 minutes), among other destinations.
The fitted kitchen is sold with the apartment and is included in the price.
Property characteristics
| Age | Over 5050 years |
|---|---|
| Condition | Very good |
| Listing ID | 992592 |
| Usable area | 130 m² |
| Available from | 30/06/2026 |
|---|---|
| Layout | 4+1 |
| EPC | A - Extremely economical |
| Price per unit | €4,108 / m2 |
What does this listing have to offer?
| Garage | |
| Terrace |
| MHD 0 minutes on foot |
What you will find nearby
Still looking for the right one?
Set up a watchdog. You will receive a summary of your customized offers 1 time a day by email. With the Premium profile, you have 5 watchdogs at your fingertips and when something comes up, they notify you immediately.














