
Flat for sale 2 bedroom • 49 m² without real estateArnethgasse 63 Wien 16. Bezirk Wien 1160
Arnethgasse 63 Wien 16. Bezirk Wien 1160Public transport 2 minutes of walking • LiftThe apartment is currently undergoing renovation and will be completed in April. All photos come from a previously finished apartment with the same furnishings and a nearly identical floor plan.
The apartment impresses with a cohesive design concept, contemporary technology, and a functional room layout. As part of the full renovation, all lines (electrical and plumbing) will be renewed, new interior doors will be installed, and a stylishly tiled bathroom with a separate WC will be newly created – both outfitted with modern 30 × 60 cm porcelain stoneware tiles.
The living areas are presented with elegant country-style hardwood plank flooring that creates a warm and homely atmosphere. New triple-glazed windows, as well as modern LED ceiling lights in the entrance hall, kitchen, and bathroom, complete the thoughtful interior design.
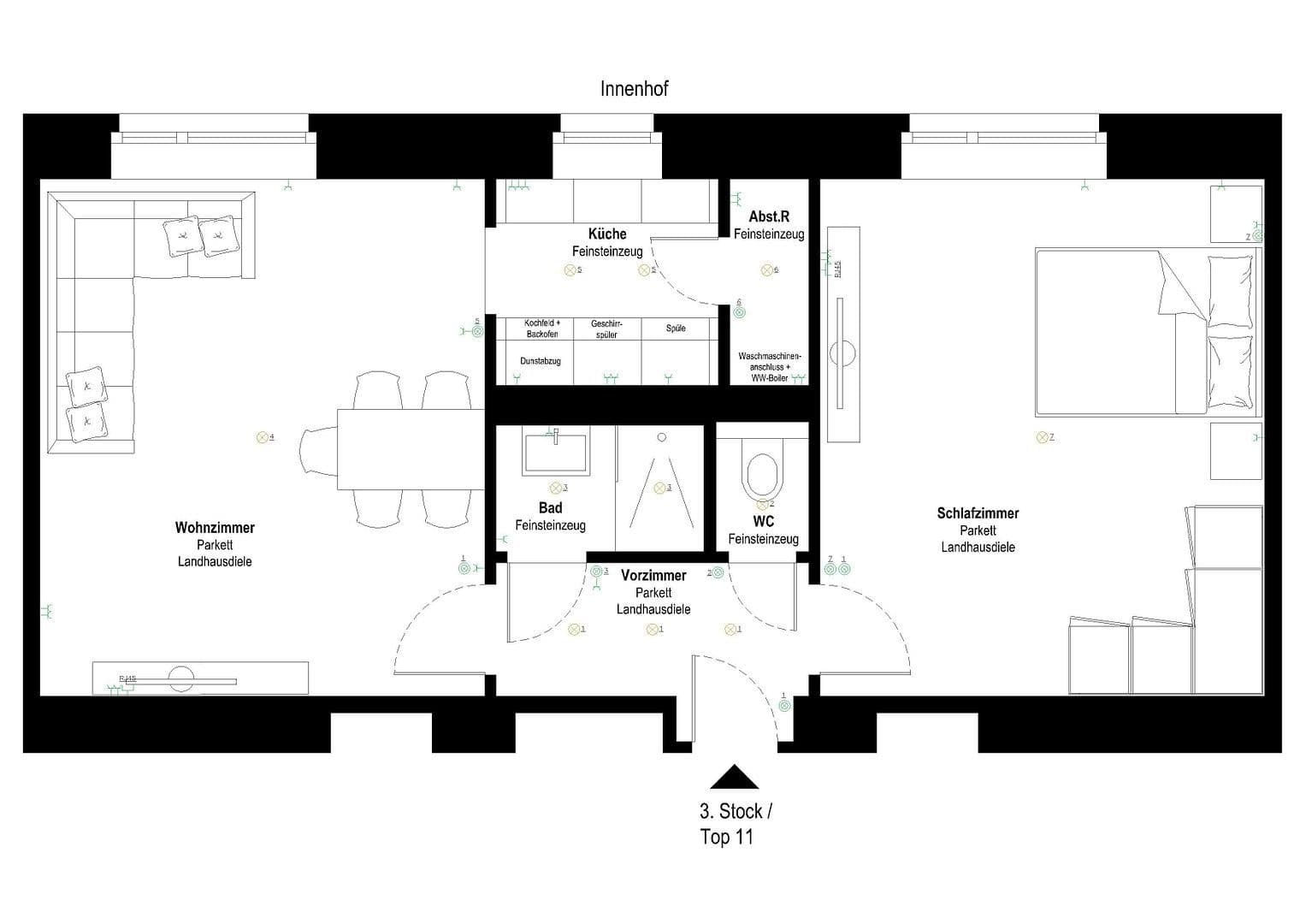
The layout is clearly structured: The rooms are centrally accessible from the entrance area. From there, you can directly access the bedroom and living room as well as the bathroom and WC. Adjacent to the kitchen is a storage room with a washing machine connection, providing additional storage space.
The practical aspects also impress: The apartment includes a spacious basement compartment for additional storage.
The kitchen is prepared with all necessary connections, allowing you to realize your personal kitchen design. A kitchen layout plan can be provided upon request.
The property at Arnethgasse 63 stands out with excellent public transportation connections: Several public transport options are available within walking distance, ensuring direct access to the city center and other districts.
Transport connections:
Approximately 150 meters away, you will find the tram stop “Redtenbachergasse,” which takes you directly to the city center (Schottentor).
Bus lines 46A and 46B quickly take you to the nearby recreational area Wilheminenberg.
The U-Bahn and rapid transit station Ottakring is only a few minutes away (about 500 meters). In a 7-minute drive, you can reach Bahnhofcity WienWest as well as the shopping street Mariahilferstraße.
Shopping opportunities in the area:
Just a few minutes away are Ottakringer Straße and Thaliastraße, one of the most popular local shopping streets in the 16th district. Here, you will find a wide range of shopping options.
Ottakringer Wald Recreational Area:
In the immediate vicinity of the apartment, there are numerous green retreats, such as the Ottakringer Wald with its well-developed network of paths and access to City Hiking Trail 4. This recreational area offers various forest playgrounds, barbecue spots, and attractions such as Wilhelminenberg Castle or the Jubiläumswarte.
HARO parquet flooring made of oak in a country plank style
Modern porcelain stoneware in the bathroom, WC, kitchen, and storage room
Ceiling lighting with LED spots in the entrance hall, bathroom, and kitchen
New triple-glazed windows
LAUFEN Pro brand sanitary ceramics
Grohe shower system with thermostatic mixer, rain shower, and hand-held shower
Modern LAUFEN Pro shower tray
Shower screen glazing with nanocoating and safety glass (ESG)
Switches, sockets, and network outlets by Berker
MNPV GmbH
Real Estate Purchase and Sales,
Rental and Real Estate Consulting
FN 649248b
Commercial Court: Commercial Court Vienna
Email contact: office (at) mnpv.at
Property characteristics
| Age | Over 5050 years |
|---|---|
| Condition | After reconstruction |
| Floor | 3. floor out of 5 |
| EPC | C - Economical |
| Price per unit | €5,204 / m2 |
| Available from | 13/04/2026 |
|---|---|
| Layout | 2 bedroom |
| Listing ID | 989578 |
| Usable area | 49 m² |
What does this listing have to offer?
| Basement | |
| MHD 2 minutes on foot |
| Lift |
What you will find nearby
Still looking for the right one?
Set up a watchdog. You will receive a summary of your customized offers 1 time a day by email. With the Premium profile, you have 5 watchdogs at your fingertips and when something comes up, they notify you immediately.





















