
Flat to rent 3+1 • 81 m² without real estateMartin-Luther-Str. 10 Grafing Grafing bei München Bayern 85567
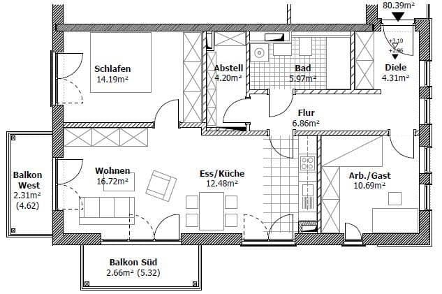
Martin-Luther-Str. 10 Grafing Grafing bei München Bayern 85567Public transport 1 minute of walking • Lift • GarageThis bright and high-quality 3-room apartment will be available from May 1, 2026 and is located in a well-maintained residential complex built in 2008. A lift provides convenient access to the second floor. Thanks to the two balconies (southeast and southwest) and the many floor-to-ceiling windows, the living room is flooded with light. The fitted kitchen is part of the rental.
The residential complex, constructed of solid brick, is equipped with high-quality thermal insulation, and the heating is sustainably provided via district heating (biogas). The property is located in Grafing near Munich. Nearby, you will find train lines S4, S6, and RB 48 as well as various bus lines that connect you to regional and supraregional destinations. In the surrounding area, you will find several doctors, restaurants, bakeries, supermarkets, and cafés. Various fashion stores, bars, green spaces and parks, fitness studios, and bookstores can also be easily reached on foot.
– Fitted kitchen including electrical appliances
– High-quality solid oak parquet
– Underfloor heating
– Southeast balcony and southwest balcony
– Roller shutters
– Large wardrobe
– Large storage room
I look forward to your message.
Property characteristics
| Age | Over 5050 years |
|---|---|
| Layout | 3+1 |
| Listing ID | 988971 |
| Price per unit | €17 / m2 |
| Available from | 01/05/2026 |
|---|---|
| Floor | 2. floor |
| Usable area | 81 m² |
What does this listing have to offer?
| Balcony | |
| Basement | |
| Lift |
| Wheelchair accessible | |
| Garage | |
| MHD 1 minute on foot |
What you will find nearby
Still looking for the right one?
Set up a watchdog. You will receive a summary of your customized offers 1 time a day by email. With the Premium profile, you have 5 watchdogs at your fingertips and when something comes up, they notify you immediately.















