
Flat for sale 3+1 • 83 m² without real estateBayreuth Bayreuth Bayern 95447
Here is the translation:
With this exposé we present to you two attically located roof spaces in an attractive location in Bayreuth with potential for further development. The units are located in a very well-maintained multi-family house that is heated by an oil central heating system built in 2024.
In 2025/2026, the current owner carried out a comprehensive upgrade of the staircase. In the process, the walls, ceilings, stairs, and apartment entrance doors were renovated and repainted. In addition, the front door of the building will be completely replaced in the near future, which further emphasizes the positive overall impression of the house.
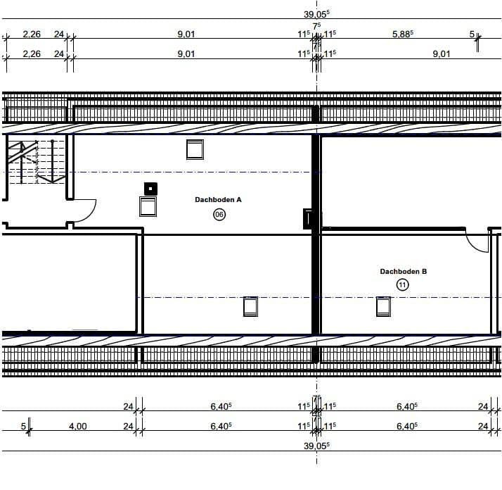
The attics are particularly impressive due to their generous gable height and offer various possibilities for individual conversion. By expanding and combining the two units, a rentable area of up to approximately 83 m² can be achieved.
The basic approval or consent for the conversion by the condominium association is already in place and is accordingly anchored in the condominium declaration of the multi-family house. Any building permit required for the conversion must be obtained independently by the buyer from the city.
In addition, the attic is assigned its own basement storage compartment.
The property is located in a very well-maintained multi-family house in the beautiful and desirable Bayreuth.
The location combines the advantages of the city center with a pleasant quality of living: shopping facilities, gastronomy, nearby recreational and leisure facilities are within walking distance, thereby ensuring a high level of residential comfort.
Public transportation is easily accessible.
- Oil central heating system built in 2024
- Attic with excellent expansion potential
- Staircase revitalized in 2025
- Front door of the building renewed in 2026
- Multi-family house constructed in 1964
- No listed building status
- Close to the center (a few minutes to the old town)
- Optimal connection to local public transportation
- Possibility for modern floor plan design
- 2nd floor
- Own basement storage compartment
Property characteristics
| Age | Over 5050 years |
|---|---|
| Layout | 3+1 |
| Listing ID | 988700 |
| Usable area | 83 m² |
| Available from | 08/02/2026 |
|---|---|
| Floor | 2. floor |
| EPC | E - Wasteful |
| Price per unit | €999 / m2 |
What does this listing have to offer?
| Balcony | |
| MHD 2 minutes on foot |
| Basement | |
| Terrace |
What you will find nearby
Still looking for the right one?
Set up a watchdog. You will receive a summary of your customized offers 1 time a day by email. With the Premium profile, you have 5 watchdogs at your fingertips and when something comes up, they notify you immediately.





