
Flat for sale 3+kk • 79 m² without real estateDukelských hrdinů, Prague - Holešovice
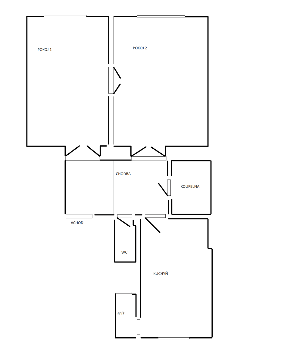
Nabízím k prodeji velmi světlý a prostorný byt 3+kk o výměře 79 m², který se nachází ve cihlové budově. Nemovitost je ve velmi dobrém stavu a je nabízena v osobním vlastnictví. Byt se nachází ve třetím patře z celkem pěti, přičemž budova je vybavena výtahem, což zajišťuje pohodlný přístup do všech pater.
Vysoké stropy, dveře, historické prvky, dřevěné podlahy po celkové rekonstrukci. Dvě místnosti orietovány na západ, ložnice do klidného vnitrobloku. Topení i ohřev vody na elektřinu.
V případě zájmu mě prosím kontaktujte prostřednictvím zpráv na komunikační platformě, kde se domluvíme na osobní prohlídce.
Property characteristics
| Available from | 01/05/2026 |
|---|---|
| Building construction | Brick |
| Fully furnished | Unfurnished |
| Listing ID | 988483 |
| EPC | G - Extremely uneconomical |
| Usable area | 79 m² |
| Condition | Good |
|---|---|
| Layout | 3+kk |
| Floor | 3. floor out of 5 |
| Ownership | Personal |
| Location | Quiet area |
| Price per unit | CZK 202,532 / m2 |
Are you choosing a apartment?
Make sure you have all the important information!
What does this listing have to offer?
| Lift |
What you will find nearby
Still looking for the right one?
Set up a watchdog. You will receive a summary of your customized offers 1 time a day by email. With the Premium profile, you have 5 watchdogs at your fingertips and when something comes up, they notify you immediately.















