
Flat for sale 3+1 • 76 m² without real estateStuttgart Botnang Baden-Württemberg 70195
Hello,
We are selling our beautiful 3-room apartment in Stuttgart - Botnang. The apartment is quietly located on a side street.
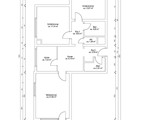
It is situated in the basement (Souterrain) of an 8-unit building and covers 76 sqm distributed across 3 rooms.
The smaller room (8 sqm) is currently being used by us as a children’s room.
The bedroom, with a living area of 16.8 sqm, has two windows facing the rear courtyard, making it very quiet and suitable for sleeping with open windows. The two radiators in the bedroom were renewed in 2025.
Although the bathroom is not huge, it does feature a bathtub. The toilet was renewed in 2025.
The living/dining area has a total of six windows and is very bright and full of light.
Adjacent to this is the kitchenette. The kitchen was installed in 2021 and is included in the sale. Additionally, the refrigerator can remain in the apartment if desired.
Eight out of the ten windows in the apartment were replaced in 2023. They are double-glazed plastic windows. Furthermore, the bedroom windows, the children’s room window, the small kitchen windows, and the bathroom window are equipped with mosquito nets.
Throughout the apartment, there is genuine hardwood parquet flooring.
The building includes a communal garden that can be used by all residents. There is also an area with a garden table and chairs, which can be used for barbecuing in the summer.
The apartment is centrally located in Stuttgart Botnang, just a few minutes’ walk from the Stadtbahnhalle Beethovenstraße. Supermarkets, pharmacies, doctors, and kindergartens are all within walking distance.
The sale is private.
Real estate agent inquiries are not desired.
Property characteristics
| Age | Over 5050 years |
|---|---|
| Condition | Good |
| Listing ID | 987991 |
| Price per unit | €5,132 / m2 |
| Available from | 15/08/2026 |
|---|---|
| Layout | 3+1 |
| Usable area | 76 m² |
What does this listing have to offer?
| Basement |
| MHD 2 minutes on foot |
What you will find nearby
Still looking for the right one?
Set up a watchdog. You will receive a summary of your customized offers 1 time a day by email. With the Premium profile, you have 5 watchdogs at your fingertips and when something comes up, they notify you immediately.

















