
House for sale 3+1 • 87 m² without real estateGRUNDSTÜCK EXKLUSIV NUR FÜR DANWOOD- HAUSBAU GRAZNÄHE! Kohldorf Steiermark 8323
Bungalow: In the following PDF you will find several price examples!
Dear future homeowners,
Do you want to realize your dream of owning your own home, but are not sure which provider is right for you or who can offer you the house in the style you desire? With DAN-WOOD-HOUSE, you can make your dream home a reality – even if you don’t yet have a specific building plan. Choose from 130 different house types and customize them for free to suit your wishes. In addition, various wall constructions are available.
What a brilliant realization: It isn’t about what DAN-WOOD or the individual companies offer, but about how your individual vision of your dream home looks! Here, you will receive thorough advice that is sure to delight you!
I offer you my personal consultation for your project! I begin with an initial consultation, which I preferably conduct on your building site. The shape, the elevation differences, and the orientation of the plot are the absolute key factors!
Don’t have a plot yet? No problem! I am happy to give you an overview of the many exciting design possibilities of DAN-WOOD-Houses. There are so many interesting aspects to consider: the house type, room layout, roof shape, heating system, electrical installations, shading, and optional features such as “Smart Home.”
It is really important to know the total financial outlay including sample selection!
I am pleased to inform you that I will conduct a preliminary sample selection, so you can easily plan for these costs! This is a tremendous help—not only can you prepare a financing plan, but you can also search for financing.
Do not hesitate—contact me now! 0676 5537747
To order the catalogue “Katalog Serie Today” please send an email to tatjana.wyss@danwood.at and include your address and telephone number with your order.
On your plot or in…
Güssing: Approximately 2,600 m², completely flat location. Plot sizes and locations can be chosen freely, from 500 m² to 1500 m².
These are truly top-class building plots! In the best location and with a breathtaking view of the beautiful Güssing Castle!
Güssing offers a future-proof, affordable, and energy-independent life in nature, making an investment in a property there a strategic asset.
Why Güssing:
Energy pioneer and sustainability:
• The town is energy self-sufficient and internationally recognized.
• Over 85% coverage with regional biomass district heating leads to stable and low heating costs.
Affordable property prices:
• Prices are still significantly lower than the Austrian average, making the dream of owning a spacious property possible.
Strong infrastructure and quality of life:
• As a suburban district, Güssing guarantees short journeys and excellent services.
Planned major investments:
• A new education campus and a modern medical center (from 2026).
• A cultural center (Güssing Castle) and proximity to thermal baths.
The complete opening of the S7 brings significant advantages for Güssing and its residents:
• Faster connection to major urban centers: The expressway greatly reduces travel time to the A2 Süd Autobahn, significantly shortening journeys to Graz and Vienna.
• Relief for the region: It diverts the through traffic—previously burdening villages such as Fürstenfeld and Rudersdorf—onto the new route.
• Economic benefits: The new connection, including the junction at Rudersdorf/Dobersdorf and the proximity to the Königsdorf connection, strengthens Güssing as both a suburban district and an economic location by enhancing accessibility and promoting new business parks.
Value stability and development potential:
• Targeted municipal investments in infrastructure, urban core revitalization, and the technology center secure the long-term value stability of the properties.
• The municipal strategy is aimed at overcoming demographic challenges and establishing Güssing as an attractive residential and economic location.
Target Group:
Families seeking a future, security, and nature, as well as everyone who values low energy costs and ecological responsibility.
Other plots available:
Plot, 8323 Kohldorf: A building plot with plenty of sun in the hilly terrain of eastern Styria, 15 km from Graz!
• Size: 758 m² Purchase price: €66,000
Plot, 8323 Kohldorf: Sunny building plot in Kohldorf, 15 km east of Graz!
• Size: 787 m² Purchase price: €69,000
Plot, 8311 Markt Hartmannsdorf: Fully developed, sunny building plot in Markt Hartmannsdorf
• Size: 920 m² Purchase price: €53,000
Plot, 9335 Lölling Graben: A building plot with a dreamy distant view in the picturesque Carinthian mountain region
• Size: 1001 m² Purchase price: €50,000
Plot, 8075 Hart near Graz: Sunny plot on the outskirts of Graz
• Size: 1980 m² Purchase price: €475,000
Plot for sale in Stainz: Sunny plot on the outskirts of Stainz
• Size: 825 m² Purchase price: €149,000
There is no economic connection between the owner of the plot and the builder of the house.
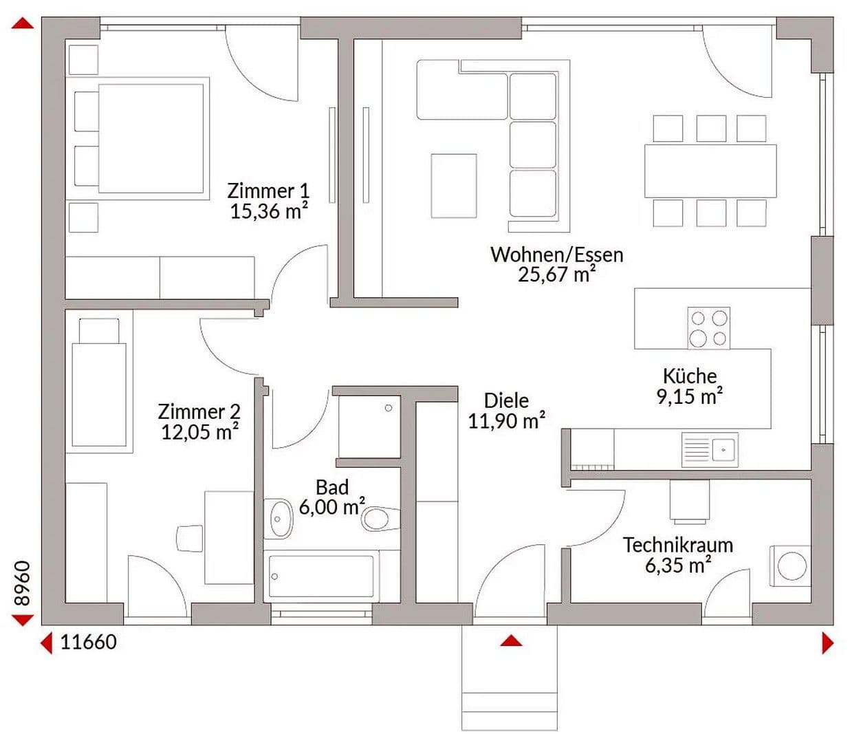
BUNGALOW – 3 rooms, bathroom, WC, exclusive equipment!
Plot options: 500 m², 1000 m², or 1500 m², available on request.
Included in the price:
• Turnkey execution (just place your furniture and move in!)
• Delivery and installation starting from the top of the foundation
• Snow-load reinforced roof truss
• Air-water heat pump with underfloor heating
• Decentralized room ventilation with heat recovery (also cools in summer)
• Electric roller shutters throughout the house
• All floor coverings according to your choice
• All sanitary fixtures according to your choice
• Photovoltaic preparation
• All-round worry-free package
OPTIONAL: Self-performance is, of course, possible!
Consultation – Sales: Ms. Tatjana Wyss
• +43 676553 77 47
• tatjana.wyss@danwood.at
Immediate information or an initial consultation is available!
Further offers:
https://qr.scan.page/uploads/pdf/1751712478803_686335a001f76.pdf
Request a building description and catalogues!
Please note that you will need to provide your telephone number, email address, and address.
Thank you very much!
Property characteristics
| Age | Over 5050 years |
|---|---|
| Layout | 3+1 |
| Usable area | 87 m² |
| Total floors | 1 |
| Condition | New-build |
|---|---|
| Listing ID | 987708 |
| Land space | 1 m² |
| Price per unit | €2,564 / m2 |
What does this listing have to offer?
| Garage |
| MHD 2 minutes on foot |
What you will find nearby
Still looking for the right one?
Set up a watchdog. You will receive a summary of your customized offers 1 time a day by email. With the Premium profile, you have 5 watchdogs at your fingertips and when something comes up, they notify you immediately.













