House for sale 3+1 • 87 m² without real estateGRUNDSTÜCK 800M GRAZ EXKLUSIV NUR FÜR DANWOOD-HAUSBAU Hart bei Graz Steiermark 8075
GRUNDSTÜCK 800M GRAZ EXKLUSIV NUR FÜR DANWOOD-HAUSBAU Hart bei Graz Steiermark 8075Public transport 2 minutes of walking • GarageBungalow: Please find several price examples in the following PDF!
Dear prospective homeowners,
Would you like to realize your dream of owning your own home but aren’t sure which provider is right for you or who can offer you the house built in the style you desire? With DAN-WOOD-HOUSE, you can make your dream home a reality—even if you don’t yet have a concrete construction plan. Choose from 130 different house types and customize them free of charge to suit your wishes. In addition, various wall construction options are available.
What a brilliant realization: It is not about what DAN-WOOD or the individual companies offer, but about how your individual vision of your dream home looks! You will receive well-founded advice that is sure to impress you!
I offer my personalized consultation for your project! I begin with an initial consultation, preferably on your building plot. The shape, elevation differences, and the orientation of the plot are the key elements! Don’t have a plot yet? No problem! I am happy to give you an overview of the many great design possibilities offered by DAN-WOOD houses. There are so many exciting aspects to clarify: the house type, the floor plan, the roof style, the heating system, the electrical setup, shading, and possible features such as “Smart Home.”
It is truly important to know the total financial outlay—including all selection costs! I am pleased to inform you that I will perform a preliminary cost selection so that you can easily plan these expenses. It’s a great help—not only can you create a financing plan, but you can also start looking into financing options.
Do not hesitate—contact me now! 0676 5537747
Catalog orders under "Katalog Serie Today" at tatjana.wyss@danwood.at
Please include your address and telephone number when placing your order.
Güssing: Approximately 2,600 m², completely flat location. Plot sizes and locations are freely selectable. Sizes range from 500 m² to 1500 m².
Here are the premium building plots! They are in the best locations with a breathtaking view of the beautiful Güssing Castle! Güssing offers a future-proof, affordable, and energy-independent lifestyle in the countryside, making an investment in property there a strategic asset.
Why Güssing?
Energy Pioneer and Sustainability:
• The town is energy-autonomous and internationally recognized.
• Over 85% coverage with regional biomass district heating leads to stable, low heating costs.
Affordable Property Prices:
• Prices are still significantly lower than the Austrian average, making the dream of owning a home on a spacious plot possible.
Strong Infrastructure and Quality of Life:
• As a suburban district, Güssing guarantees short distances and excellent accessibility.
• Planned major investments: a new educational campus and a modern medical center (from 2026).
• Cultural center (Güssing Castle) and proximity to thermal spas.
The complete opening of the S7 brings significant advantages for Güssing and its residents:
• Faster connection to metropolitan areas: The expressway greatly shortens the travel time to the A2 South Autobahn, significantly reducing travel times to Graz and Vienna.
• Relief for the region: It directs the through traffic—previously burdening towns like Fürstenfeld and Rudersdorf—to the new route.
• Economic benefits: The new connection, including the Rudersdorf/Dobersdorf junction and the proximity to the Königsdorf connection, strengthens Güssing as a suburban district and economic location through improved accessibility and by fostering new commercial parks.
Value Stability and Development Potential:
• Targeted municipal investments in infrastructure, revitalization of the town center, and development of a technology center secure the long-term value of properties.
• The municipal strategy aims to meet demographic challenges and establish Güssing as an attractive residential and business location.
Target Group:
Families seeking a future, security, and nature, as well as those who value low energy costs and ecological responsibility.
Other Building Plots:
• Plot, 8323 Kohldorf: A building plot with plenty of sun in the hilly region of eastern Styria, 15 km from Graz!
Size: 758 m² Purchase Price: €66,000
• Plot, 8323 Kohldorf: Sunny building plot in Kohldorf, 15 km east of Graz!
Size: 787 m² Purchase Price: €69,000
• Plot, 8311 Markt Hartmannsdorf: Fully developed, sunny building plot in Markt Hartmannsdorf
Size: 920 m² Purchase Price: €53,000
• Plot, 9335 Lölling Graben: Building plot with a breathtaking distant view in the picturesque Carinthian mountains
Size: 1001 m² Purchase Price: €50,000
• Plot, 8075 Hart near Graz: Sunny plot on the outskirts of Graz
Size: 1980 m² Purchase Price: €475,000
• Plot in Stainz for sale: Sunny plot on the edge of Stainz
Size: 825 m² Purchase Price: €149,000
There is no financial connection between the property owner and the builder of the house.
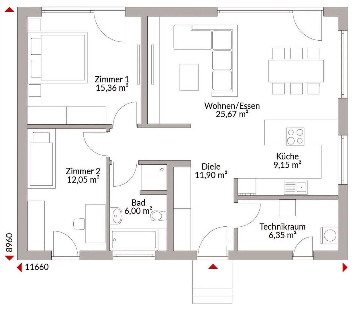
BUNGALOW
3-room with bathroom and WC, exclusive finish!
Plot: 500 m², 1000 m², 1500 m² (available upon request)
Included in the price:
• Turnkey execution (move in with your furniture already in place!)
• Delivery and assembly from the top edge of the foundation
• Snow load reinforced roof truss
• Air-water heat pump and underfloor heating
• Decentralized residential ventilation with heat recovery (cools in summer)
• Electric roller shutters throughout the house
• All floor coverings according to your choice
• All sanitary fixtures according to your choice
• Photovoltaic preparation
• All-around worry-free package
OPTIONAL: Self-performance is of course possible!
Consultation & Sales: Ms. Tatjana Wyss
+43 676553 77 47
tatjana.wyss@danwood.at
For immediate information or an initial consultation!
Additional offers can be found at:
https://qr.scan.page/uploads/pdf/1751712478803_686335a001f76.pdf
Request a construction description and catalogs!
For this, it is necessary that you provide your telephone number, email address, and address.
Thank you very much!
Property characteristics
| Age | Over 5050 years |
|---|---|
| Layout | 3+1 |
| Usable area | 87 m² |
| Total floors | 1 |
| Condition | New-build |
|---|---|
| Listing ID | 979504 |
| Land space | 1 m² |
| Price per unit | €2,564 / m2 |
What does this listing have to offer?
| Garage |
| MHD 2 minutes on foot |
What you will find nearby
Still looking for the right one?
Set up a watchdog. You will receive a summary of your customized offers 1 time a day by email. With the Premium profile, you have 5 watchdogs at your fingertips and when something comes up, they notify you immediately.












