
House for sale 4+1 • 124 m² without real estateBURGBLICK GRUNDSTÜCK EXKLUSIV NUR FÜR DANWOOD-HAUSBAU Güssing Burgenland 7540
Compact and well thought-out – a spatial wonder on a small footprint.
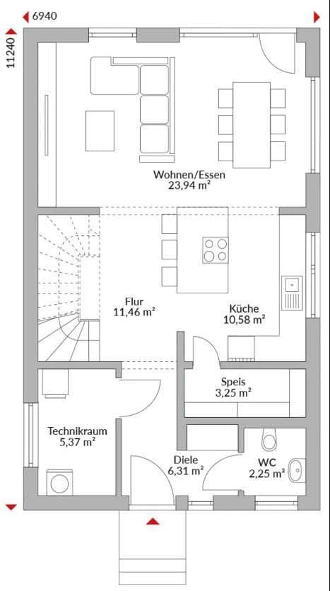
Despite the limited area, this house satisfies all the requirements of modern living. The kitchen is functionally laid out, and the utility room provides ample space for building systems and storage. The bathroom is equipped with both a bathtub and a shower, and there is an additional guest WC available. The entrance hall offers generous cloakroom space, while the children's room and bedroom provide good placement options. The living/dining area impresses with large windows and open transitions that visually expand the space.
Ideal for those who focus on the essentials – without compromising on comfort.
On your property or in…
Güssing: Approximately 2,600 m² – completely level location. Plot sizes and locations can be chosen freely, with sizes ranging from 500 m² to 1500 m².
These are top-class building plots! Located in an excellent location with a breathtaking view of the beautiful Güssing Castle!
Güssing offers a future-proof, affordable, and energy-independent lifestyle in the countryside, making an investment in real estate there a strategic asset.
Why Güssing
Energy Pioneer and Sustainability:
• The town is energy self-sufficient and internationally recognized.
• A high coverage (over 85%) with regional biomass district heating results in stable, low heating costs.
Affordable Real Estate Prices:
The prices are still significantly lower than the Austrian average, making the dream of owning a home with a spacious plot achievable.
Strong Infrastructure and Quality of Life:
As a district suburb, Güssing guarantees short distances and excellent services.
Planned Major Investments:
• A new education campus and a modern medical center (from 2026).
• Cultural center (Güssing Castle) and proximity to thermal baths.
The full opening of the S7 brings considerable advantages for Güssing and its residents:
• Faster connection to urban centers: The expressway significantly reduces travel time to the A2 South Motorway, thereby considerably shortening journeys to Graz and Vienna.
• Regional relief: It diverts the through traffic that previously heavily burdened towns such as Fürstenfeld and Rudersdorf onto the new route.
• Economic impulses: The new connection—via the Rudersdorf/Dobersdorf junction and the proximity to the Königsdorf link—strengthens Güssing as a district suburb and business location through improved accessibility and the promotion of new commercial parks.
Value Stability and Development Potential:
Targeted municipal investments in infrastructure, the revitalization of the town center, and the technology center secure the long-term value stability of properties. The municipal strategy aims to overcome demographic challenges and establish Güssing as an attractive residential and business location.
Target Group:
Families in search of a future, security, and nature, as well as those who value low energy costs and ecological responsibility.
Other Plots in:
Plot, 8323 Kohldorf: A building plot with plenty of sun in the East Styrian hill country, 15 km from Graz!
Size: 758 m² Purchase Price: €66,000,--
Plot, 8323 Kohldorf: A sunny building plot in Kohldorf, 15 km east of Graz!
Size: 787 m² Purchase Price: €69,000,--
Plot, 8311 Markt Hartmannsdorf: A fully developed, sunny building plot in Markt Hartmannsdorf
Size: 920 m² Purchase Price: €53,000,--
Plot, 9335 Lölling Graben: A building plot with a dreamy panoramic view in the picturesque Carinthian mountain region
Size: 1001 m² Purchase Price: €50,000,--
Plot, 8075 Hart near Graz: A sunny plot on the outskirts of Graz
Size: 1980 m² Purchase Price: €475,000,--
Plot for Sale in Stainz: A sunny plot on the outskirts of Stainz
Size: 825 m² Purchase Price: €149,000,--
There is no economic connection between the owner of the plot and the builder of the house.
Single-Family House with 4 Rooms – Exclusive Features!
Turnkey including delivery & installation from the top of the foundation.
• Snow load–reinforced roof structure
• Air-water heat pump & underfloor heating
• Mechanical ventilation with heat recovery (summer cooling)
• Electric roller shutters throughout the house
• Flooring and sanitary fixtures selectable freely
• Photovoltaic preparation
• All-round carefree package
Self-performance is possible – entirely according to your ideas.
Consulting & Sales:
Ms. Tatjana Wyss
+43 676 553 77 47
tatjana.wyss@danwood.at
Secure your initial consultation now!
Request a building description and catalogs!
For this, it is necessary that you provide your telephone number, email address, and postal address.
Many thanks!
FINANCING CALCULATOR
https://www.finaustria.at/finanzierungsrechner
OTHER OFFERS!
https://qr.scan.page/uploads/pdf/1752348182250_686ba1debcb60.pdf
Property characteristics
| Condition | New-build |
|---|---|
| Listing ID | 987706 |
| Land space | 1 m² |
| Price per unit | €2,248 / m2 |
| Layout | 4+1 |
|---|---|
| Usable area | 124 m² |
| Total floors | 2 |
What does this listing have to offer?
| Garage |
| MHD 2 minutes on foot |
What you will find nearby
Still looking for the right one?
Set up a watchdog. You will receive a summary of your customized offers 1 time a day by email. With the Premium profile, you have 5 watchdogs at your fingertips and when something comes up, they notify you immediately.





















