House for sale 4+1 • 124 m² without real estateFREIBADNÄHE GRUNDSSTÜCK EXKLUSIV NUR FÜR DANWOOD-HAUSBAU Güssing Burgenland 7540
Compact and well thought-out – a spatial marvel on a small footprint.
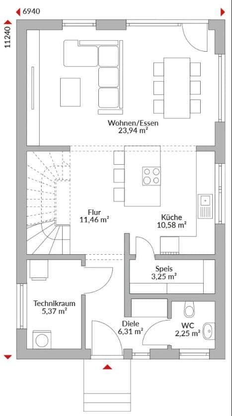
Despite its modest area, this house meets all the demands of modern living. The kitchen is functionally designed, the technical room provides ample space for house systems and storage. The bathroom is equipped with both a bathtub and a shower, and there is an additional guest WC available. The entrance hall offers generous closet space, while the children's room and bedroom provide good placement options. The living/dining area impresses with large windows and open transitions that visually enlarge the space.
Ideal for those who value the essentials – without having to compromise on comfort.
On your property or in…
Güssing: Approximately 2,600m² on a completely level lot. Plot sizes and locations can be chosen freely, ranging from 500m² to 1500m².
Here are prime building plots! In the best location and with a breathtaking view of the beautiful Güssing Castle!
Güssing offers a future-proof, affordable, and energy-independent life in the countryside, making an investment in property there a strategic asset.
Why Güssing
Energy Pioneer and Sustainability:
The town is energy self-sufficient and internationally acclaimed. A high coverage (over 85%) with regional biomass district heating leads to stable, affordable heating costs.
Affordable Property Prices:
Prices are still significantly lower than the Austrian average, enabling the dream of owning a home with spacious plots.
Strong Infrastructure and Quality of Life:
As a suburban district, Güssing guarantees short distances and excellent amenities.
Planned Major Investments:
A new educational campus and a modern medical center (from 2026).
Cultural center (Güssing Castle) and proximity to thermal baths.
The complete opening of the S7 brings significant advantages for Güssing and its residents:
Faster connection to metropolitan areas: The expressway significantly shortens the travel time to the A2 South Motorway, thereby reducing travel times to Graz and Vienna.
Relief for the region: It redirects transit traffic—which previously heavily burdened towns like Fürstenfeld and Rudersdorf—to the new route.
Economic Stimuli: The new connection, among other things via the junction at Rudersdorf/Dobersdorf and the proximity to the Königsdorf connection, strengthens Güssing as a suburban district and economic location through improved accessibility and the promotion of new industrial parks.
Value Stability and Development Potential:
Targeted municipal investments in infrastructure, revitalization of the town center, and the technology center ensure the long-term value stability of properties.
The municipal strategy aims to overcome demographic challenges and establish Güssing as an attractive residential and business location.
Target Audience
Families seeking the future, security, and nature, as well as anyone who values low energy costs and ecological responsibility.
Other properties in:
Plot, 8323 Kohldorf: Building plot with plenty of sun in the hilly area of eastern Styria, 15 km from Graz!
Size: 758 m²; Purchase price: €66,000 --
Plot, 8323 Kohldorf: Sunny building plot in Kohldorf, 15 km east of Graz!
Size: 787 m²; Purchase price: €69,000 --
Plot, 8311 Markt Hartmannsdorf: Fully developed, sunny building plot in Markt Hartmannsdorf
Size: 920 m²; Purchase price: €53,000 --
Plot, 9335 Lölling Graben: Building plot with a dreamy distant view in the picturesque Carinthian mountainous landscape
Size: 1001 m²; Purchase price: €50,000 --
Plot, 8075 Hart bei Graz: Sunny plot on the outskirts of Graz
Size: 1980 m²; Purchase price: €475,000 --
Plot for sale in Stainz: Sunny plot on the edge of Stainz
Size: 825 m²; Purchase price: €149,000
There is no economic connection between the owner of the plot and the builder of the house.
Technology
Technology that makes living easier
The Today 3AL technology package combines modern heat pump technology with a hot water storage tank and an intelligent ventilation system. The result: a home that automatically takes care of a pleasant indoor climate – warm in winter, fresh in summer, efficiently throughout the year. Underfloor heating provides cozy warmth in every room, while the central ventilation with heat recovery saves energy and ensures constantly fresh air. A technology package that perfectly combines comfort, efficiency, and future security.
Electric Roller Shutters:
The roller shutters by DANWOOD are the perfect complement to the energy-efficient DANWOOD building concept. They protect from heat in the summer, keep the warmth inside during winter, and always ensure privacy and security. With electric operation or smart control, they can be easily and intuitively used – a comfort gain you feel every day. In short, with DANWOOD, roller shutters are optional but can be technically perfectly integrated – electric, durable, and ideal for modern architecture.
Sanitary Equipment:
Glass wall shower – safe, convenient
Wall-hung WC – easy to clean, hygienic
Washbasin
High-quality fixtures – durable, easy to use, temperature-stable
Optional depending on the model:
Bathtub – perfect for relaxation or shared evening rituals
Optional double washbasin – no morning crowding
Concealed fixings for fixtures – safe, elegant, easy to clean
Everything is designed to make everyday life easier while remaining beautiful for a long time.
Painting Work:
Walls & Ceilings – move-in ready. All interior walls and ceilings are finished to a turnkey standard. This means:
• Smooth, spackled, and sanded surfaces
• White final coating in high-quality emulsion paint
• Clean, uniform look in all living areas. DANWOOD already delivers the finished surface
• No visible joints or transitions thanks to industrial precision
Thus, the house is immediately habitable without the need for additional painting work.
Vinyl/Laminate/Tiles:
Living and Bedrooms – warm, robust, inviting!
All living and bedrooms will be equipped with high-quality, low-maintenance floor coverings that combine warmth, comfort, and everyday practicality. Standard execution (depending on the model):
• High-quality design vinyl floor in wood effect
• Durable, quiet, and warm underfoot
• Ideal for families, pets, and daily use
• Harmonious color themes (light oak, natural oak, grey oak – depending on the selection in the Design Center Pinkafeld)
Optional:
• Premium quality laminate
• Solid wood parquet (at an additional cost)
Alternative design lines (concrete effect, dark wood effect, warm natural tones) DANWOOD
Note: All house prices are based on the top of the foundation slab. Illustrations may show optional special equipment.
Property characteristics
| Condition | New-build |
|---|---|
| Listing ID | 986442 |
| Land space | 1 m² |
| Price per unit | €2,248 / m2 |
| Layout | 4+1 |
|---|---|
| Usable area | 124 m² |
| Total floors | 2 |
What does this listing have to offer?
| Garage |
| MHD 2 minutes on foot |
What you will find nearby
Still looking for the right one?
Set up a watchdog. You will receive a summary of your customized offers 1 time a day by email. With the Premium profile, you have 5 watchdogs at your fingertips and when something comes up, they notify you immediately.





















