
Flat for sale 4+kk • 107 m² without real estate5. máje, Prague - Stodůlky
Penthouse Máj – Ikonický mezonetový penthouse v Praze 5
Představujeme Vám jedinečném Penthouse Máj ve vilové čtvrti Motol, kde se bydlení mění v životní styl.
Tento ikonický designerský kousek není jen adresa. Je to nadčasový, originální a nepřehlédnutelný prostor, který definuje moderní bydlení. Navržený architektem jako jednotný koncept, kde každý detail navazuje na další, přirozeně odděluje denní a klidovou část. O jeho kvalitě svědčí zmínky v odborných médiích a nominace v prestižních soutěžích jako Estate Awards a Interiér roku.
Základní parametry:
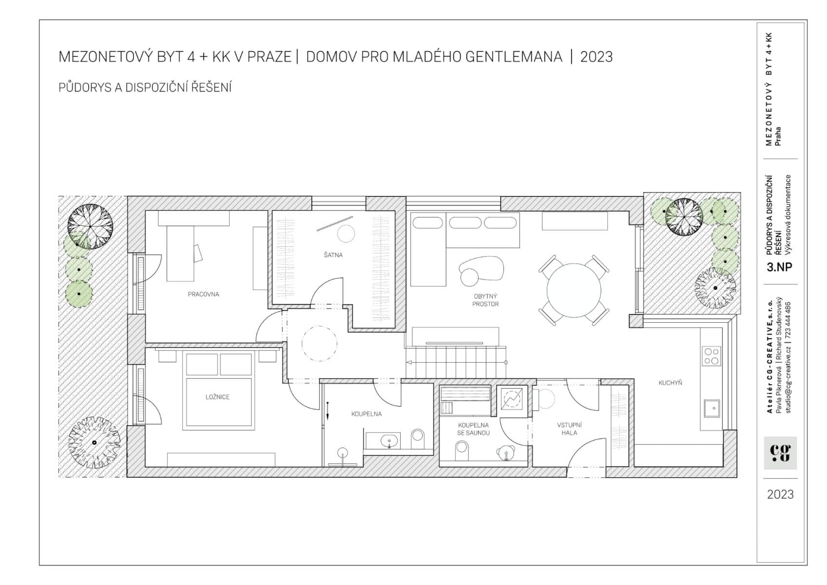
Dispozice: 4+kk, mezonet
Plocha: 106,8 m²
Terasy: 11,7 m² + 8,8 m² s výhledy do zeleně a korun stromů
Sklep: 10,2 m² (možnost privátní fitness)
Garážová stání: 2x auto + 1x motorka s parkovacím systémem
Rok dokončení: 2021
Rok rekonstrukce: 2023
Vybavení: Klimatizace v každé místnosti, podlahové vytápění, elektronické předokenní žaluzie, “chytrá domácnost”, soukromá sauna
Energetická náročnost: PENB B
Penthouse je kompletně vybaven prémiovým nábytkem od italské značky LAGO a svítidly od české značky BOMMA, které jej zařadily mezi své referenční realizace. Vytváří komfort bez kompromisů, od ikonického interiéru až po společnou garáž s basketbalovým košem a stolním tenisem.
Lokalita a okolí:
Viladům Máj se nachází v klidné neprůjezdné ulici 5. Máje 3076/37 na Praze 5, v prostředí vilové čtvrti. Nabízí naprosté soukromí, ticho a komorní atmosféru – celý dům má pouze 6 bytů, vlastní vstup sdílený jen s jedním sousedem. Ruch Prahy zde ztichne, přitom máte vše důležité na dosah ruky.
Dopravní dostupnost: Letiště Václava Havla (14 min), Smíchov/Anděl (15 min), Metro A – Nemocnice Motol (6 min), tramvaj a autobus (3 min), rychlé napojení na Pražský okruh a tunel Blanka.
Občanská vybavenost: OC Řepy, Metropole Zličín, Galerie Butovice, Homepark Zličín; Nemocnice Motol, AKESO Poliklinika; Mezinárodní školy (Deutsche Schule Prag, International School of Prague, PORG).
Volný čas a lifestyle: Přírodní park Košíře a Lesopark Řepy v pěší vzdálenosti; Park Ladronka, Obora Hvězda, Prokopské údolí v širším okolí; VISTA resort & club (fitness, wellness, spa, tenis, gastronomie, coworking – 4 min); Golf Club Praha (4 min); Smíchov a Anděl s restauracemi, kiny a divadly (15 min).
Média a ocenění:
Projekt Viladům & Penthouse Máj se stal příkladem rezidenční architektury, o kterém psala česká i zahraniční média jako Archiweb, CzechCrunch, Estate, TV Architect, SelectedMag, Marianne, Proženy nebo Home. Byl prezentován na stránkách LAGO a Bomma jako ikonická ukázka prémiového designu a získal nominace v soutěžích Estate Awards a Interiér roku.
Takto koncipované penthousy se v Praze objevují jen zřídka. Je to unikát pražského rezidenčního trhu, vhodný nejen pro vlastní bydlení, ale i jako investice – například pro prémiový pronájem diplomatům, expatům, podnikatelům či vrcholovým manažerům. díky jeho exkluzivitě a omezené nabídce, má tendenci dlouhodobě růst na hodnotě.
Neváhejte a domluvte si prohlídku.
Property characteristics
| Age | Up to 10 years |
|---|---|
| Condition | Very good |
| Layout | 4+kk |
| Floor | 3. floor out of 3 |
| Heating | Other |
| Ownership | Personal |
| Reconstruction | Complete |
| Usable area | 107 m² |
| Available from | 01/04/2026 |
|---|---|
| Building construction | Mixed |
| Fully furnished | Fully furnished |
| Design | Luxurious |
| Listing ID | 987010 |
| EPC | B - Very economical |
| Location | Quiet area |
| Price per unit | CZK 242,991 / m2 |
Are you choosing a apartment?
Make sure you have all the important information!
What does this listing have to offer?
| Basement: 10.2 m² | |
| Terrace: 20.5 m² |
| Garage |
What you will find nearby
Still looking for the right one?
Set up a watchdog. You will receive a summary of your customized offers 1 time a day by email. With the Premium profile, you have 5 watchdogs at your fingertips and when something comes up, they notify you immediately.
























