
Commercial property to rent • 227 m² without real estateHörder Strasse 288, , North Rhine-Westphalia
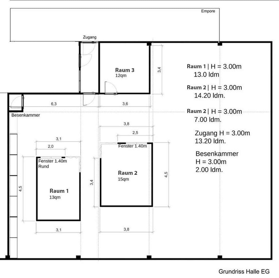
With a total area of 227 m², this versatile commercial hall in the central location of Witten-Stockum offers ideal conditions for a wide range of uses – whether as an office, warehouse, or production facility. Its excellent transport connections between Dortmund and Bochum make it attractive for companies of all sizes.
Special features:
• Two separate entrances:
• Large roller shutter door for convenient deliveries
• Main entrance for everyday access
Rental Information:
The hall is rented fully furnished. The facilities include:
• Heavy-duty shelving for efficient storage
• Modern office furniture including desks, conference tables, and lounge areas
• A high-quality equipped conference room with designer furniture
• Two separate restrooms
The hall is situated in the central area of Witten-Stockum and impresses with its excellent infrastructure:
• Optimal transport connections: Direct access to the highway and public transport
• Nearby shopping: Edeka and Netto are easily reachable on foot
• Ideal location for students and partners: Herdecke University is only 10 minutes away
• On-site parking: Convenience for employees and visitors
The hall is ready for occupancy and offers extensive facilities tailored to your requirements:
• Two separate entrances: Large roller shutter door for convenient deliveries and a separate main entrance
• Efficient storage: Includes heavy-duty shelving
• Flexible working: Office areas and conference rooms available as needed
• Pleasant atmosphere: Bright, daylight-filled rooms create a productive working environment
The hall is available for rent at a net rent of €1,890 plus €100 operating costs. The rental period and terms can be tailored to your individual needs.
Whether for young companies or established businesses – here you will find a space that can be used immediately without any hassle.
Property characteristics
| Age | Over 5050 years |
|---|---|
| Listing ID | 985514 |
| Price per unit | €8 / m2 |
| Condition | After reconstruction |
|---|---|
| Land non-residential space | 227 m² |
What does this listing have to offer?
| MHD 3 minutes on foot |
What you will find nearby
Still looking for the right one?
Set up a watchdog. You will receive a summary of your customized offers 1 time a day by email. With the Premium profile, you have 5 watchdogs at your fingertips and when something comes up, they notify you immediately.














